EasyManua.ls Logo

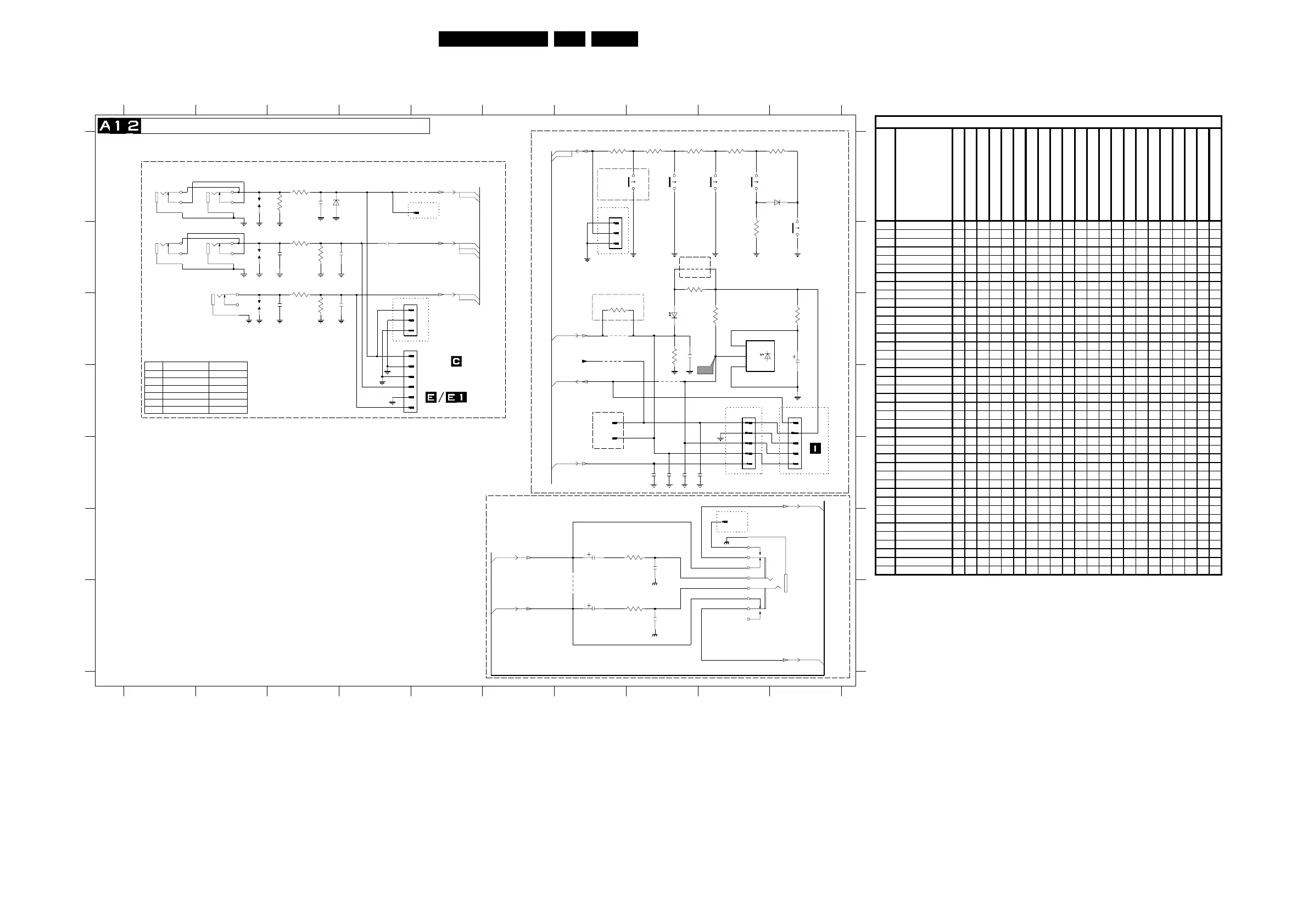
Philips L01.2E AB - Mono Carrier: Front I;O, Control, and Headpone (A12)

Philips L01.2E AB
60 pages
Print Icon
To Next Page IconTo Next Page
To Next Page IconTo Next Page
To Previous Page IconTo Previous Page
To Previous Page IconTo Previous Page
Loading...
26L01.2E AB 7.
Circuit Diagrams and PWB Layouts
Mono Carrier: Front I/O, Control, and Headpone
C6
V
R
L
FRONT I/O + FRONT CONTROL + HEADPHONE
TS USA
channel+ channel- volume+
volume-
FRONT CONTROL
HEADPHONE
RES
FRONT CINCH
FOR ITV ONLY
FOR ITV ONLY
MONO SET
FOR ITV ONLY
A10-58
A11-58
A5-31
A10-31
A11-31
A10-53
A11-53
A7-8
A12-8
A7-4
A7-10
C6 = 0V
A12-8
A8-73
A8-72
A8-71
A8-70
FOR ITV ONLY
TO 0251 OF
OR
RES
RES
FOR ITV ONLY
*
POWER
FOR ITV ONLY
TO 0251 & 0253 OF
TO 0259
OF
ITEM PAINTER LEADER PAINTER PLUS
3681 470 ohm 270 ohm
3682 3.9k ohm 3.3k ohm
3683 270 ohm 390 ohm
3684 470 ohm 560 ohm
3685 560 ohm 560 ohm
3686 1.8k ohm 1.5k ohm
0239
1
2
3
E
F
G
0214 D9
0215 C4
12345678910
12345678910
A
B
C
D
E
F
G
A
B
C
D
0218-A C2
0218-B B2
0218-C A2
0219 C4
0232 E5
0239 A7
0259 D10
0270 A5
0277-A A1
0277-B B1
0278 D7
0286 E7
2692
1u
0292 E4
1181 A2
1182 B2
1183 C2
1600 B10
1601 A9
1602 A9
1603 A8
1606 A7
2181 A3
2182 B3
2183 C3
2184 B4
2185 B3
2186 C3
2691 C10
2692 C8
2693 E8
2694 E8
2695 E8
2696 E8
2981 E2
2982 F3
2983 F2
2984 F3
3181 A3
3182 A3
3183 B3
3184 B3
3185 B3
4K7
3186 C3
3681 A9
3682 A10
3683 A8
3684 A8
3685 A7
3686 B9
3691 B8
3692 C8
3693 C10
3694 C9
3695 C7
3981 E3
3982 F3
4691 D8
4692 C7
6692
2
GND
1
OUT
3
VS
4693 C7
4694 G1
4695 B8
6181 A3
6681 A10
6691 C8
6692 D9
3182
100R
9181 A5
9982 F2
6181
220R
3693
0232
3686
1K5
3685
560R
4691
1603
2695
100p
100p
2696
2693
100p
100p
2694
0286
4695
100p
2186
100p
2185
0278
4693
0277-B
0270
0277-A
0292
9181
100R
3695
0215
1
2
3
4692
4
5
0259
1
2
3
4
5
3694
0214
1
2
3
100n
2184
22p
2181
6681
BAT85
TSOP1836
2
3
4
5
6
2691
100u
0219
1
120R
3981
120R
3982
2984
470p
9982
2982
470p
2981
1u
1u
2983
1
2
3
4
5
6
7
8
9
3683
390R 560R
3684 36823681
270R
1606
3K3
1600
1602 1601
1K
3692
6691
LTL-10224WHCR
3691
330R
1
2
3
3181
75R
1181
0218-C
0218-B
4
5
6
1K
3183
1182
330p
2182
47K
3184
0218-A
7
8
9
1183
3186
47K
3185
1K
LED
IR
KEYBOARD_protn
+3.3V
2183
330p
RFRONT-IN
CVBSFRONT-IN
LFRONT-IN
+3.3VA
KEYBOARD_protn
AmpOutL+
AmpOutL_Pos
AmpOutR+
AmpOutR_Pos
CL 16532020_019.eps
030901
Item Description
14" Mono, 1&10 page txt, Headphon
e
17" Mono
21" Mono, 1&10 page txt, no side av
14" Mono, no txt, headphone
21" Mono, no txt, headphone
14" Stereo
21" Stereo, no side av
21" Mono, 10 page txt, side av
21" Stereo, side av
37 Mono, 1page txt
51 Mono, 1page txt
52 Mono, 1page txt, headphone
37 Mono, no txt, headphone
14" Mono, 1page txt, no headphone
20" Mono, 1page txt
21" Mono, 10 page txt, no headphon
e
52 Mono, 1page txt, no headphone
14" Mono, no txt, no headphone
20" Mono, no txt
21" Mono, no txt
37 Mono, no txt, no headphone
51 Mono, no txt
0215 CON 3P
0218 SOC CINCH H 2P F X X X X X
0218 SOC CINCH H 3P F X X
0219 6P Male X X
0232 SOC PHONE H 1P F XXXXXXXX XXXX
0259 5P Male
1606 SWI TACT
2181 22pF 50V X XXXXXX
2182 390pF 50V X X XXXXX
2183 390pF 50V X X
2184 4.7uF 10V X X X XXXXXX
2185 390pF 50V X X X XXXX
2186 390pF 50V X X
2981 10uF 50V XXXXXXXX XXXX
2982 470pF 50V XXXXXXXX XXXX
2983 10uF 50V XXXXXXXX XXXX
2984 470pF 50V X XXXXXXX XXXX
3181 75R X XXXXXX
3182 100R X X XXXXX
3183 150R X X XXXXX
3184 47K X X X XXXX
3185 150R X X
3186 47K X X
3681 390R X X X X X X XXXX XXXX
3681 470R X X X XXXXX
3682 3K3 X X X XXXXXXX XXXX
3682 3K9 X X X XXXXX
3683 270R X X X X XXXX
3683 390R X X X XXXXXXX XXXX
3684 470R X X X X XXXX
3684 560R X X X X XXXXXX XXXX
3686 1K5 X X X X XXXXXX XXXX
3686 1K8 X X X X X X X X
3692 1K X X X XXXXXXXXXXXXXXXXXXX
3695 330R
3981 120R XXXXXXXX XXXX
3982 120R XXXXXXXX XXXX
4692 Jumper XXXXXXXXXXXXXXXXXXXXXX
4693 Jumper X XXXXXXXXXXXXXXXXXXXXX
9181 Wire X X XXXXXXX
9982 Wire X X X X X X X X X X
Diversit
y
Table A12

Related product manuals