EasyManua.ls Logo

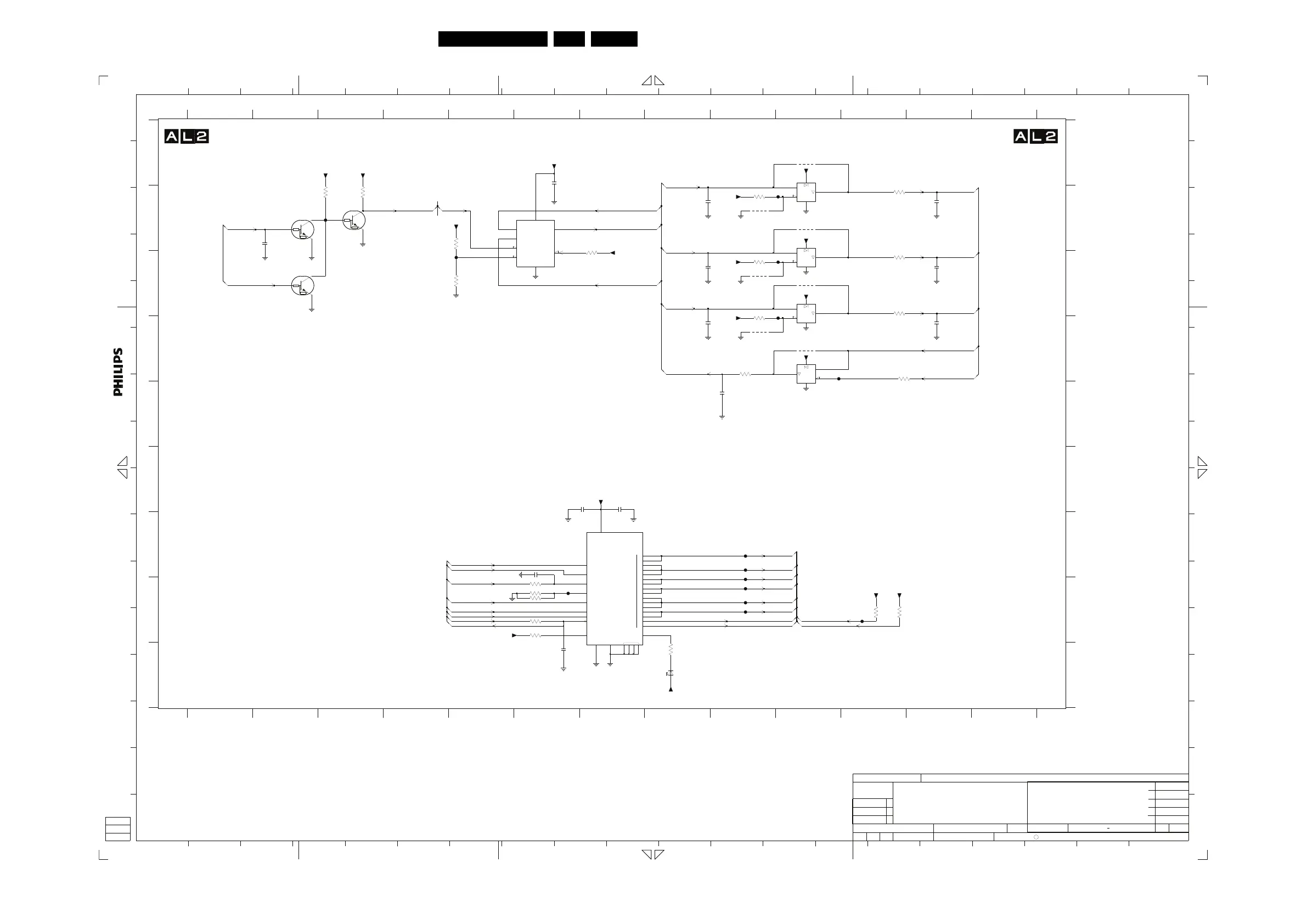
Philips Q548.1E - LED Low-Pow: Microcontroller Block Liteon

Philips Q548.1E
119 pages
Print Icon
To Next Page IconTo Next Page
To Next Page IconTo Next Page
To Previous Page IconTo Previous Page
To Previous Page IconTo Previous Page
Loading...
Circuit Diagrams and PWB Layouts
EN 87Q548.1E LA 10.
2009-Apr-03
12 LED Low-Pow: Microcontroller Block Liteon
EN
C
EN
MODE
SIN
XHALF
XLAT
SCLK
VCC
SOUT
6
2
0
11
VIA
9
13
12
10
4
IREF
GND GND_HS
OUT
GSCLK
7
14
5
3
1
8
15
XERR
BLANK
EN
S
GND
Q
HOLD
W
VCC
C
D
EN
5
I
17
MICROCONTROLLER BLOCK LITEON
M
10
B
owner.
5
H
14
G
H
I
2201 B8
2202 C8
2203 D8
2209 B2
2210 G6
2211 I6
2214 A6
2215 F7
2216 F7
9
D
6 15
13 19
194
15
K
G
123 45678
13
C
14
3
G
E E
A
is prohibited without the written consent of the copyright
F
9 10111213
123 456
D
32 8
12
169
B
20
6
J
18
P
20
7 8 9 10111213
A
B
C
L
J
7 8
4
17 18
3223 C11
3224 H11
N
D
E
F
G
H
I
A
B
C
D
E
F
O
P
O
N
L
M
K
C
F205 B10
F206 C10
2217 B12
2218 C12
2219 D12
2220 E9
3121 D9
3203 B5
3204 B7
3205 C5
3207 B9
3209 C9
3210 B3
3211 C9
3212 D11
3213 B3
3214 H6
3215 H6
7
16
F
3216 H6
3217 H6
3218 H6
3219 B11
3220 C11
3221 H11
3222 I8
11
F215 H9
6216 I8
7201-1 A10
7201-2 C10
7201-3 D10
7201-4 B10
7209 B2
7210 C2
7212 B3
12
12
10
11
7214 B6
7215 G7
9208 A10
9209 B9
9210 B10
9211 C9
9212 C10
9213 D9
9214 D10
F202 B3
F203 C5
F204 H6
F207 C10
F208 D10
F209 H11
F210 G9
F211 G9
F212 G9
F213 H9
F214 H9
INPUT BUFFER
A
All rights reserved. Reproduction in whole or in parts
I
1
H
7
4
14
6
RES
10K
3205
7201-2
74HCT125PW
5
F205
RES
F206
+3V3
1K0
3211
F215
+3V3
9208 RES
+3V3
2210
33p
2214
100n
10K
3213
100p
2219
+3V3
RES
8204 000 8857
2K9
DRIVER 6LED LITEON
A2
2008-08-08
??
2008-08-08
3
2
130
2220
100p
3
2
Peter Van Hove
2008-06-10
ROYAL PHILIPS ELECTRONICS N.V. 2008
2008-06-02
23
SETNAMECHN
CLASS_NO
SUPERS.
1
NAME
DATECHECK
RES
F203
3218
1K2
7210
PDTC144EU
1
3
2
2203
33p
9210 RES
F214
9211
RES
+3V3
9214
9209
28
30
31
32
33
2326
3
11
12
13
14
15
16
4
5
24
6
7
8
17
18
19
20
21
22
9
10
2
1
29
25
27
+3V3
LED DRIVER
PWM CONTROL
Φ
TLC5946PWP
7215
PDTC144EU
7212
3222
470R
+3V3
1
3
2
+3V3
PDTC144EU
7209
F210
3203
10K
100R
+3V3
+3V3
14
3
3216
2
7
1
74HCT125PW
7201-1
3K3
3224
F207
F213
+3V3
100p
22172218
100p
3K3
3221
F209
F204
10K
3204
RES
+3V3
3209
1K0
F208
+3V3
F212
F211
2201
33p
+3V3
7201-3
74HCT125PW
9
7
10
14
8
3214
10K
1K2
3215
9213
6
5
4
7
2
1
8
3 11
M95010-WDW6
7214
Φ
(64K)
7201-4
74HCT125PW
12
7
13
14
3212
100R
1K0
3207
RES
1u0
F202
2216
3210
10K
33p
2209
+3V3
2211
33p
RES
SML-310
6216
+3V3
9212
3121
100R
100R
3223
3220
27R
3217
100R
100R
3219
33p
2202
+3V3
100n
2215
PWM-CLOCK-BUF
BLANK-BUF
SPI-CLOCK-BUF
SPI-DATA-RETURN
SPI-CLOCK-BUF
EEPROM-CS
PWM-CLOCK
SPI-CLOCK
BLANK
DATA-RETURN-SWITCH
SPI-DATA-OUT-FIL
SPI-DATA-OUT-FIL
PWM-G1
PWM-B1
PWM-R2
PWM-G2
PWM-B2
EEPROM-CS-LOCAL
SPI-CS
SPI-LATCH
EEPROM-CS-LOCAL
DATA-RETURN-SWITCH
SPI-DATA-IN
SPI-DATA-OUT
PWM-CLOCK-BUF
EEPROM-CS-LOCAL
DATA-RETURN-SWITCH
PROG
PWM-R1
SPI-CS
SPI-DATA-RETURN
SPI-CLOCK-BUF
SPI-DATA-IN
BLANK-BUF
18560_511_090403.eps
090403

Table of Contents

Related product manuals