EasyManua.ls Logo

Pneumercator ETD1000 - 2 Installation; Mounting; Section 2.0 INSTALLATION

Pneumercator ETD1000
28 pages
Print Icon
To Next Page IconTo Next Page
To Next Page IconTo Next Page
To Previous Page IconTo Previous Page
To Previous Page IconTo Previous Page
Loading...
ETD1000 Instruction Manual - 2017-07-01.docx Page 9 of 28 July 1, 2017
2.0 Installation
The ETD1000 is designed for both indoor and outdoor installation. If the unit is to be installed
outdoors, the installer must pay attention to local code requirements for outdoor conduit runs
containing AC line voltage.
2.1 Mounting
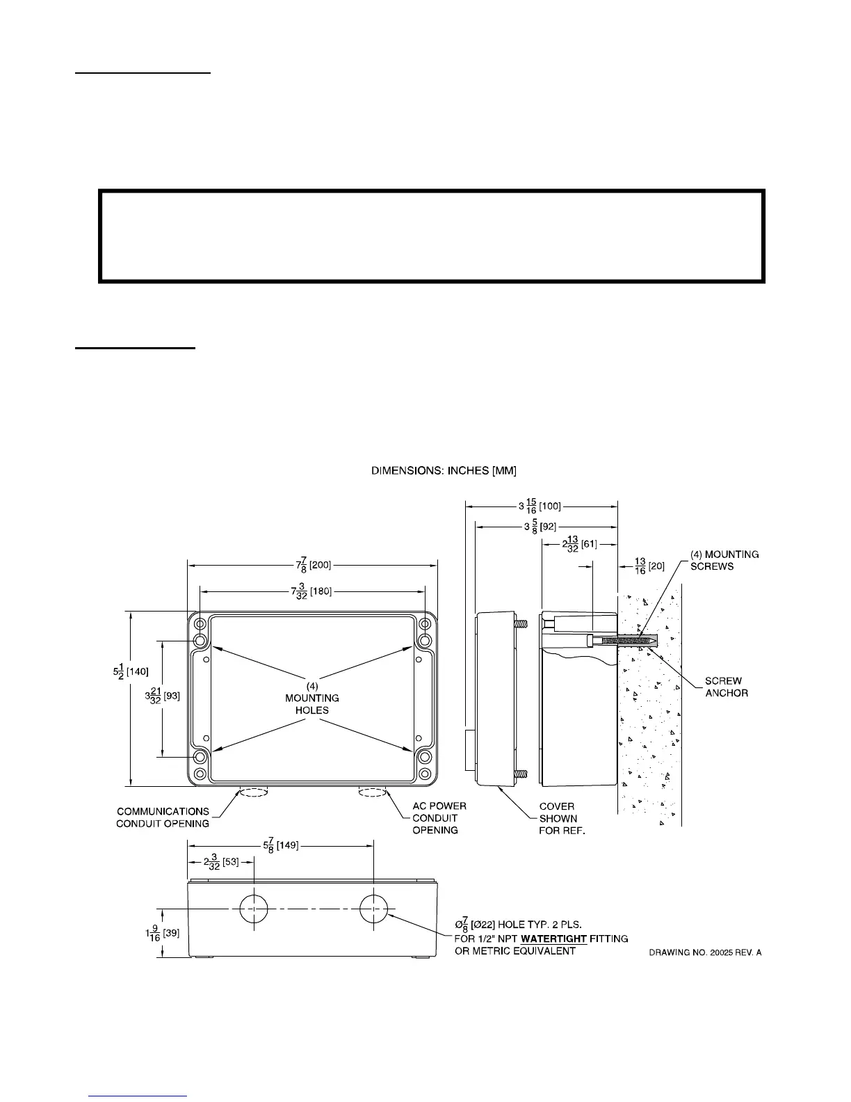
The ETD1000 is designed for wall mounting using the four mounting holes as shown in Figure 2.1-1.
Mounting hole placement is made easy using supplied 1:1 scale mounting template in Figure 2.1-2.
Note that these mounting holes are outside of the gasketed interior of the enclosure and therefore
do not affect weatherproof performance.
Figure 2.1-1
DRAWING NO. 20025 REV. A
1
9
16
[39]
5
7
8
[149]
7
3
32
[180]
3
21
32
[93]
13
16
[20]
3
5
8
[92]
7
7
8
[200]
5
1
2
[140]
DIMENSIONS: INCHES [MM]
2
13
32
[61]
3
15
16
[100]
AC POWER
CONDUIT
OPENING
COVER
SHOWN
FOR REF.
(4) MOUNTING
SCREWS
SCREW
ANCHOR
(4)
MOUNTING
HOLES
Ø
7
8
[Ø22] HOLE TYP. 2 PLS.
FOR 1/2" NPT
WATERTIGHT FITTING
OR METRIC EQUIVALENT
COMMUNICATIONS
CONDUIT OPENING
2
3
32
[53]
WARNING! This device is designed for Ordinary Location, Non-Hazardous
installation only, as defined by Underwriters Laboratories (UL) and the
National Electrical Code (NEC). DO NOT install where flammable vapors may
be
p
resent.