EasyManua.ls Logo

Polaris GEM E Series - Page 105

Polaris GEM E Series
174 pages
Print Icon
To Next Page IconTo Next Page
To Next Page IconTo Next Page
To Previous Page IconTo Previous Page
To Previous Page IconTo Previous Page
Loading...
ELECTRICAL 5 - 58
November 2007 GEM Service Manual
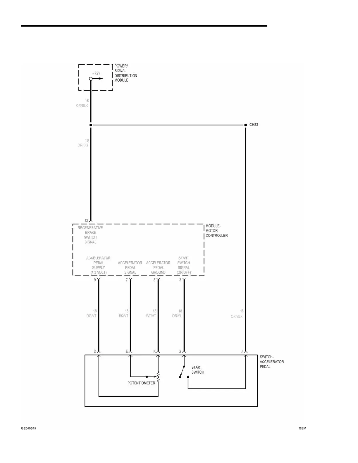
MOTOR CONTROLLER SYSTEM (CONTINUED)

Table of Contents

Related product manuals