EasyManua.ls Logo

Polaris GEM E Series - Page 108

Polaris GEM E Series
174 pages
Print Icon
To Next Page IconTo Next Page
To Next Page IconTo Next Page
To Previous Page IconTo Previous Page
To Previous Page IconTo Previous Page
Loading...
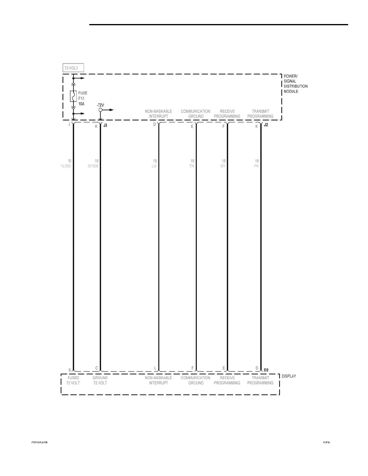
5 - 61 ELECTRICAL
GEM Service Manual November 2007
DISPLAY (CONTINUED)

Table of Contents

Related product manuals