EasyManua.ls Logo

PoolPak ComPak HCD 2600 - Fire Control System Wiring Diagram

Default Icon
92 pages
Print Icon
To Next Page IconTo Next Page
To Next Page IconTo Next Page
To Previous Page IconTo Previous Page
To Previous Page IconTo Previous Page
Loading...
www.poolpak.com | 800-959-772574 | ComPak
®
Series - Installation, Operation and Maintenance
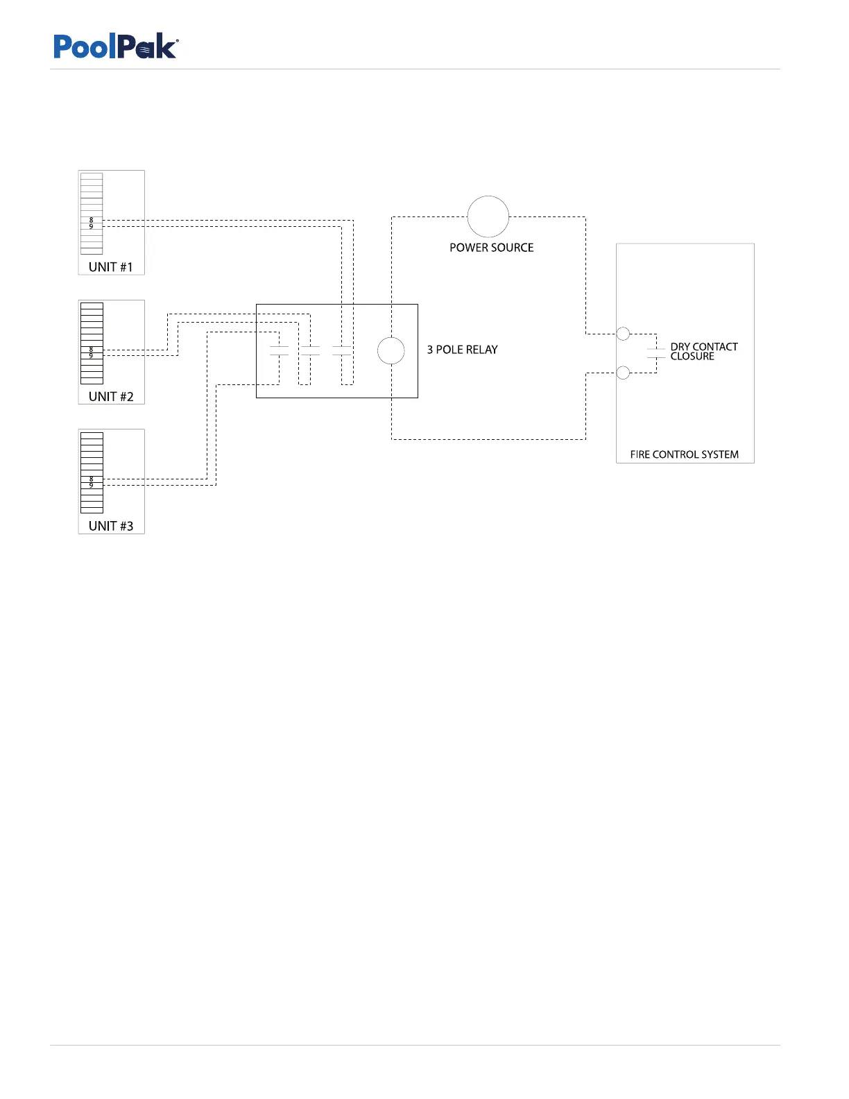
Fire Control System Connection
Figure 6-4. Fire Control System Connection

Table of Contents

Related product manuals