EasyManua.ls Logo

ProAudio PP107234 - Installation;Connection (continued); Wiring Connection Diagram

ProAudio PP107234
35 pages
Print Icon
To Next Page IconTo Next Page
To Next Page IconTo Next Page
To Previous Page IconTo Previous Page
To Previous Page IconTo Previous Page
Loading...
2
2
ENGLISH
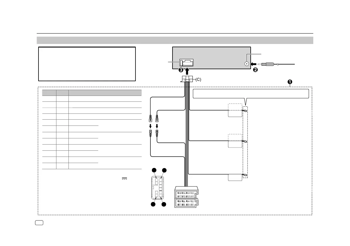
Installation/Connection
REMOTE CONT
STEERING WHEEL
REMOTE INPUT
P. CONT
ANT CONT
MUTE
Wiring connection
ISO
Pin Color and
F
unction
A4 Red : Ignition (ACC)
A5 Blue/White*1 : Power control
A7 Yellow : Battery
A8 Black : Earth (ground) connection
B1
Purple
]
: Rear speaker (right)
B2
Purple/black
[
B3
Gray
]
: Front speaker (right)
B4
Gray/black
[
B5
White
]
: Front speaker (left)
B6
White/black
[
B7
Green
]
: Rear speaker (left)
B8
Green/black
[
Fuse (10 A)
Antenna terminal
Blue/White*2
(Power control wire/
Antenna control wire)
Light blue/yellow
(Steering remote control
wire)
To the power control terminal when using
the optional power amplifier or to the
antenna control terminal in the vehicle
Brown
(Mute control wire)
(Not used)
If no connections are made, do not let the wire come out from the tab.
To the steering wheel remote control
adapter
ISO connectors
NOTE: Total output for Blue/White wire (*1) + (*2) is 12 V 350 mA
Yellow (A7)
Red (Ignition wire)
Red (A4)
Yellow (Battery wire)
Hino Pin
3
8
4
7
N/A
1
5
2
6
N/A
N/A
N/A
The PP107234 radio will include a wiring harness adapter for
standard ISO connection.
The PP107236 radio will include a wiring harness adapter for
connection to Hino trucks.
HINO
connectors
10
1
5
4