EasyManua.ls Logo

Rangemaster Classic Series - 12 Circuit Diagram

Rangemaster Classic Series
56 pages
Print Icon
To Next Page IconTo Next Page
To Next Page IconTo Next Page
To Previous Page IconTo Previous Page
To Previous Page IconTo Previous Page
Loading...
39
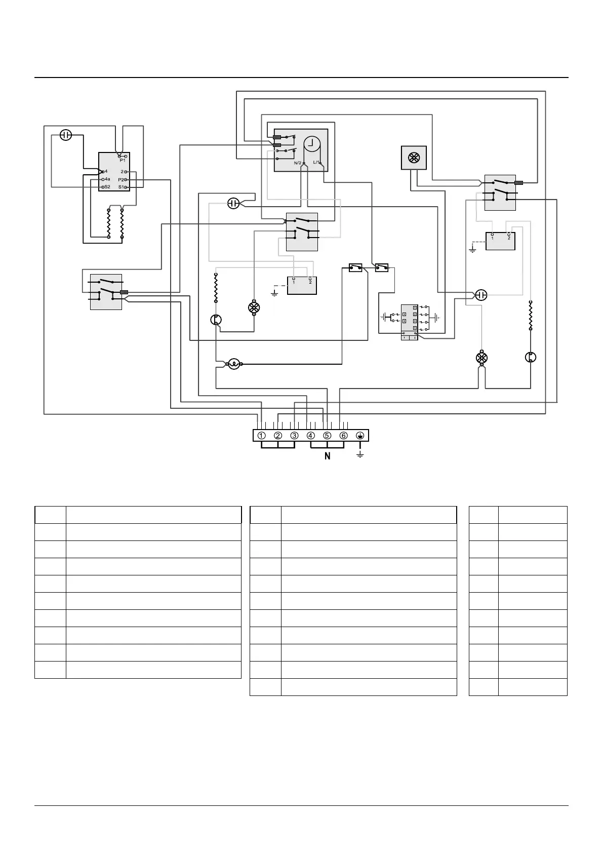
12. Circuit Diagram
P095199
2
P2
P1
1
P095199
2
P2
P1
1
a
b
e
f
c
d
1
2
b
v
br bbbb
r
b
b
r
b
b
br
v
bk
bk
v
v
br
br
b
y
y
y
y
br
b
br
b
br
b
bk
b
g/y
v
y
y
or
or
g/y
r
r
bk
br
br
v
bk
v
br
b
r
b
b
v
b
b
r
r
v
y
y
b
r
b
r
b
bbr br
br
b
b
y
br br b
br
v
v
y
E
X02
X17
X01
L
X27
X31
X05
X26
X26
X26
X27
X32
X14
X12
X15
X24
X04X03
X29
X30
P095199
2
P2
P1
1
X07
y
X09
b
or
b
X16
X16
or
Key
The connections shown in the circuit diagram are for single-phase. The ratings are for 230 V 50 Hz.
Code Colour
b
Blue
br
Brown
bk
Black
or
Orange
r
Red
v
Violet
w
White
y
Yellow
g/y
Green/yellow
gr
Grey
Code Description
X01
Grill front switch
X02
Grill energy control
X03
Left Hand Grill Element
X04
Right Hand Grill Element
X05
Left Hand Oven Thermostat
X07
Left Hand Oven Front Switch
X09
Left-hand oven element
X12
Right-hand oven thermostat
X14
Right-hand oven front switch
Code Description
X15
Right-hand oven element
X16
Oven fan
X17
Clock
X24
Cooling fan
X26
Neon
X27
Thermal cut-out
X29
Ignition switch
X30
Spark generator
X31
Oven light
X32
Oven light switch

Related product manuals