EasyManua.ls Logo

Rangemaster Classic - Page 41

Rangemaster Classic
52 pages
Print Icon
To Next Page IconTo Next Page
To Next Page IconTo Next Page
To Previous Page IconTo Previous Page
To Previous Page IconTo Previous Page
Loading...
37
6
P6
5P5
4
P4
7 P7
8P8
2
P2
1P1
3P3
P038434
P095199
1
2
P2
P1
P095199
1
2
P2
P1
E
LN
br
bk
b
y
o
bk
b
br
bk
bb
bk
b
br
br br
r
b bb
bk
b
b
bbb
bk
r
y
b
y
o
y
br
br
y
y
v
v
r
r
br
br
b
r
r
b
bk
w
v
r
v
r
w
r
gr
w
bk
o
o
y
r
b
b
b
br
o
w
y
b
b
b
r
o
b
b
b
br
y
b
bk
gr
w
v
Y
b
br
br
b
br
v
v
v
v
v
r
r
v
h7
b
r
v
y
r
v
br
v
A2
A1
B1
A3
B2a
B4
B2
B5
B6
B7
D2
G2
D3
D4
I1
H
G1
F2
D1
I2
C
B3
H
I
F1
H
M3
M2
M1
K
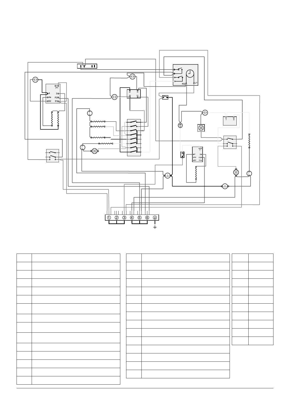
Multifunction oven Classic Deluxe
The connections shown in the circuit diagram are for single-phase. The ratings are for 230 V 50 Hz.
Code Description
A1
Grill Energy Regulator
A2
Grill Elements
A3
Grill Front Switch
B1
Left Hand Multi Function Oven Thermostat
B2
Left Hand Multi Oven Control
B2a
Left Hand Multi Function Oven Thermostat front
Switch
B3
Left Hand Multi Function Oven Base Element
B4
Left Hand Multi Functon Oven Top Element
(Outer Pair)
B5
Left Hand Multi Function Oven Top Element
(Inner Pair)
B6
Left Hand Multi Funciton Oven Fan Element
B7
Left Hand Multi Funciton Oven Fan
C
Clock
D1
Right Hand Oven Front Switch
D2
Right Hand Oven Thermostat
Code Description
D3
Right Hand Oven Element
D4
Right Hand Oven Fan
F1
Cooling Fan
F2
Oven Light Switch
G1
Left-hand oven light
G2
Right-hand oven light
H
Thermal Cut Out
I
Grill Neon
I1
Multi Function Neon
I2
Rapid Heat Neon
K
Right Hand Oven Neon
M1
Proving Draw Switch
M2
Proving Draw Energy Regulator
M3
Proving Draw Element
Code Colour
b
Blue
br
Brown
bk
Black
or
Orange
r
Red
v
Violet
w
White
y
Yellow
g/y
Green/yellow
gy
Grey

Related product manuals