EasyManua.ls Logo

Rangemaster Classic - Page 42

Rangemaster Classic
52 pages
Print Icon
To Next Page IconTo Next Page
To Next Page IconTo Next Page
To Previous Page IconTo Previous Page
To Previous Page IconTo Previous Page
Loading...
38
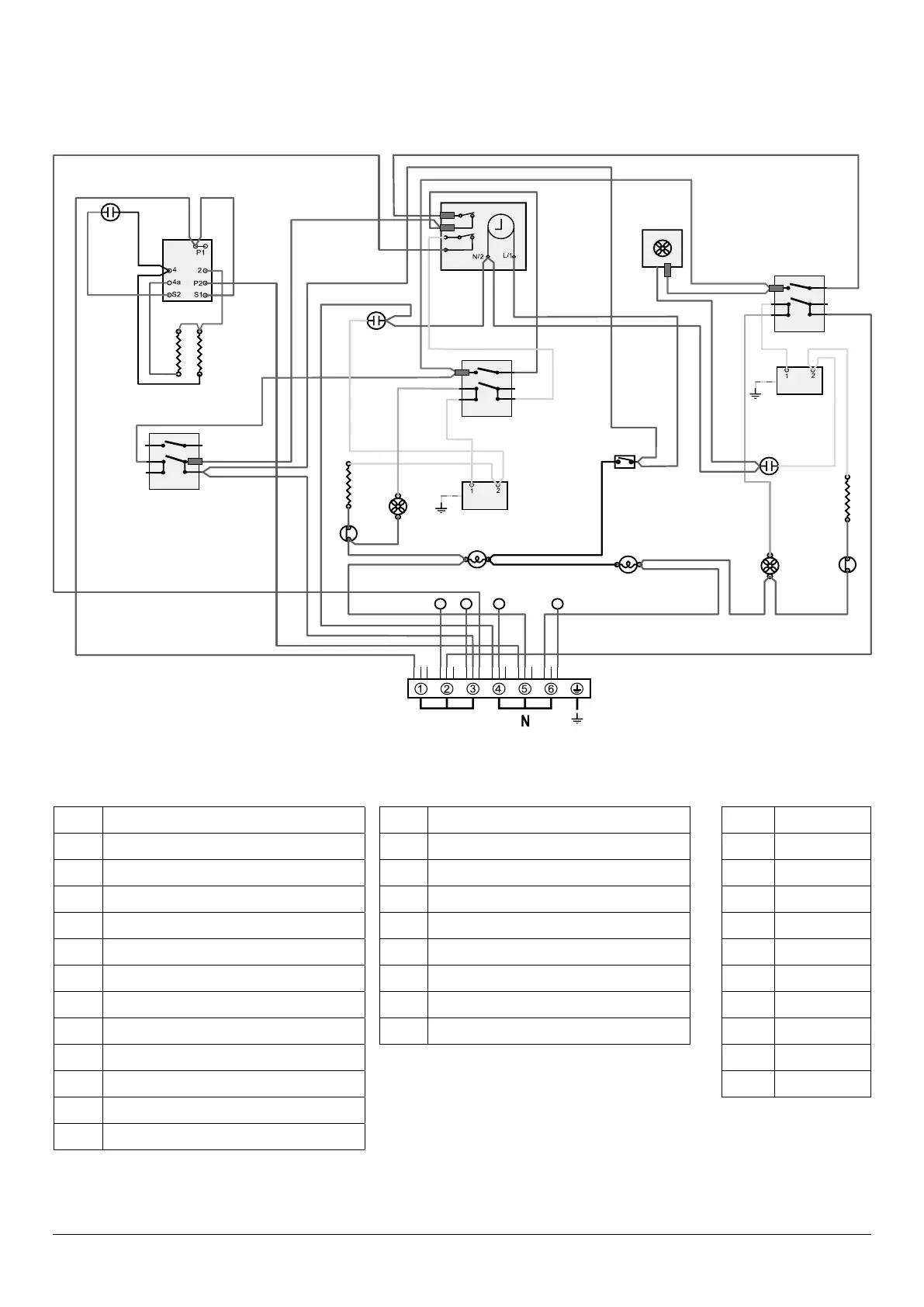
Fan oven Classic, Kitchener and Professional+
The connections shown in the circuit diagram are for single-phase. The ratings are for 230 V 50 Hz.
P095199
2
P2
P1
1
P095199
2
P2
P1
1
P095199
2P2
P1
1
2146
br bbbb
r
b
b
r
b
b
br
v
bk
bk
v
v
br
y
b
y
y
y
br
b
br
b
br
b
bk
b
g/y
v
y
y
or
or
g/y
r
r
bk
br
br
y
or
b
bk
bk
br
b
r
b
b
v
b
b
r
r
r
v
y
y
y
b
r
b
r
b
b
bbr br
br
b
br br b
br
v
y
v
br
y
br
or
br
E
A2
C
A1
L
H
G1
B3
B4
B2
B1
D3
J
G2
H
F
D1
J
D2
D4
K
J
A3
Code Description
A1
Grill front switch
A2
Grill energy regulator
A3
Grill elements
B1
Left-hand oven front switch
B2
Left-hand oven thermostat
B3
Left-hand oven fan
B4
Left-hand oven element
C
Clock
D1
Right-hand oven front switch
D2
Right-hand oven thermostat
D3
Right-hand fan oven element
D4
Right-hand oven element
Code Description
F
Oven light switch
G1
Left-hand oven light
G2
Right-hand oven light
H
Thermal cut-out
J1
Grill Neon
J2
Zoned Oven Neon
J3
Right-hand Oven Neon
K
Cooling fan
Code Colour
b
Blue
br
Brown
bk
Black
or
Orange
r
Red
v
Violet
w
White
y
Yellow
g/y
Green/yellow
gy
Grey

Related product manuals