EasyManua.ls Logo

Rangemaster Kitchener - Gas Connection and Levelling

Rangemaster Kitchener
48 pages
Print Icon
To Next Page IconTo Next Page
To Next Page IconTo Next Page
To Previous Page IconTo Previous Page
To Previous Page IconTo Previous Page
Loading...
INSTALLATION
Check the appliance is electrically safe and gas sound when you have nished.
28
Conversion to Another Gas
If the appliance is to be converted to another gas do the
conversion at this point. See the conversion section of these
instructions.
Levelling
You are recommended to use a spirit level on a shelf in one of
the ovens to check for level.
Place the cooker in its intended position taking care not to
twist it within the gap between the kitchen units as damage
may occur to the cooker or the units.
The front feet and rear rollers can be adjusted to level the
cooker.
To adjust the height of the rear of the cooker use a 13 mm
spanner or socket wrench to turn the adjusting nuts at the
front bottom corners of the cooker.
To set the front turn the feet bases to raise or lower.
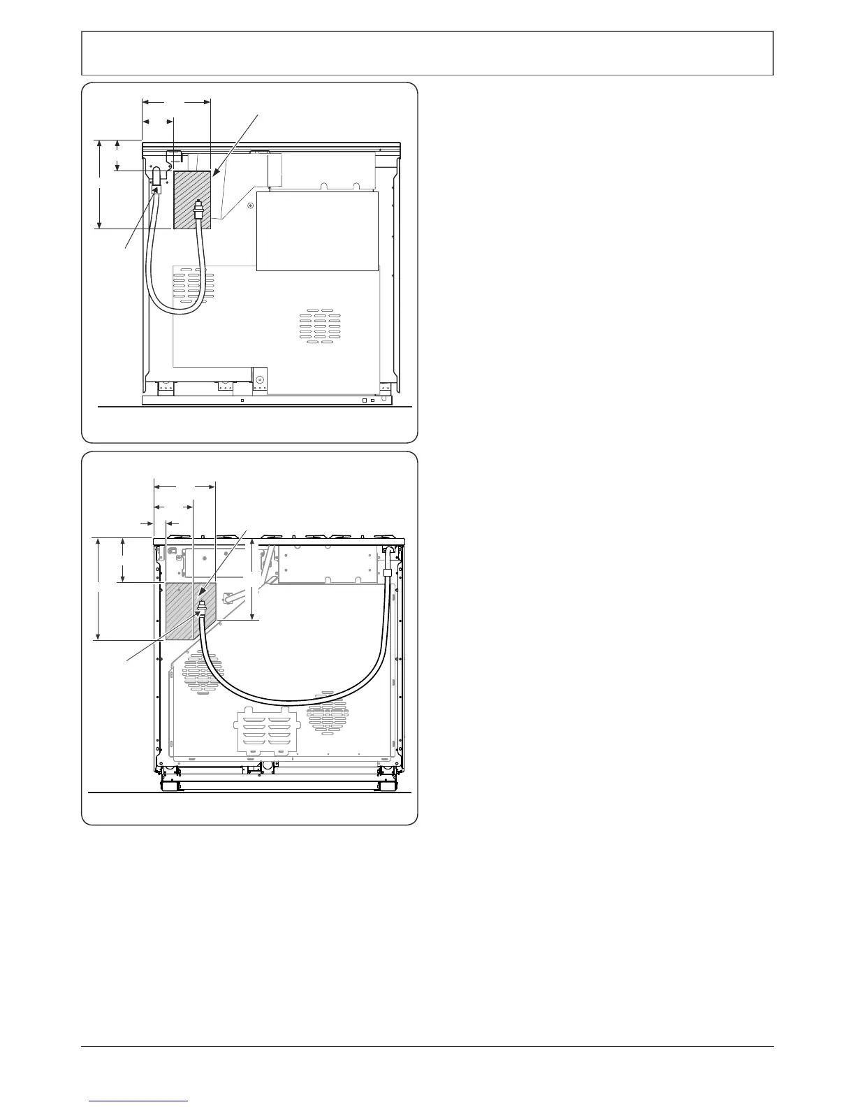
Gas Connection
This must be in accordance with the relevant standards.
The exible hose (not supplied with the cooker) must be
in accordance with the relevant standards. Hoses may be
purchased at most builders merchants.
The gas supply needs to terminate with a down-facing
bayonet.
The connector is located just below the hotplate level at the
rear of the cooker. If in doubt contact your supplier.
The rear cover boxes limit the position of the supply point.
Because the height of the cooker can be adjusted and
each connection is dierent, it is dicult to give precise
dimensions.
Although a 900 mm hose can be used (on the Hi-LITE model
we recommend a 1250 mm hose), a 1250 mm hose will allow
slightly more exibility in the positioning of the bayonet and
make moving the cooker easier.
The hose should be tted so that both inlet and outlet
connections are vertical so that the hose hangs downwards in
a ‘U’ shape.
Ideally the hose supply connection should be within the
shaded area A (Fig. 7.10 or Fig. 7.11 on Hi-LITE model).
For Natural Gas, the exible hose must be in accordance with
BS 669. For LP Gas, it should be capable of 50 mbar pressure
and a 70 °C temperature rise. If in doubt contact, your
supplier.
Screw connect the threaded end of the hose into the gas
inlet.
After completing the gas connection, make sure that the
cooker is gas sound with a pressure test.
ArtNo.090-0027 - 90 Elan gas connections
300
100
240
A
100
All dimensions in millimetres
Gas inlet
290
130
370
140
225
A
30
Gas inlet
All dimensions in millimetres
Fig. 7.10
Fig. 7.11

Related product manuals