EasyManua.ls Logo

Raypak 106 - Safety; Water Temperature Safety; INTRODUCTION Ratings & Certifications

Raypak 106
40 pages
Print Icon
To Next Page IconTo Next Page
To Next Page IconTo Next Page
To Previous Page IconTo Previous Page
To Previous Page IconTo Previous Page
Loading...
6
Spa
Return to Spa
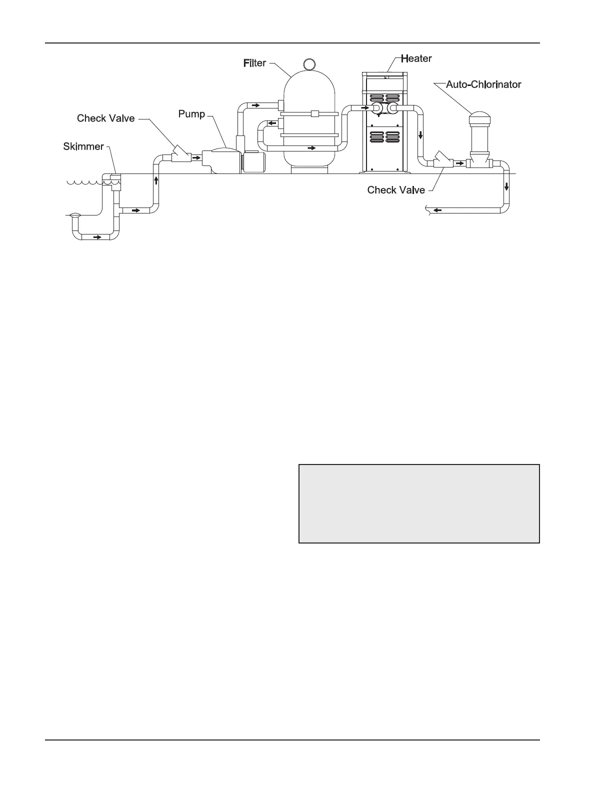
Fig. 1: Spa/Chlorinator Setup
SAFETY
This appliance is to be installed and operated by
trained personnel in accordance with this Installation
and Operation Manual. Be sure to read and under-
stand the entire Installation and Operation Manual
before attempting to install or operate this appliance.
Failure to follow the warnings listed at the beginning of
this manual could result in a fire or explosion, causing
property damage, bodily injury, or death.
Should you have any problems understanding the
warnings and instructions in this manual, STOP, and
get help from a qualified installer, service technician,
or the gas supplier.
Water Temperature Safety
Elevated water temperature can be hazardous. The
U.S. Consumer Product Safety Commission has these
guidelines:
1. Spa water temperatures should never exceed
104°F (40°C). A temperature of 100°F (38°C) is
considered safe for a healthy adult. Special cau-
tion is suggested for young children.
2. Drinking of alcoholic beverages before or during
spa or hot tub use may cause drowsiness which
could lead to unconsciousness and subsequently
result in drowning.
3. Pregnant Women Beware! Soaking in water over
102°F (39°C) may cause fetal damage during the
first three months of pregnancy resulting in the
birth of a brain-damaged or deformed child.
Pregnant women should stick to the 100°F (38°C)
maximum rule.
4. Before entering the spa or hot tub, users should
check the water temperature with an accurate
thermometer; spa or hot tub thermostats may err
in regulating water temperatures by as much as
4°F (2.2°C).
5. Persons with a medical history of heart disease,
circulatory problems, diabetes, or blood pressure
problems should obtain a physician's advice
before using spas or hot tubs.
6. Persons taking medications which induce drowsi-
ness, such as tranquilizers, antihistamines,
anticoagulants, or recreational drugs should not
use spas or hot tubs.
INTRODUCTION
Ratings & Certifications
This pool & spa heater (chauffe-piscine) is design-cer-
tified and tested under the latest requirements of ANSI
Z21.56 / CSA 4.7 Standard for Gas-Fired Pool Heaters
(Chauffe-Piscines). The heater can be used either
indoors or outdoors. (Installer å l’intérieur ou à l’ex-
térieur.) If necessary, the top of the heater can be
changed after installation to accommodate indoors or
outdoors.
AVERTISSEMENT: La U.S. Consumer Product
Safety Commission indique que des températures
de l’eau élevées deuvent être dangereuses. Voir la
notice d’installation et de fonctionnement pour le
réglage de lat température. Suivre les instructions
pour une installation appropriée.

Other manuals for Raypak 106

Related product manuals