EasyManua.ls Logo

Raypak CROSSWIND-65-I - Page 9

Raypak CROSSWIND-65-I
28 pages
Print Icon
To Next Page IconTo Next Page
To Next Page IconTo Next Page
To Previous Page IconTo Previous Page
To Previous Page IconTo Previous Page
Loading...
9
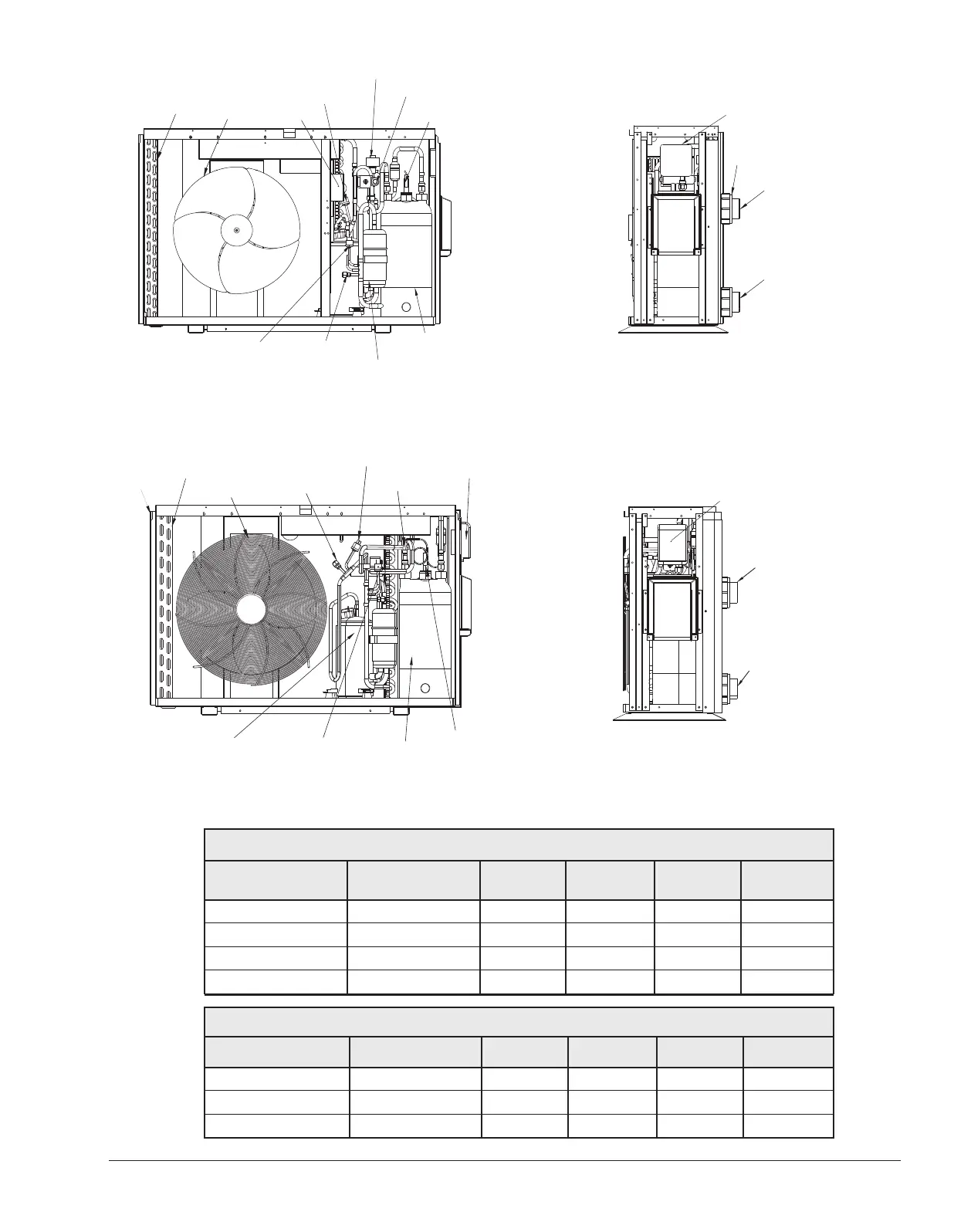
FAN
EVAPORATOR
COMPRESSOR
TITANIUM HEAT
EXCHANGER
REACTOR
4-WAY VALVE
EXPANSION VALVE
HIGH AND LOW
PRESSURE VALVE
LOW PRESSURE
PROTECTION SWITCH
WATER FLOW
SWITCH
HIGH PRESSURE
PROTECTION SWITCH
TOUCH
CONTROLLER
UNION
WATER INLET
1-1/2" PVC UNION
WATER OUTLET
1-1/2" PVC UNION
Figure 4. Inverter Model - Component Locations,
Front View
Figure 5. Inverter Model - Component Locations,
Right Side View
EVAPORATOR
FAN
COMPRESSOR
HIGH AND LOW
PRESSURE VALVE
4-WAY VALVE
WATER
FLOW
SWITCH
FRONT
OF HEAT
PUMP
LED
CONTROLLER
LOW PRESSURE
PROTECTION
SWITCH
HIGH PRESSURE
PROTECTION SWITCH
TITANIUM
HEAT
EXCHANGER
WATER INLET
1-1/2" PVC UNION
LED CONTROLLER
WATER OUTLET
1-1/2" PVC UNION
Figure 6. On/O󰀨 Model - Component Locations,
Front View
Figure 7. On/O󰀨 Model - Component Locations,
Right Side View
Inverter Models 60Hz (Heating and Cooling)
Models Unit Size (BTUH) Raypak P/N Rheem P/N RUUD P/N Jacuzzi P/N
CROSSWIND-30-I 30k 17738 17742 17746 17750
CROSSWIND-40-I 40k 17739 17743 17747 17751
CROSSWIND-50-I 50k 17740 17744 17748 17752
CROSSWIND-65-I 65k 17741 17745 17749 17753
On/O󰀨 Models 60Hz (Heating and Cooling)
Models Unit Size (BTUH) Raypak P/N Rheem P/N RUUD P/N Jacuzzi P/N
CROSSWIND-40-O 40k 18122 18125 18128 18131
CROSSWIND-50-O 50k 18123 18126 18129 18132
CROSSWIND-65-O 65k 18124 18127 18130 18133
Table B. Model Identication
6100.64_Crosswind.indd 9 11/26/2019 4:16:42 PM

Related product manuals