EasyManua.ls Logo

Raypak XFyre 400A - Page 30

Raypak XFyre 400A
60 pages
Print Icon
To Next Page IconTo Next Page
To Next Page IconTo Next Page
To Previous Page IconTo Previous Page
To Previous Page IconTo Previous Page
Loading...
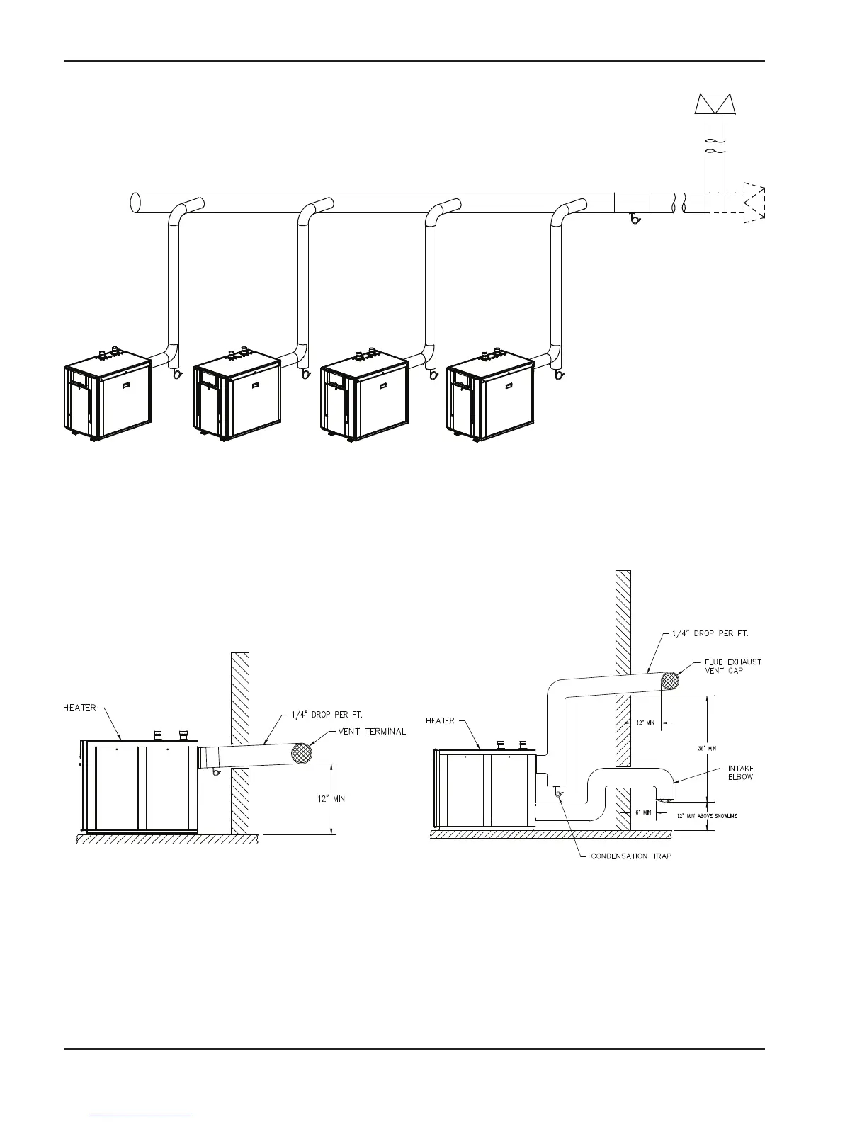
Fig. 23: Typical Common Venting
Horizontal Through-the-Wall Direct
Venting (Category IV)
+GL=%=9L=JKJGL9L=<LGK@GON=FLAF?;GFF=;LAGFK
Fig. 24: Horizontal Through-the-Wall Venting
/=>=JLG19:D=#9F<DG;9D;G<=K
Fig. 25: Horizontal Through-the-Wall Direct Venting
/=>=JLG19:D=#9F<DG;9D;G<=K


Related product manuals