EasyManua.ls Logo

Raypak XFyre 400A - Condensate Management

Raypak XFyre 400A
60 pages
Print Icon
To Next Page IconTo Next Page
To Next Page IconTo Next Page
To Previous Page IconTo Previous Page
To Previous Page IconTo Previous Page
Loading...
1@AK LQH= G> AFKL9DD9LAGF ;9F ;9MK= FGFO9JJ9FL9:D=
HJG:D=EKOAL@;GEHGF=FLK9F<HGGJGH=J9LAGFG>L@=
:
GAD=J <M= LG L@= J=;AJ;MD9LAGF G> >DM= HJG<M;LK *MDLA
HD= N=FL ;9HK AFKL9DD=< AF L@= K9E= @GJARGFL9D HD9F=
EMKL@9N=9>L;D=9J9F;=>JGEL@=KA<=G>GF=N=FL
;9HLGL@=KA<=G>L@=9<B9;=FLN=FL;9HK
GE:MKLAGF9AJKMHHDA=<>JGEGML<GGJKEMKL:=>J==G>
H9JLA;MD9L= 9F< ;@=EA;9D ;GFL9EAF9FLK 1G 9NGA< 9
:DG;C=< >DM= ;GF<ALAGF C==H L@= N=FL ;9H ;D=9J G>
KFGOA;=D=9N=K<=:JAK=L;
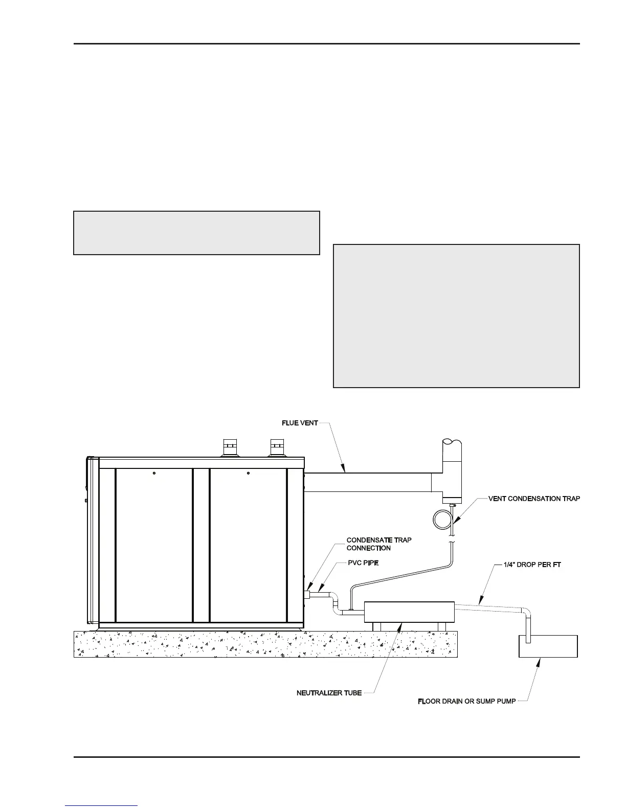
Condensate Management
1@= ;GF<=FK9L= EMKL := <J9AF=< HJGH=JDQ LG HJGL=;L
L@= 9HHDA9F;= 9F<<J9AF9?=KQKL=E 1@= ;GF<=FK9L=
>JGEL@=:GAD=JAK9;A<A;&LKH%AK:=LO==F9F<
/9QH9CJ=;GEE=F<KF=MLJ9DARAF?L@=;GF<=FK9L=OAL@
9 GF<=FK9L=+=MLJ9DAR=JCAL71@=F=MLJ9DAR=JCAL
AK ;GFF=;L=< LG L@= <J9AF KQKL=E 9F< ;GFL9AFK DAE=
KLGF= ;9D;AME ;9J:GF9L= ;@AHK LG F=MLJ9DAR= L@= H%
D=N=DG>L@=;GF<=FK9L=1@=CALE9Q:=9<<=<LG9NGA<
D
GF?L=JE<9E9?=LGL@=<J9AF9?=KQKL=E9F<LGE==L
DG;9D;G<=J=IMAJ=E=FLK
3=FL HAH= ;GF<=FK9L= <J9AFK 9J= 9DKG J=IMAJ=< >GJ
A
FKL9DD9LAGF G> L@= 5#QJ= #GDDGO N=FL E9FM>9;LMJ=J
AFKLJM;LAGFK >GJ DG;9LAGF G> ;GF<=FK9L= <J9AFK AF L@=
N=FL 1@= N=FL ;GF<=FK9L= K@GMD< 9DKG := JGML=<
L@JGM?@9F=MLJ9DAR9LAGFCAL9KJ=IMAJ=<:QDG;9D;G<=
J=IMAJ=E=FLK
1@= F=MLJ9DAR=J CAL EMKL := KAR=< LG L@= ;GF<=FK9L=
?=F=J9L=<:QL@=9HHDA9F;=9F<L@=N=FL
WARNING: +G KM:KLALMLAGFK G> >DM= HAH= GJ N=FL
;9H E9L=JA9D 9J= 9DDGO=< 0M;@ KM:KLALMLAGFK OGMD<
B=GH9J<AR=L@=K9>=LQ9F<@=9DL@G>AF@9:AL9FLK
CAUTION: &F?=F=J9DL@=;GF<=FK9L=HAHAF?>JGE
L@=9HHDA9F;=EMKL@9N=9<GOFO9J<KDGH=G>b\H=J
@GJARGFL9D >GGL GF<=FK9L= <J9AF LJ9HK EMKL :=
HJAE=< OAL@ O9L=J LG HJ=N=FL ?9K >DM= D=9CK
+=MLJ9DAR=JK K@GMD< := ;@=;C=< 9L D=9KL GF;= H=J
Q=9J9F<L@=;@AHKK@GMD<:=J=HD=FAK@=<9KF=;=K
K9JQ 4@=F J=HD9;AF? L@= ;@AHK L@=Q K@GMD< := FG
KE9DD=JL@9Fc\LG9NGA<:DG;C9?=AFL@=;GF<=FK9L=
HAHAF?Fig. 27 is a visual guide only#GDDGOL@=E9F
M>9;LMJ=J]K AFKLJM;LAGFK >GJ L@= AFKL9DD9LAGF G> L@=
F=MLJ9DAR9LAGFCAL9F<;GF<=FK9L=<J9AFK
Fig. 27: Visual Guide for Condensate Piping


Related product manuals