EasyManua.ls Logo

Raytheon Beech Baron E55 - Page 763

Raytheon Beech Baron E55
903 pages
Print Icon
To Next Page IconTo Next Page
To Next Page IconTo Next Page
To Previous Page IconTo Previous Page
To Previous Page IconTo Previous Page
Loading...
RH
UP
TC-1607
AND
LANDING
AFTER
GE~RPOSITION
CIRCUIT
BREAKER
THROTTLEW~RNING
3n3
Cl[j~lRE77t
51~)
1
CIRCUIT
BREAKER
LIGHTER
n
28VDCW~ENN*YIOATION
NOTE:
CIRCU1T
SHOWN
W(TH
GE*R
FULLY
0600M
060CZO
I
CIRCUIT
EXTENDED
AND
ALL
GEARS
LOCKED
5
LIGHTS
ARE
ON
674A20
BREAKER
’NOT
USED
855
AND
E55
AIRCRAFT
GG0BM
1
"TC-1607
AND
AFTER
CG60A20
2
~i
L*MP
TEST
NEC~TIVE
WHEN
PRESS
TO
TEST
SWITCH
IS
PRESSED
RH
G74A20
65420
656420
-C--
G56820
RIGHT
G69nM
665820
T
I
T
G56D20
G56CX1
5
UP
NOSE
G50A20
G50B20
3
4
~f
NOSE
I
I
I
I
r
G50D20
GSOtM
1
G68AXI
664820
DWN
LANDING
GEAR
~1
DOWN
LIMIT
SWITCH
TRANSIT
G67P~M
G63B20
662~20
GS1D20----------------e-
G61C20
G71820
G70AZO
c56sm
I
I
I
I
i
r
ounzoh~
G61B20
LEFT
G61A20
G55420
G58A23
G58820
NOSE
DOWN
I I I I
1
3
658820
658620
LH
ANNUNCIATOR
I I I
I
I
I
I
I
I I I
I
I
1
5
DIM
RELAY
1
1
I
I I
1
i
GE~29
I
I
G52A20
652820
i
I
I
VP
M
652020
G52C2D
G15CZe
672420
G’IIAX)
1
REFER
TO
c,aa2o
aaruhlclaroR
rc54B2C
t
c1~11‘Wtsn22
G57D20
G63C20
r
i
DwH
G63D20
LpAZON
REFER
TO
NAVIGATION
LIGHTS
L22A20N
1
GSODZO
G59C20
L92A18N
-L
W17AM
I
I I I I I
I
I I
I I
I
S
CSSAM
GS~X)
i
cssnzocssen,
W15A20
I
I
G66A20
GMAPO
1Y)OHMS2W
LANDING
RESISTOR
1
GEAR
PRESS
LH
TC
TEST
CONNECTOR
657420
C57BM
LOCK
G64KI
3
I
SWITCHES
i
057020
C57C20
L91n20LIY1~20N
I-
TO
i
t
C90820N
GS1P~M
---C----
CS(BM
DIODES
5
062420
LANDING
GSIDK)
Gslc~o
ANNUNCIATOR
LICH;
GEAR
L91610
6
TERMINALBOIRD
DWN
BU3´•~11
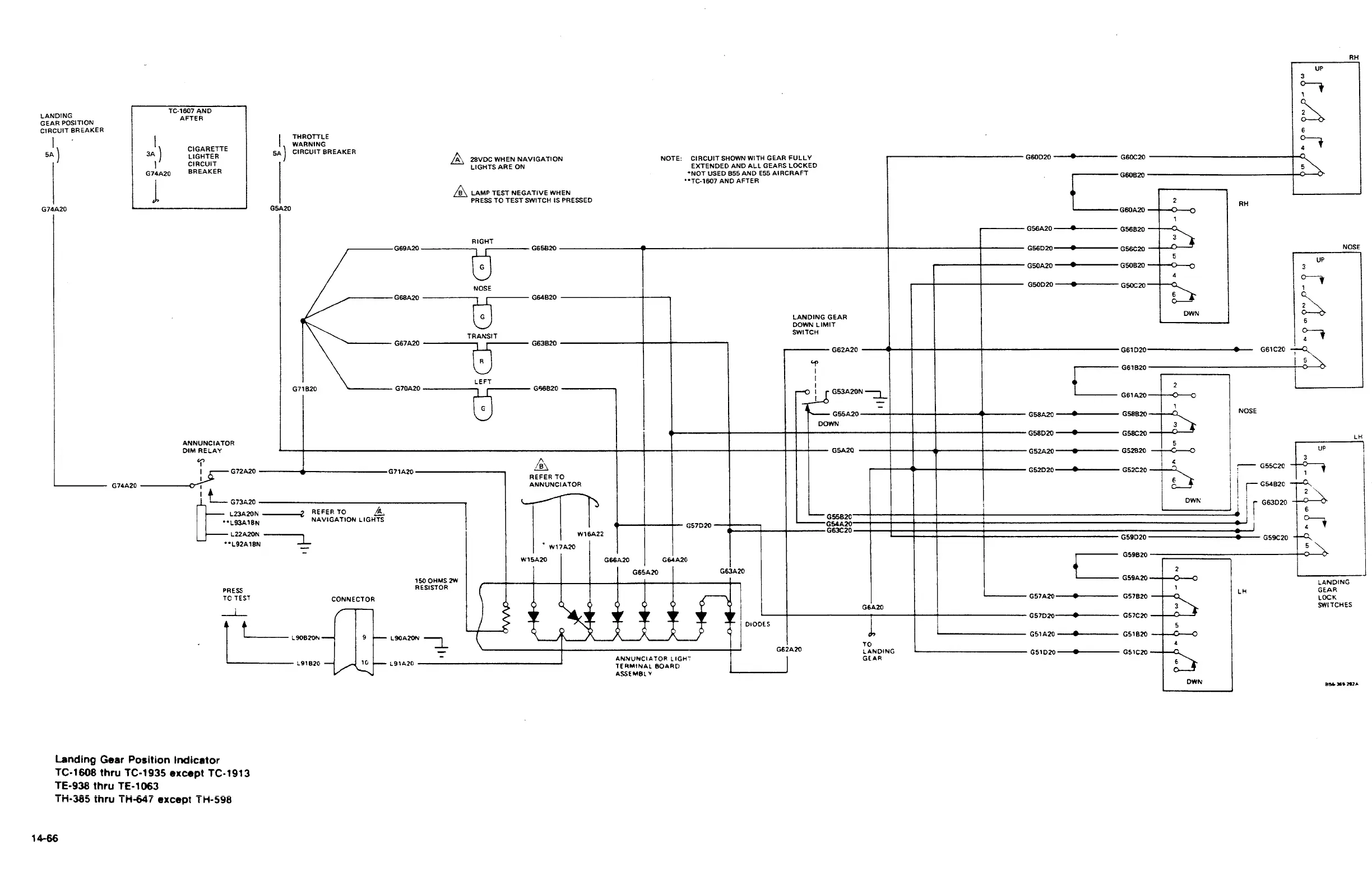
Landing
Gear
Po~ltlon
indicator
TC-1608
thru
TC-1935
except
TC-19~3
TE-938
thru
TE-1063
rii-5~5
ihru
T)i-rS~-i
except
fii-598
14-66

Table of Contents

Related product manuals