EasyManua.ls Logo

Regency C34 - Horizontal Vent Kit Installation Details; Pipe and Terminal Assembly Steps

Regency C34
44 pages
Print Icon
To Next Page IconTo Next Page
To Next Page IconTo Next Page
To Previous Page IconTo Previous Page
To Previous Page IconTo Previous Page
Loading...
22 | Regency
®
CLASSIC C34-10 Direct Vent Freestanding Gas Stove
|
22
installation
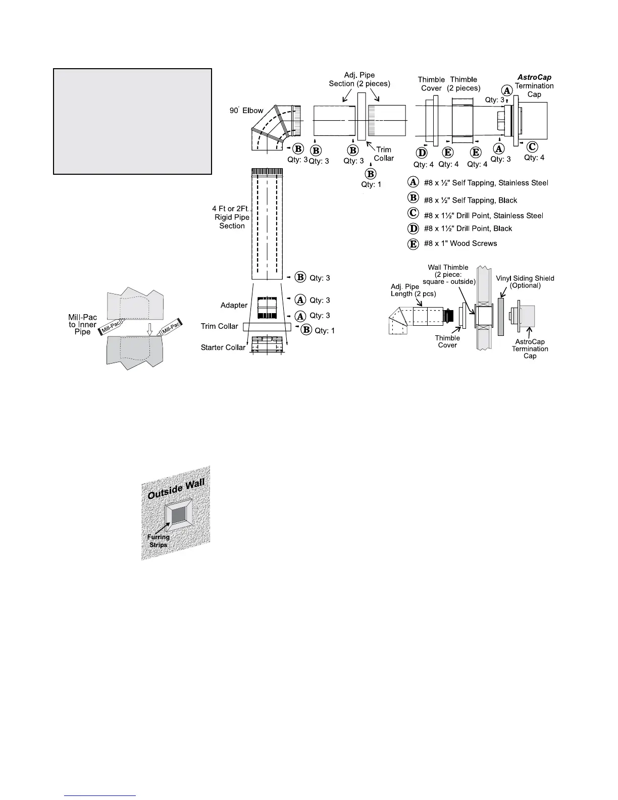
e) Cut the 2 ft. or 4 ft. section of rigid pipe
to length. Ensure that the pipe length
when cut will seat onto both the starter
collar and the 90
o
elbow. Crimped
section of rigid pipe seats into the
90
o
elbow. Only cut the uncrimped
side of pipe.
Dismantle all pipe sections including vent
terminal.
3. Attach the 4" dia. ex liner to the vent terminal
ensuring that the ex overlaps the collar of the
vent terminal by a minimum of 1-3/8"(35mm).
Use Mill-Pac to seal and secure with 3 of the
#8 x 1/2" screws (stainless steel).
4. Attach the adjustable pipe section to the
vent terminal using Mill-Pac and/or high
temperature silicone and attach with 3 of
the #8 x 1/2" screws (stainless steel).
Hint: Apply the sealant (Mill-Pac and/or high
temperature silicone) to the outer pipe before
connecting the inner pipe.
Note: The pipe seam should be facing
down.
Note: To make the installation more aesthet-
ically pleasing, we recommend fram-
ing out a square
that the cap can
be mounted on.
Note: If installing termination on a siding
covered wall, a vinyl siding standoff
or furring strips must be used to
ensure that the termination is not
recessed into the siding. For vinyl
siding standoff installation refer to
the Dura-Vent Termination instruc-
tions.
5. Slide the partially connected pipe and vent
terminal assembly through the wall thimbles
(from the exterior into the interior) and se-
cure the cap to the exterior wall with 4 of
the supplied screws (#8 x 1-1/2" drill point,
stainless steel). Note: pilot holes will need
to be drilled through the wall thimble on all
4 corners.
Note: The four screws provided for the
vent cap should be replaced with ap-
propriate fasteners for stucco, brick,
concrete, or other types of sidings.
6. A bead of non-hardening mastic should
be run around both the termination and
vinyl siding standoff to prevent water from
entering and to make a tight seal between
the cap and the standoff.
7. Stretch the 4" dia. ex liner out fully and get
a trial t of the liner onto the 4" dia. starter
collar.
8. Cut the 4" dia. ex liner to the desired size.
Hint: leave an extra 12" to 16" of length,
this will make the nal assembly easier to
work with.
9. Secure the 4" dia. ex liner to the 4" adapter
with Mill-Pac and 3 of the #8 x 1/2" screws
(stainless steel).
10 Slide the decorative Thimble Cover over the
pipe sections and secure with 4 screws (#8
x 1-1/2" drill point, black) to the wall.
Slide the trim collar over the adjustable pipe
sections to cover the joint of the telescopic
section.
11. Slide the 90
o
elbow (crimp end up) and the
2 ft. or 4 ft. pipe section (crimp end up) over
the 4" dia. ex liner.
12. Install the spring spacers onto the pipe
sections.
13. Secure the 4" dia. ex liner with adapter
onto the stove collar. Put a bead of Mill-Pac
around the appliance adapter and secure
with 3 screws (#8 x 1/2, stainless steel).
14. Attach the pipe section onto the starter
collar by sealing with Mill-Pac and/or high
temperature silicone and securing with 3 of
the #8 x 1/2" (black) screws. Pipe seams
should be facing the wall.
15. Attach the 90
o
elbow onto the pipe sec-
tion by sealing with Mill-Pac and/or high
temperature silicone and securing with 3
of the #8 x 1/2" screws (black).
17. Slide the adjustable pipe section onto the
90
o
elbow. The ex may have to be com-
pressed back in order for the adjustable pipe
to properly mate to the elbow. Seal with
Mill-Pac and/or high temperature silicone
and secure with 3 of the #8 x 1/2" screws
(black). Pipe seams facing down.
17. Install the trim collar over the starter collar
and secure with a #8 x 1/2" screw (black).
If the pipe needs to be touched up, use only
Stove Brite High Temperature Metallic Black
Stove Paint.
NOTE: All inner joints must be sealed with
Mill-Pac. All outer joints may be
sealed with high temperature sili-
cone.

Table of Contents

Related product manuals