EasyManua.ls Logo

Regency C34 - Electrical Wiring and Grounding; Appliance Wiring Diagram

Regency C34
44 pages
Print Icon
To Next Page IconTo Next Page
To Next Page IconTo Next Page
To Previous Page IconTo Previous Page
To Previous Page IconTo Previous Page
Loading...
Regency
®
CLASSIC C34-10 Direct Vent Freestanding Gas Stove | 33
|
33
installation
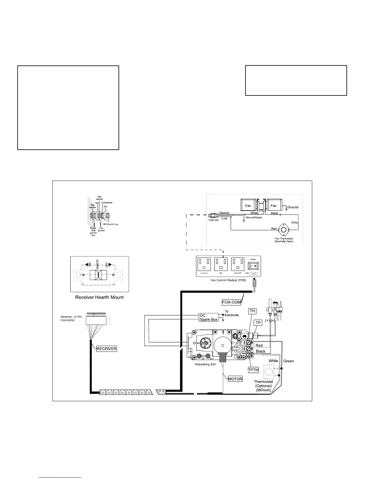
WIRING DIAGRAM
This heater does not require a 120V A.C. sup-
ply for operation. In case of a power failure, the
burner switch and the optional remote control/
thermostat will continue to operate.
However, a 120V A.C. power supply is needed
for the fan/blower operation.
CAUTION: Ensure that the wires
do not touch a hot surface and are
away from sharp edges.
WARNING:
Electrical Grounding
Instructions
This appliance is equipped with
a three pronged (grounding)
plug for your protection against
shock hazard and should be
plugged directly into a properly
grounded three-prong recepta-
cle. Do not cut or remove the
grounding prong from this plug.

Table of Contents

Related product manuals