EasyManua.ls Logo

RHOSS UTNC-EV - Page 22

RHOSS UTNC-EV
37 pages
Print Icon
To Next Page IconTo Next Page
To Next Page IconTo Next Page
To Previous Page IconTo Previous Page
To Previous Page IconTo Previous Page
Loading...
ALLEG ATI / ENCOLSED DOCUMENTS / ANNE XES / ANLAGEN / ANEXOS
92
UTNC-EV / UTNC-EV B4 / UTNC-EV REL: 61 – 86 111
UTNC-I / UTNC-I B4 / UTNC-I REL: 61 86 111
145
3
250
595
812
960
100
156
825
825
211
60
401
458
385
74
369
620
16
1
2
6
8
4
4
5
5
69
40
159
138
74
9674
109
40
172
27855
35
298
9
150
122
7
10
1
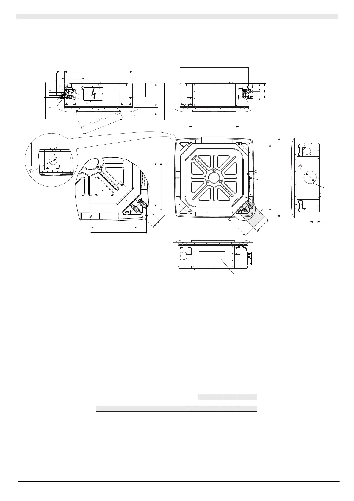
Assieme cornice-griglia
(Plafonatura)
Grille/frame assembly
Grille de soufflage
et de reprise d’air
Gitter/Luftansaug-Baugruppe
Rejilla/toma de aire
2 Staffa di appensione Fastening bracket Etrier de support Montagewinkel Abrazadera de suspensión
3
Vaschetta ausiliaria
(accessorio KVA)
Auxiliary condensate
drain tray (KVA)
Bac auxiliaire de récupération
de la condensation (KVA)
Zusätzliche
Kondensatwanne (KVA)
Bandeja auxiliar de recogida
de la condensación (KVA)
4 Attacchi idraulici – entrata Water connectionsinlet Raccords hydrauliques - entrée Wasseranschlüsse - Eintrag Conexiones hidráulicas - entrada
5 Attacchi idraulici – uscita Water connections - outlet Raccords hydrauliques - sortie Wasseranschlüsse - verlassen Conexiones hidráulicas - salida
6 Tubo di scarico condensa Condensate drain pipe
Tuyau d’évacuation de
la condensation
Kondenswasserablassrohrs
tubo de descarga de
la condensación
7
Distribuzione aria in
locale attiguo
Air distributed into an
adjacent room
Distribution air dans la
pièce attenante
Verteilung der Luft in einen
angrenzenden Raum
Distribución del aire en el
local adyacente
8 Presa aria esterna Outdoor air inlet Prise d'air neuf Frischluftsaugung Toma de aire exterior
9 Quadro elettrico Electrical box Armoire électrique Schalttafel Cuadro eléctrico
10 KCMS-KCMI KCMS-KCMI KCMS-KCMI KCMS-KCMI KCMS-KCMI
61 86 111 111 B4
Unità/Unit/Unité/Gerät/Unid ad Kg 37, 1 37, 1 39, 6 40, 6
Cornice/Frame/G rill e/Rahm en/Bastidor Kg 5 5 5 5