EasyManua.ls Logo

RHOSS UTNC-EV - Page 32

RHOSS UTNC-EV
37 pages
Print Icon
To Next Page IconTo Next Page
To Next Page IconTo Next Page
To Previous Page IconTo Previous Page
To Previous Page IconTo Previous Page
Loading...
ALLEG ATI / ENCOLSED DOCUMENTS / ANNE XES / ANLAGEN / ANEXOS
102
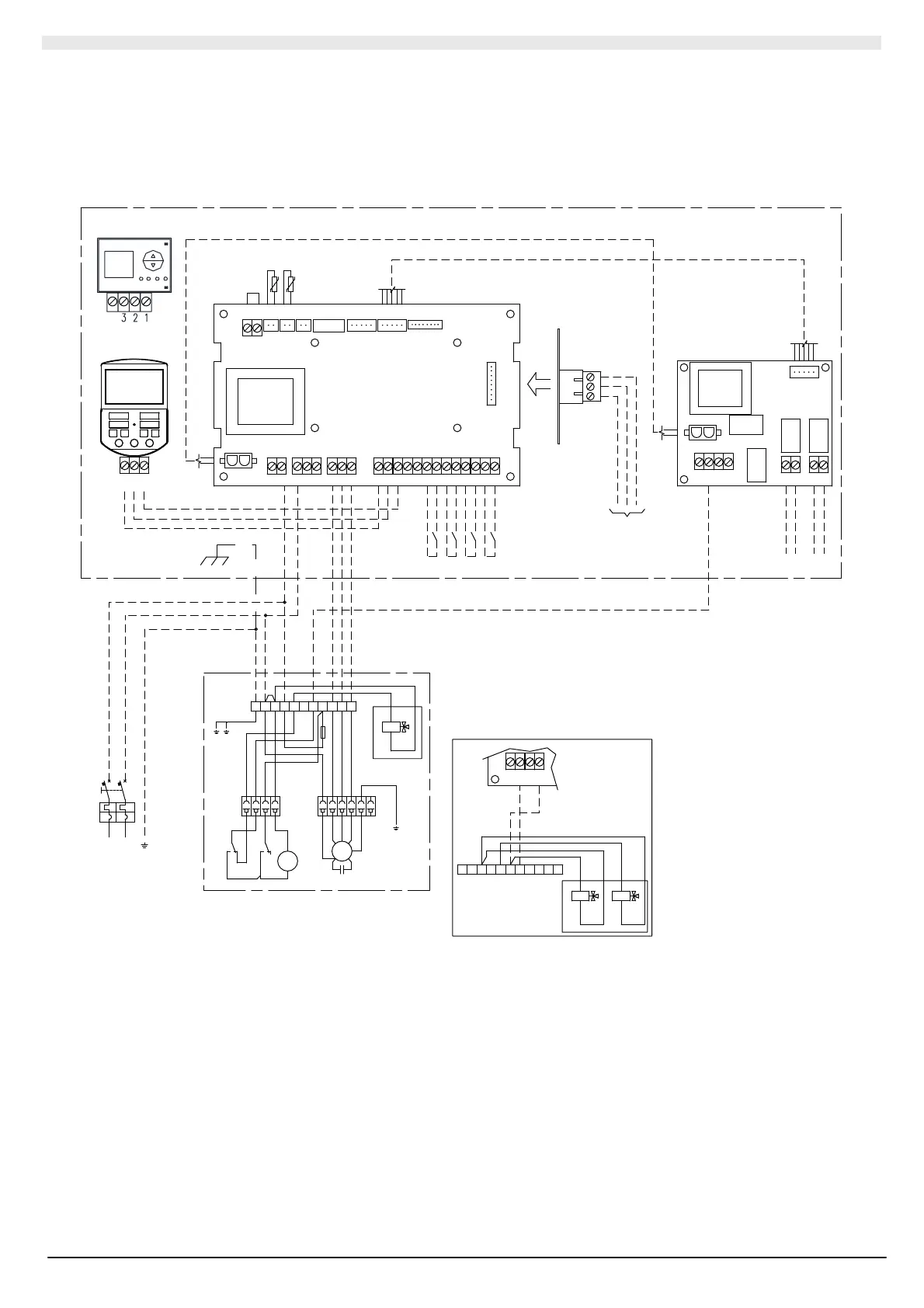
UTNC-EV / UTNC-EV B4 26÷111
8VGN TX
546
KPCM
230V-1ph-50Hz
L N
IG
SIC ECOEIRSCR
CMS
ST2ST1
KRS485
KISI
KFTT10
KMVR
KCMS
UTNC-EV
KUSB
KRS232
ALL
32
4
1
21 6543
NPE VNL HCLC V2 V1V3
1
2
F
F=1A type F
A
Y/GY/G
TB
A
C
W
R
Y/G
A
B
O
B
G
1CM
1CF
3CM
3CF
1
3
5
PS
C
1
3
5
1LIV2LIV
GO BA
C
FS FS
M
C
W
R
B
Y/G
CV
CCA
CCH
NPE VNL HCLC V2 V1V3
1HW 1CW
KMVR
KV2/KV3
KV2B4/KV3B4
No6
SUPPLY EXP
No5No4
NN
M1
M3
J1
K1
K2
No7
M2
EXP
K4 K3
MED
No2
J1
MAX
COM
SUPPLY
EXP
LL
M2 M3
No3
NNN
B2DI5 B1 B3
DIP
DI2
MIN
V+GN TX
No1
M1
DI1
GN TX
DI4DI3
S
E
R
I
A
L
J2
EXPFLAP IR
No5No4
NN
M1
KICM
8VGN TX