EasyManua.ls Logo

Rinnai R63LSe - Piping Diagrams

Rinnai R63LSe
40 pages
Print Icon
To Next Page IconTo Next Page
To Next Page IconTo Next Page
To Previous Page IconTo Previous Page
To Previous Page IconTo Previous Page
Loading...
22 VA Series Outdoor LS Manual
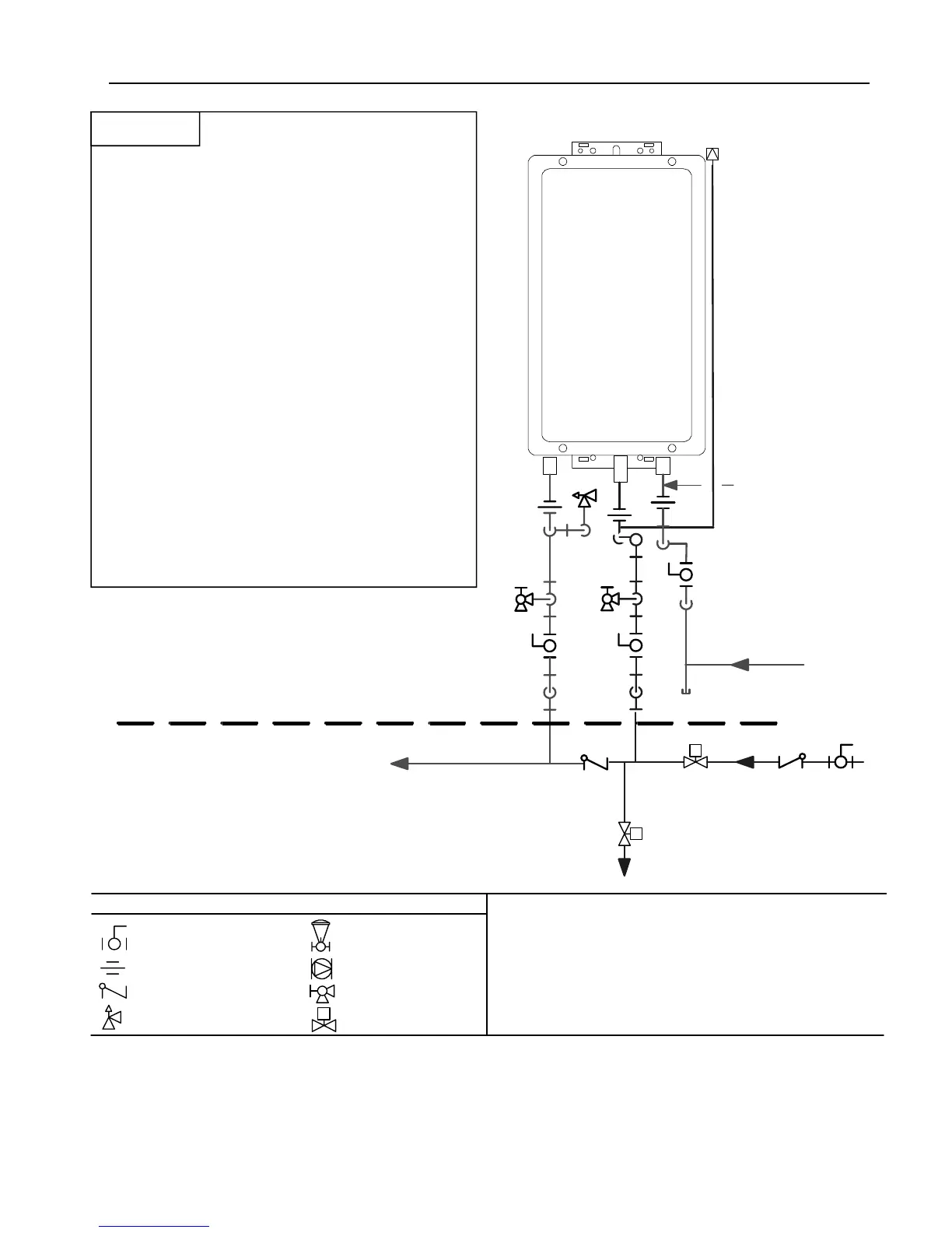
Freeze Protection Piping
This is not an engineered drawing, it is intended only as a guide and
not as a replacement for professionally engineered project drawings.
This drawing is not intended to describe a complete system, it is up to
the contractor/engineer to determine the necessary components for
and configuration of the particular system being installed. The
drawing does not imply compliance with local building code
requirements. It is the engineer/contractor responsiblity to ensure the
installation is in accordance with all local building codes. Confer with
local building officials before installation.
Pressure Relief Valve
3/4" Ball Valve
3/4" Union
Check Valve
S
Pressure Regulator
Circulating Pump
Solenoid Valve
Boiler Drain Valve
KEY
G
a
s
S
u
p
p
l
y
M
i
n
i
m
u
m
3
/
4
"
C
o
l
d
W
a
t
e
r
S
u
p
p
l
y
L
i
n
e
Minimum 3/4" Hot Water
Supply Line
S
1/2" Minimum
Normally Open
Solenoid Valve
3/4" Minimum
Normally Closed
Solenoid Valve
Route to Floor Drain
Vacuum
Breaker
NOTE:
ALL pipe and fittings shown below dashed line
should be located inside home or building
structure.
NOTE:
Heat trace ALL water pipe and fittings located
outside home(attic, crawl space) or building
structure. (ALL water pipe and fittings shown
above the dashed line in the drawing.)
Rinnai
Water Heater
3
/
4
"
G
a
s
C
o
n
n
e
c
t
i
o
n
S
The vacuum breaker line should be located
inside the building structure.
Warranty does not cover damage due to freezing.
With electrical power supplied to a Rinnai water
heater, it will not freeze in environments as cold as
-30ºF when protected from direct wind exposure.
In the event of a power failure at temperatures below
freezing the water heater should be drained of all
water to prevent freezing damage.
The unit may be drained manually. However, Rinnai
highly recommends that drain down solenoid valves
be installed that will automatically drain the unit if
power is lost. Rinnai also recommends the installation
of a sub-PC board that attaches to the PC board in the
unit and allows the solenoid valves to operate if the
unit is disabled due to an error code.
When the electrical power to the water heater fails, the
3/4” solenoid valve closes (stopping the flow of water
into the heater) and the 1/2” solenoid valve opens
(allowing the water heater and associated piping to
drain. Ensure that you run the drain for the solenoids
to the outside environment to prevent discharging
water inside the building causing water damage.
NOTICE

Table of Contents

Other manuals for Rinnai R63LSe

Related product manuals