EasyManua.ls Logo

Rinnai R63LSe - Recommended Piping for Circulation Systems

Rinnai R63LSe
40 pages
Print Icon
To Next Page IconTo Next Page
To Next Page IconTo Next Page
To Previous Page IconTo Previous Page
To Previous Page IconTo Previous Page
Loading...
24 VA Series Outdoor LS Manual
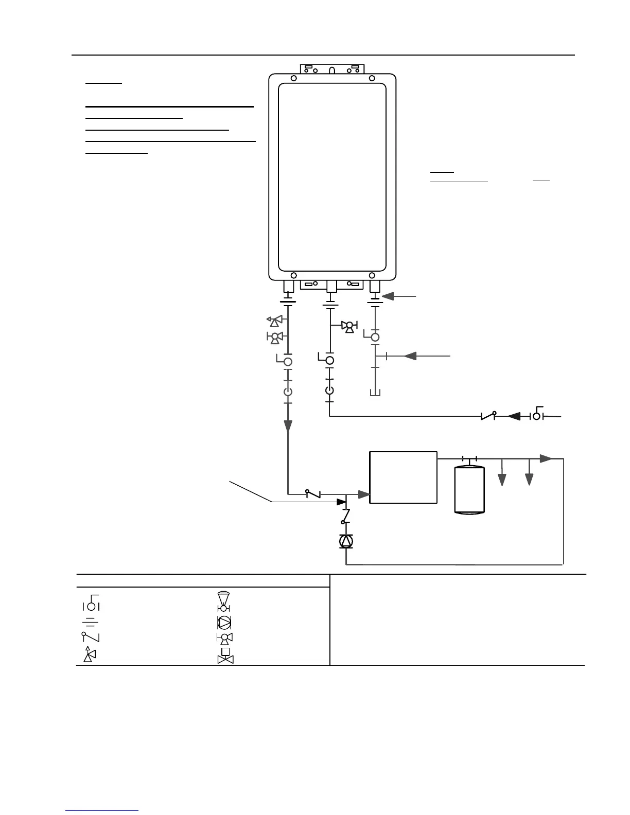
Recommended Piping for Circulation Systems
This is not an engineered drawing, it is intended only as a guide and
not as a replacement for professionally engineered project drawings.
This drawing is not intended to describe a complete system, it is up
to the contractor/engineer to determine the necessary components
for and configuration of the particular system being installed. The
drawing does not imply compliance with local building code
requirements. It is the engineer/contractor responsiblity to ensure
the installation is in accordance with all local building codes. Confer
with local building officials before installation.
Pressure Relief Valve
3/4" Ball Valve
3/4" Union
Check Valve
S
Pressure Regulator
Circulating Pump
Solenoid Valve
Boiler Drain Valve
KEY
Minimum 3/4" Cold Water Supply Line
Electric Water
Heater
Building
Fixtures
Building Supply
E
x
p
a
n
s
i
o
n
T
a
n
k
G
a
s
S
u
p
p
l
y
QTY
1
1
Rinnai
Water Heater
Notes:
PLEASE NOTE FOR RESIDENTIAL
AND COMMERCIAL
APPLICATIONS, THIS PIPING
ARRANGEMENT MAINTAINSFULL
WARRANTY
Rinnai
Equipment List
Rinnai
Water Heaters
RIK-KIT (Optional)
(3/4" Fittings Include:
2Unions, 2 Ball Valves,
2Drain Valvesand
1Pressure Relief Valve.)
3
/
4
"
G
a
s
C
o
n
n
e
c
t
i
o
n
IMPORTANT: Connect the building
return line to the hot water supply line
as close as possible to the Rinnai Water
Heater.
Tank Water Heater to be Sized for
Heat Loss of Circulation Loop.
For this application:
Pump should be controlled by an Aquastat,
Timer or Combination Aquastat and Timer.
Pump to be sized to maintain circulation
loop temperature.
A minimum of 3 GPM flow is recommended
for the circulation system.
The pump should be sized to overcome the
pressure loss through the Rinnai water
heater, supply and return plumbing. Refer -
ence the Rinnai Hot Water System Design
Manual, Pump Sizing for Circulation.
Pump to be of bronze or stainless construc -
tion.

Table of Contents

Other manuals for Rinnai R63LSe

Related product manuals