EasyManua.ls Logo

Rinnai R63LSe - Cable Lengths and Mounting

Rinnai R63LSe
40 pages
Print Icon
To Next Page IconTo Next Page
To Next Page IconTo Next Page
To Previous Page IconTo Previous Page
To Previous Page IconTo Previous Page
Loading...
VA Series Outdoor LS Manual 31
Remote Controller Installation
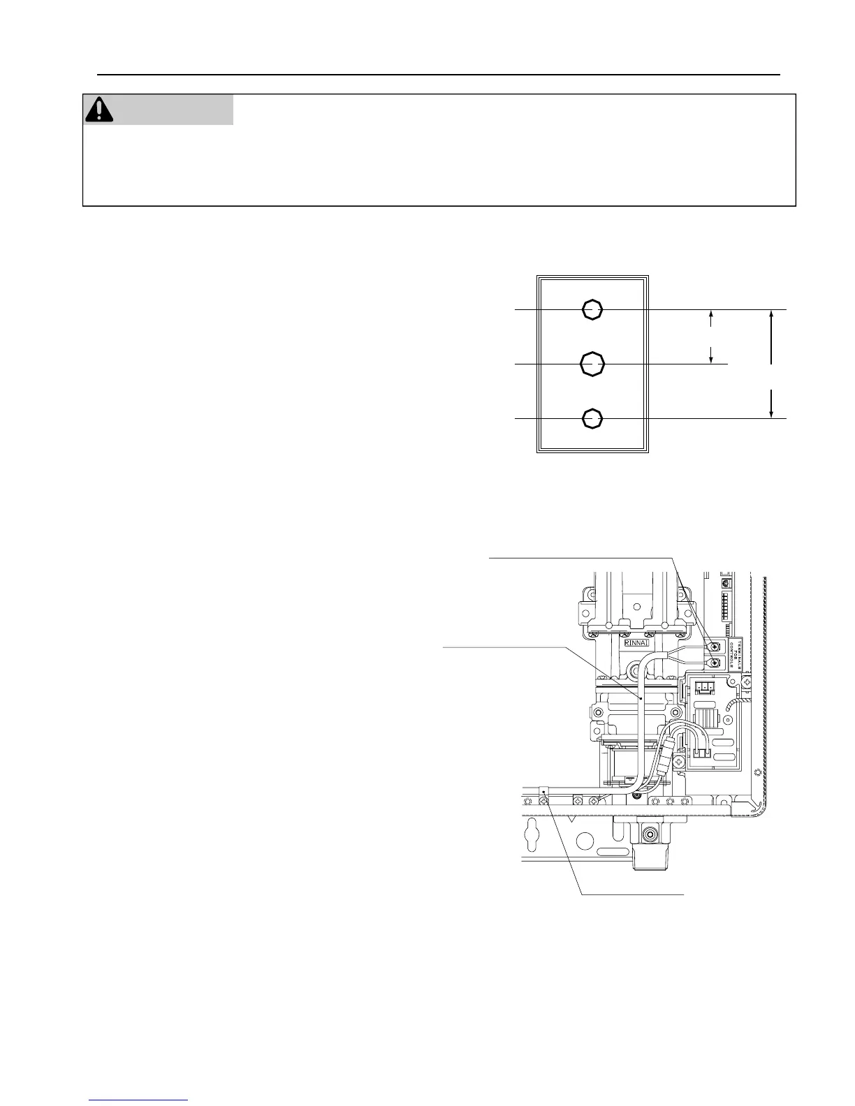
1. Determine a suitable location for the
controller.
2. Make three holes in the wall as shown.
3. Run the cable between the controller and the
Rinnai water heater or the controller and
another controller.
4. Remove the face plate from the remote
controller using a screw driver.
5. Connect the cable to the remote controller.
6. Mount the controller to the wall using the
holes drilled in step 2.
Do not attempt to connect the remote controllers with the power on. There is 120 volt
potential, next to the remote controller connections inside the unit.
Do not connect the remote controller to the 120VAC terminals provided for the
optional solenoid drain valves.
All service and wiring should be performed by a registered installer.
WARNING
Outline of Remote
securing screw
1-21/32"
3-5/16
"
securing screw
wiring hole
Mounting on the wall
7. Disconnect the power from the Rinnai water
heater.
8. Remove the cover of the Rinnai water heater.
9. Remove the plastic cover from the PCB and
electrical connections.
10. Thread the cable through the access hole at
the base of the unit and connect the wires to
the controller terminals on the right hand side
bottom of the PCB.
11. Secure the controller cable using the clamp
provided.
12. Replace plastic cover over PCB and then
replace the cover of the Rinnai water heater.
Connecting to the R75LSe, R94LSe, R98LSe, and R98LSe-ASME
CABLE CLAMP
REMOTE
CONTROL CABLE
REMOTE CONTROL
CONNECTION TERMINALS

Table of Contents

Other manuals for Rinnai R63LSe

Related product manuals