EasyManua.ls Logo

Rinnai R63LSe - Recommended Piping for Basic Installation

Rinnai R63LSe
40 pages
Print Icon
To Next Page IconTo Next Page
To Next Page IconTo Next Page
To Previous Page IconTo Previous Page
To Previous Page IconTo Previous Page
Loading...
VA Series Outdoor LS Manual 23
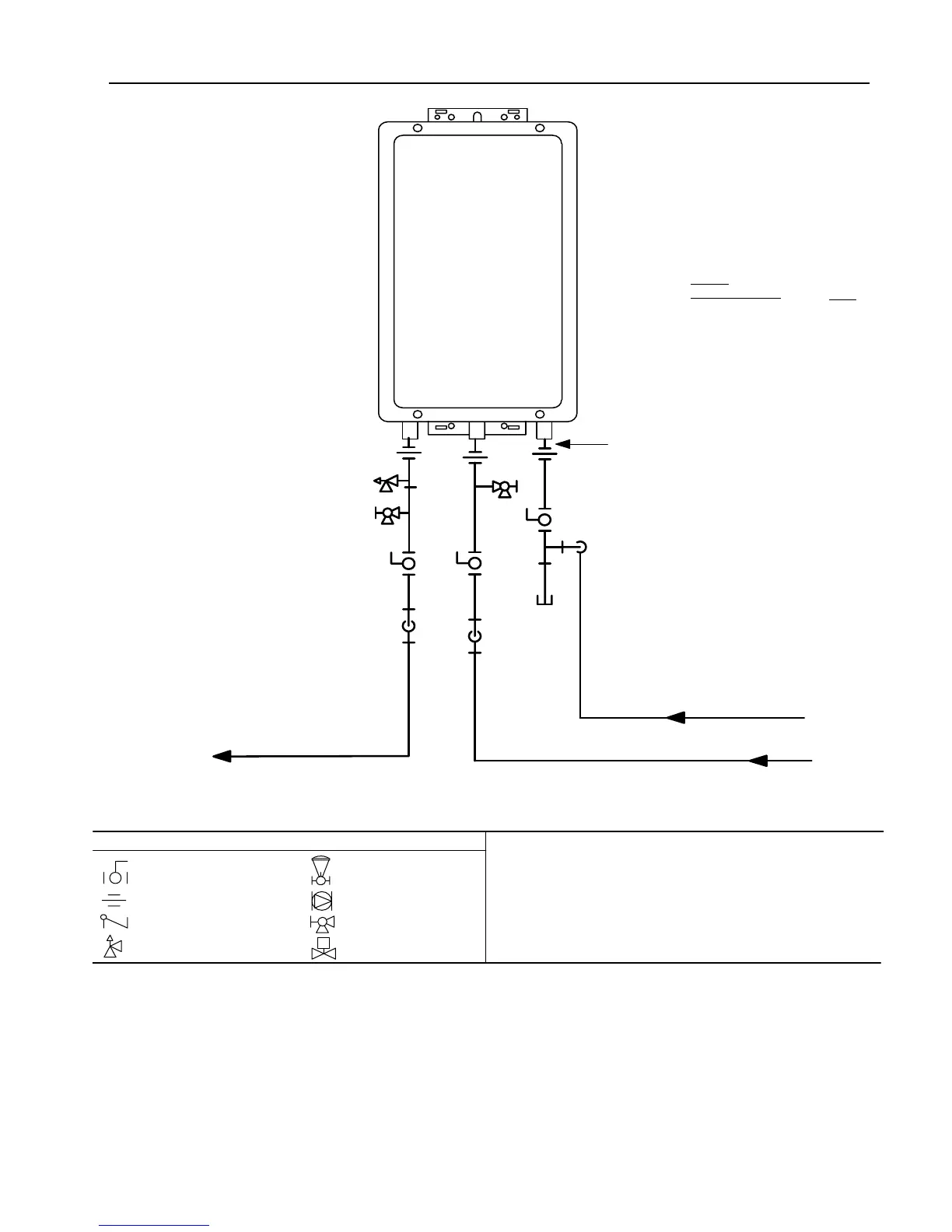
Recommended Piping for Basic Installation
G
a
s
S
u
p
p
l
y
3
/
4
"
C
o
l
d
W
a
t
e
r
S
u
p
p
l
y
L
i
n
e
3/4" Hot Water Supply Line
Rinnai
Water Heater
Rinnai
Equipment List
Rinnai
Water Heaters
RIK-KIT (Optional)
(3/4" Fittings Include:
2Unions, 2 Ball Valves,
2Drain Valves and
1Pressure Relief Valve.)
QTY
1
1
3
/
4
"
G
a
s
C
o
n
n
e
c
t
i
o
n
ForBuilding Fixtures
This is not an engineered drawing, it is intended only as a guide and
not as a replacement for professionally engineered project drawings.
This drawing is not intended to describe a complete system, it is up
to thecontractor/engineer to determine the necessary components
forand configuration of the particular system being installed. The
drawing does not imply compliance with local building code
requirements. It is the engineer/contractor responsiblity to ensure
theinstallationisinaccordance with all local building codes. Confer
with local building officials before installation.
Pressure Relief Valve
3/4" Ball Valve
3/4" Union
Check Valve
S
Pressure Regulator
Circulating Pump
Solenoid Valve
Boiler Drain Valve
KEY

Table of Contents

Other manuals for Rinnai R63LSe

Related product manuals