EasyManua.ls Logo

Rinnai RUR98i - Additional Clearances

Rinnai RUR98i
160 pages
Print Icon
To Next Page IconTo Next Page
To Next Page IconTo Next Page
To Previous Page IconTo Previous Page
To Previous Page IconTo Previous Page
Loading...
KBP Series Manual 9
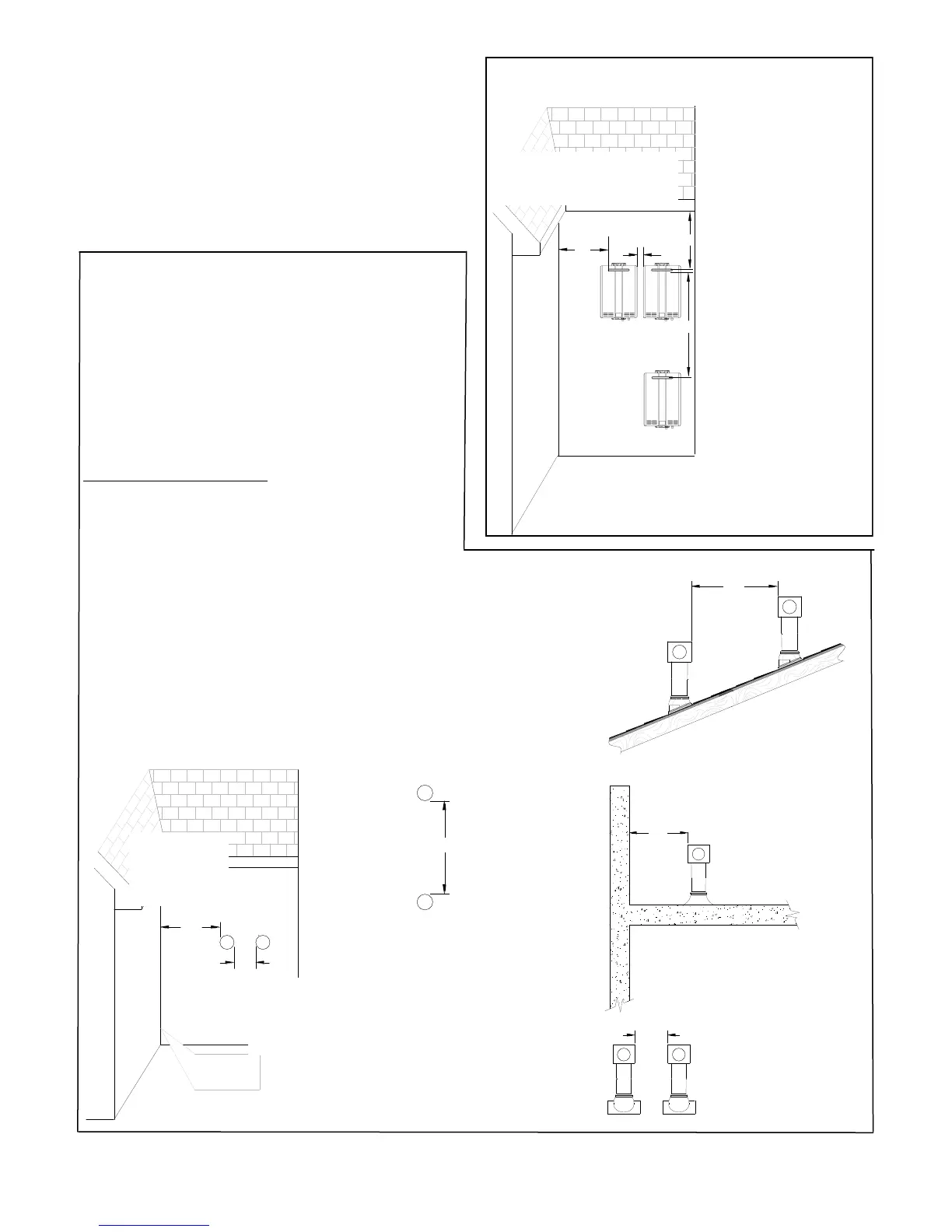
Addional clearances
Check to determine whether local codes supersede
these clearances.
Avoid terminaon locaons near a dryer vent.
Avoid terminaon locaons near commercial
cooking exhaust.
You must install a vent terminaon at least 12
inches above the ground or ancipated snow
level if higher.
(0.30 m) between
terminals at same
level
(1.52 m)
vercally
between
terminals
2"
12"
60"
36"
60"
V
V
(1.52 m)
between
terminals at
dierent levels
24"
V
(0.61 m) to wall or parapet
12"
V V
V
60"
V
RUR98e
RUR98i
(0.30 m) between
terminals at same
level
(0.30 m ) to
an inside
corner
(0.91 m) to venlated
or unvenlated sot
or eve vent; or to a
deck or porch
(1.52 m) vercally
between terminals
(50 mm) between
terminals at same level
(0.30 m) to an
inside corner
The vent for this appliance shall not terminate
Over public walkways; or
Near sot vents or crawl space vents or other
area where condensate or vapor could create a
nuisance or hazard or cause property damage; or
Where condensate or vapor could cause damage
or could be detrimental to the operaon of
regulators, relief valves, or other equipment.
for locang vent
terminaon under a sot (venlated or unvenlated
or eave vent; or to a deck or porch)
Do not install vent terminaon under a sot vent
such that exhaust can enter the sot vent
Install vent terminaon such that exhaust and rising moisture
will not collect under eaves. Discoloraon to the exterior of
the building could occur if installed too close.
Do not install the vent terminaon too close under the sot
where it could present recirculaon of exhaust gases back
into the combuson air intake part of the terminaon.

Table of Contents

Other manuals for Rinnai RUR98i

Related product manuals