EasyManua.ls Logo

Robland E2800 - Explanation of Accoustic Levels; General Dimensions E-300

Robland E2800
65 pages
Print Icon
To Next Page IconTo Next Page
To Next Page IconTo Next Page
To Previous Page IconTo Previous Page
To Previous Page IconTo Previous Page
Loading...
6 V0913 E 300 / E 2800
English Deutsch
Explanation of accoustic levels
The values given are the emission levels; these are not necessarily the levels at which the operator
can work safely.
Although there is a link between the emission values and the exposition level, it cannot be used in a
reliable way to determine if supplementary measures should be taken.
noIse InForMatIon
Measurements as per ISO norm 7960 as per annexe D
Workpost
under load
Level continuous
accoustic pressure
per index A
dB (A)
Level accoustic
power
dB (A) (MW)
Max. value accoustic
pressure as per index
C (instantaneous)
dB
Saw 91 105 dB (A)(26,3) < 130
dust eMIsIon leVels
The dust emission level examination was carried out by the following approved body:
Prünstitut für Holzstaubmessungen
Institut für Werkzeugmaschinen
Universität Stuttgart – Germany
Measurements as per DIN 33 893 (GS-HO-05)
Measurements show that the TRK value of 2 mg/m³ has not been exceeded.
Notication number and date: 08.03.1996/FPH-AZ: 029/95
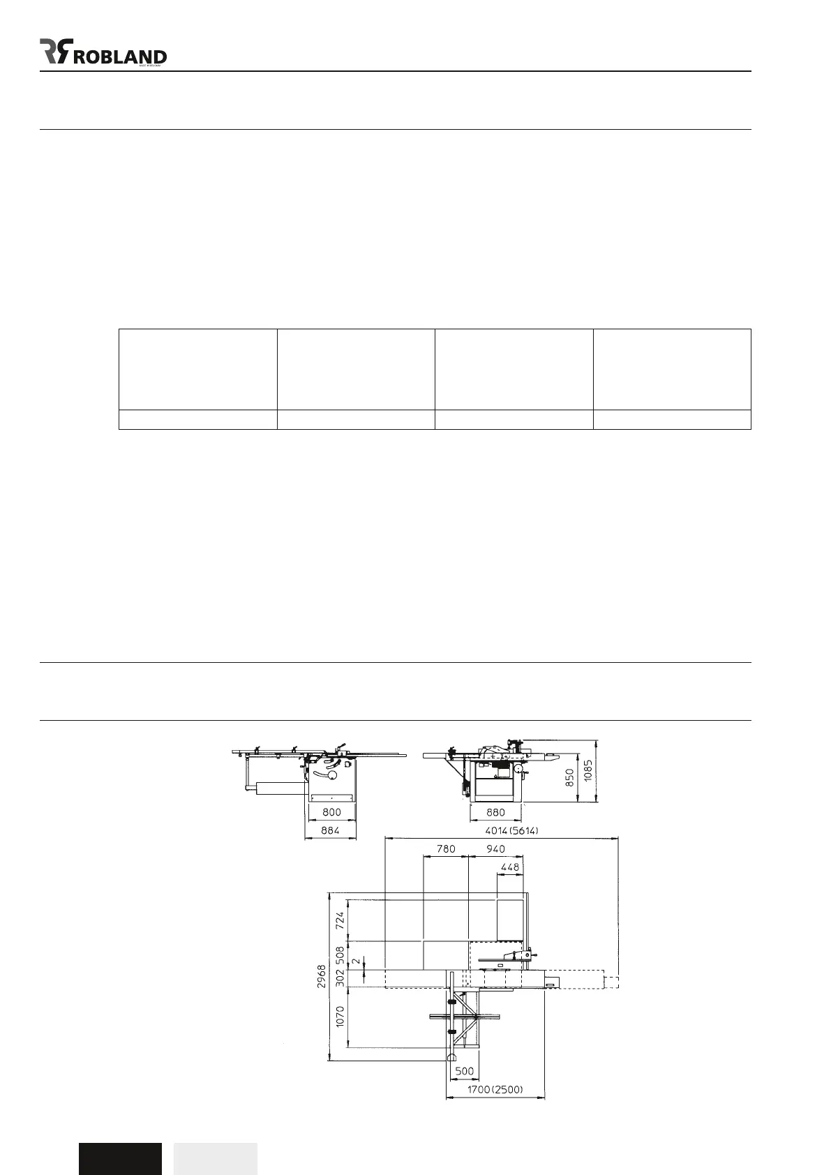
General dimensions E-300

Table of Contents

Related product manuals