EasyManua.ls Logo

SAMES KREMLIN Cyclomix Micro - 2 Description

Default Icon
103 pages
Print Icon
To Next Page IconTo Next Page
To Next Page IconTo Next Page
To Previous Page IconTo Previous Page
To Previous Page IconTo Previous Page
Loading...
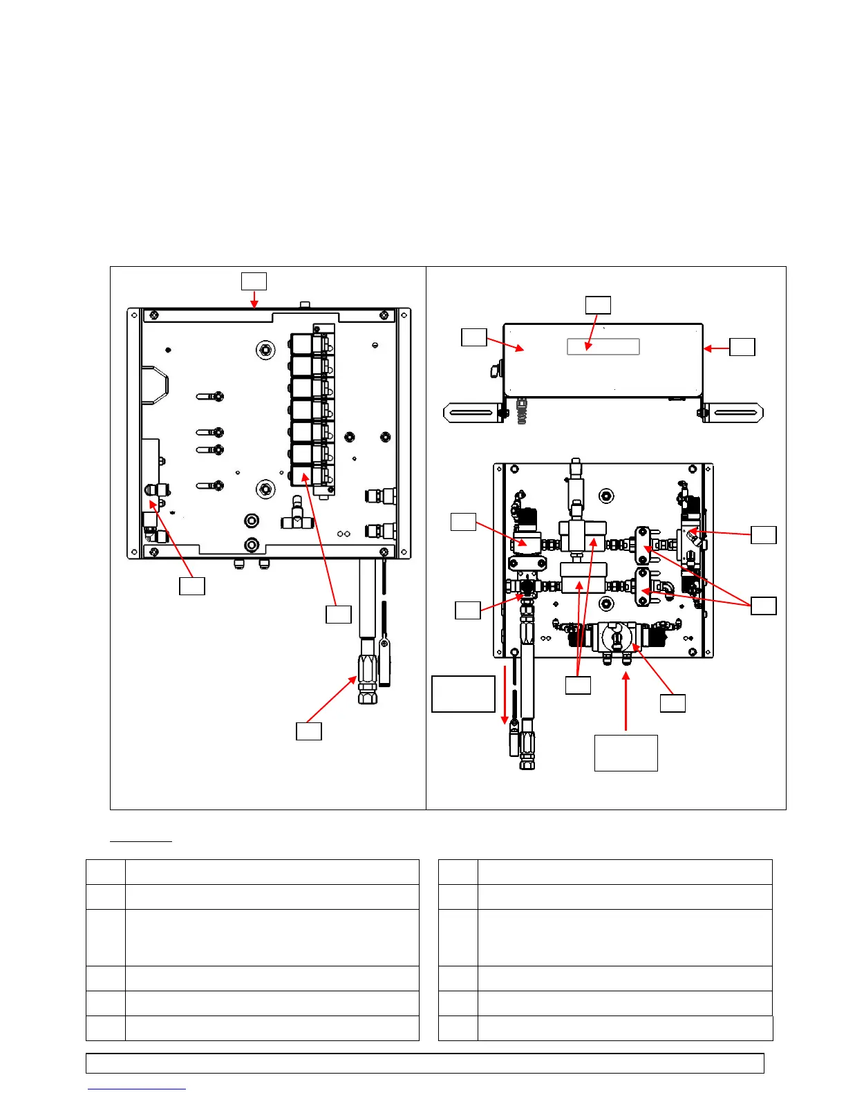
2. DESCRIPTION
The CYCLOMIX
TM
MICRO mixing system is designed for applying two-component paints and varnishes
(water-based or solvanted).
It is available for 2 technologies of application : pneumatic spraying, AIRMIX spraying
(maximum pressure : 172 bar / 2500 psi).
It comes in an independent form. It is only supplied with compressed air (maximum 6 bar / 87 psi) and a
mains supply (115V / 230V).
It consists of :
- a control unit (2) with automaton and electromagnetic control components,
- a fluid module (1) that receives the volumetric meters, the automatic valves for materials and solvents
and electropneumatic control components.
Captions :
1 Fluid module 7 Electrovalves
2 Control unit 8 Air flow switch
3 Display unit 9 Color changer
9a : base CTM
9b : cata CTM
4 Flowmeters 10 Protective housing
5 Automatic valve 11 Three-way valve
6 Mixer 12 Non-return valve
1
8
7
6
2
3
10
5
11
9b
12
9a
4
Material
outlet
Material
inlet
SAMES KREMLIN Page 5 Manual : 573.191.112