EasyManua.ls Logo

Samsung AM300MXVGNR4ET - Page 83

Samsung AM300MXVGNR4ET
124 pages
Print Icon
To Next Page IconTo Next Page
To Next Page IconTo Next Page
To Previous Page IconTo Previous Page
To Previous Page IconTo Previous Page
Loading...
83
ENGLISH
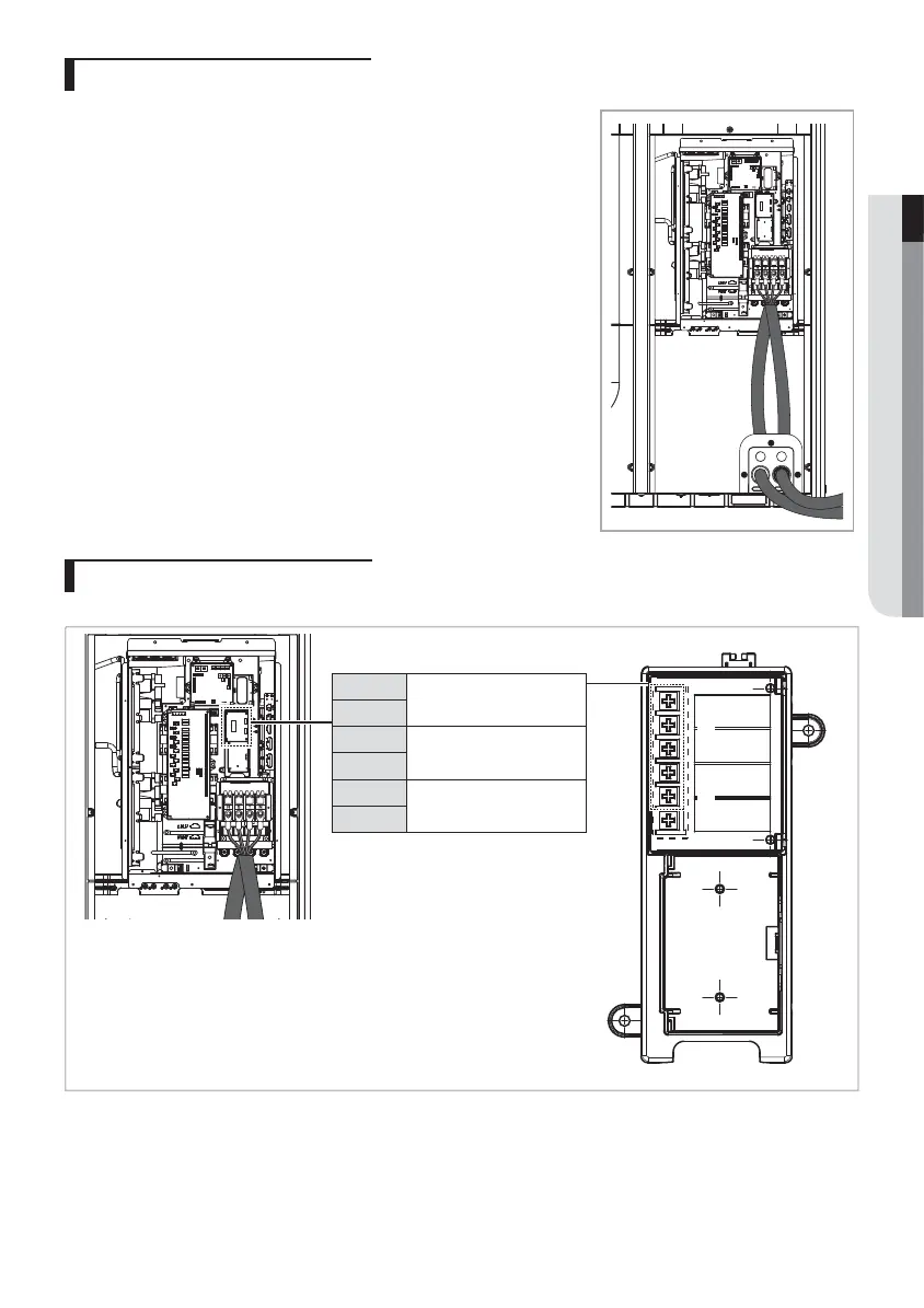
Withdrawing the power cable
Withdrawing from the front side
Connect the power cable protection tube into the power supply box
as shown picture.
Be sure that the power supply cable is not damaged by burr on the
knock-out hole.
Installing the Solution device
When the number of indoor units installed with the outdoor unit is 16 or less
F1
R2
OF2
OF1
F2
R1
F1
Terminal block with
indoor unit
F2
OF1
Terminal block with
outdoor unit sub module
OF2
R1
Terminal block with
solution device
R2

Related product manuals