EasyManua.ls Logo

Samsung RT44MB - Product Dimension; Extemal Size and Designations

Samsung RT44MB
47 pages
Print Icon
To Next Page IconTo Next Page
To Next Page IconTo Next Page
To Previous Page IconTo Previous Page
To Previous Page IconTo Previous Page
Loading...
9
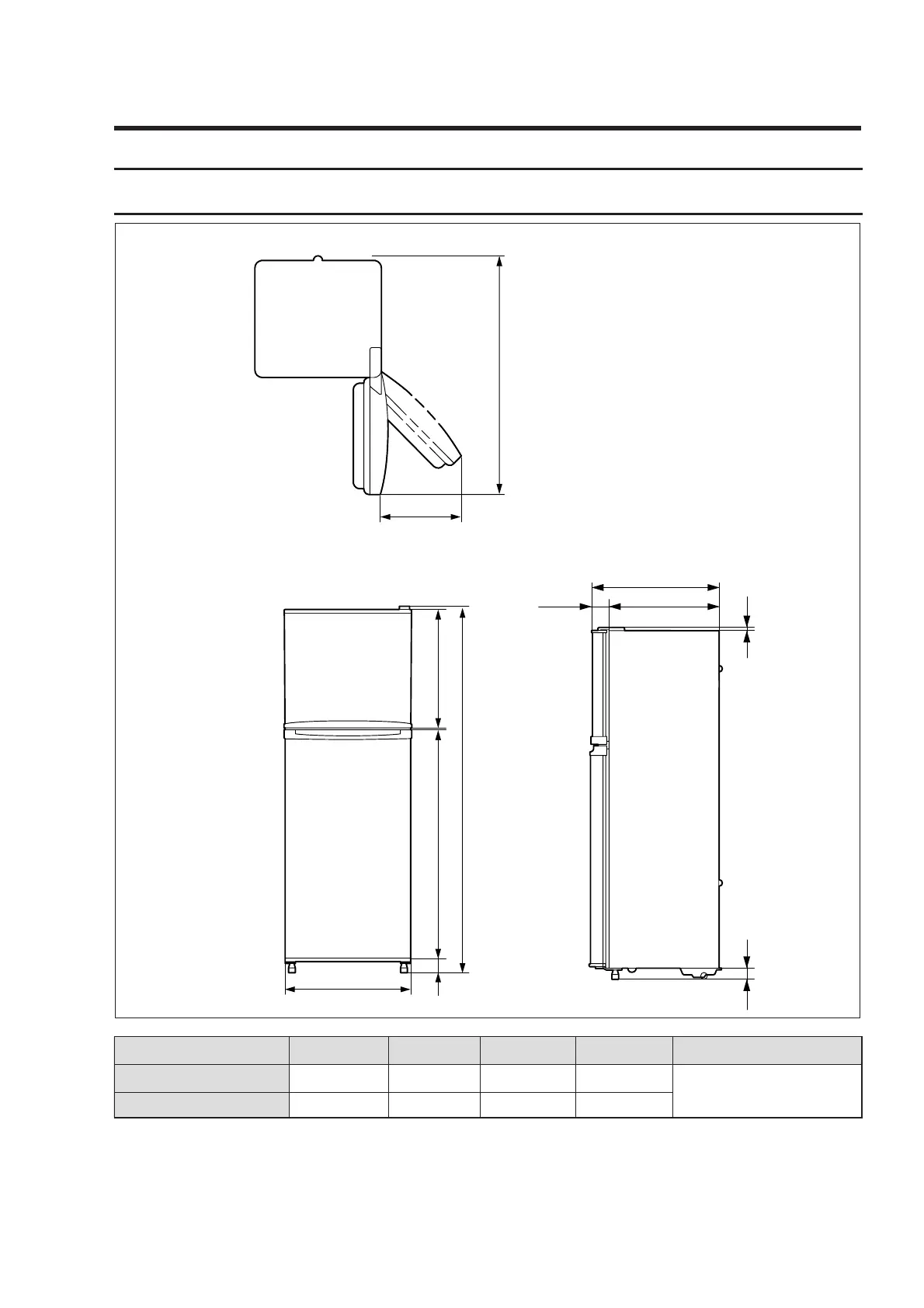
5-1) Product Dimension
670
60
9
B
A
548.5
50
15
C
D
80.5
1250.5
454.1
MODEL
RT40MA/MB
RT44MA/MB
A
1660
1730
B
1103.5
1173.5
C
549.5
549.5
D
640(670)
640(670)
Remark
( )BAR TYPE
5. Extemal size and Designations

Table of Contents

Related product manuals