EasyManua.ls Logo

Samsung RT44MB - Mechanical Type

Samsung RT44MB
47 pages
Print Icon
To Next Page IconTo Next Page
To Next Page IconTo Next Page
To Previous Page IconTo Previous Page
To Previous Page IconTo Previous Page
Loading...
8
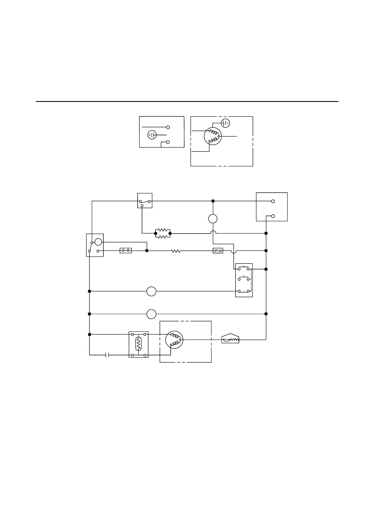
Mechanical Type
YEL
WHT
M
BRN
BIMETAL
DEFROST
TIMER
RUNNING
CAPACITOR
P.T.C RELAY
COMPRESSOR
COMPRESSOR
OVERLOAD
PROTECTOR
WHT
BRN R-THERMP
R-HEATER
R/LAMP
GRY
L
N
E
A
N
M
S
C
E
W/BLK RED
RED
RED
RED
PNK
S/BLU
S/BLU
S/BLU
PNK
2
3
5
M
S
C
RED
GRY- GRAY
RED- RED
BRN- BROWN
YEL- YELLOW
S/BLU- SKY BLUE
PNK- PINK
BLK- BLACK
WHT- WHITE
W/BLK- WHITE/BLACK
6
FAN MOTOR
COMP. COOLING MOTOR
DOOR-S/W
F.M
S/BLU
C.M
RED
“A-1"
“A-2"
“B-2"
“A-1" “B-1" : WITHOUT EARTH
“A-2" “B-2" : WITH EARTH
“B-1"
L
RED
LC
H
WHT PNK
THERMAL
FUSE
DEFROST
HEATER
1
3
4
2
[110~115V/ 60Hz, 127V/60Hz, 220V/50~60Hz]-RT40/44

Table of Contents

Related product manuals