EasyManua.ls Logo

sauter NRT405F901 - Page 6

sauter NRT405F901
50 pages
Print Icon
To Next Page IconTo Next Page
To Next Page IconTo Next Page
To Previous Page IconTo Previous Page
To Previous Page IconTo Previous Page
Loading...
NRT405F901 manual Chapter 2 Introduction to NRT405F901 6
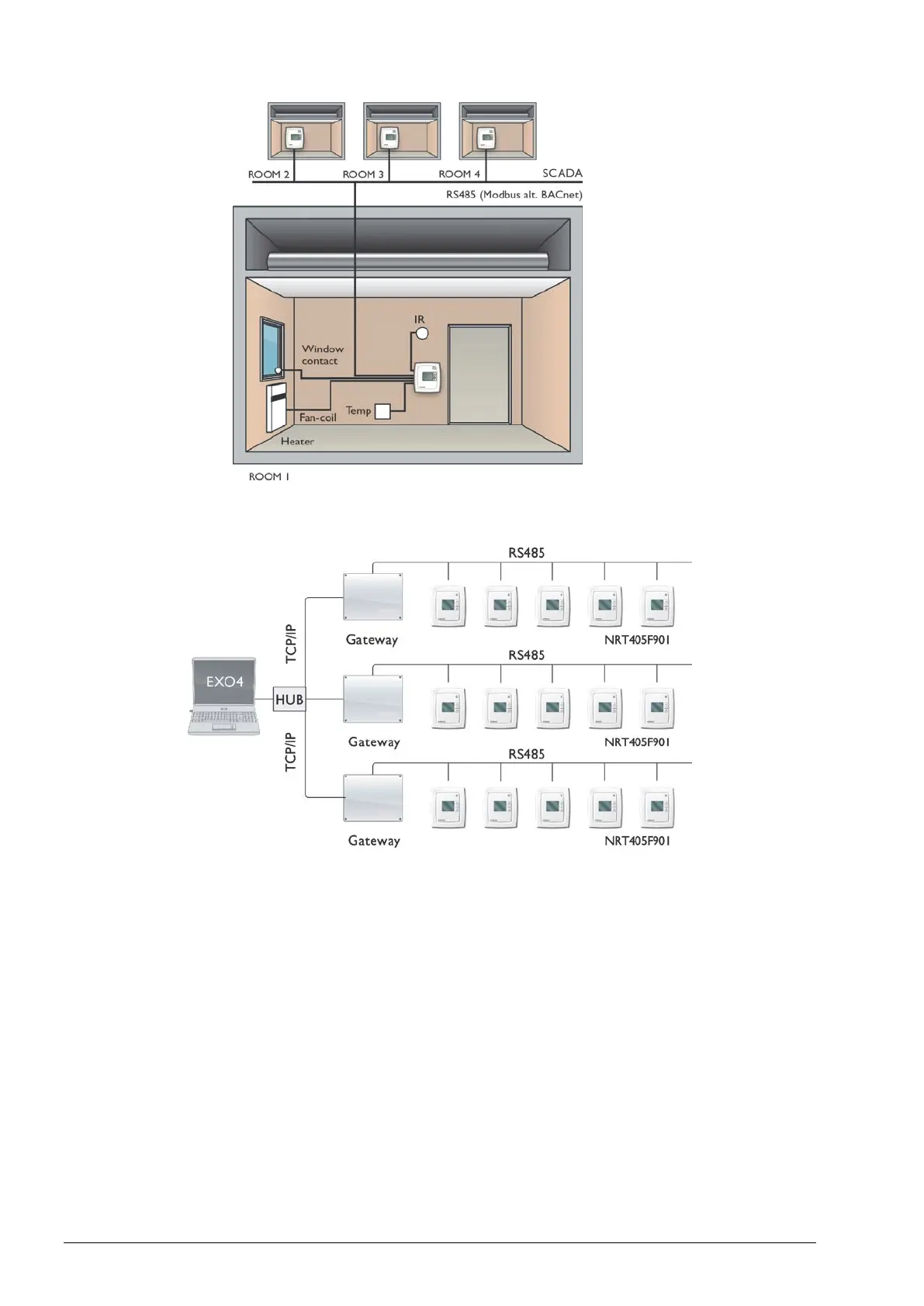
Application examples

Other manuals for sauter NRT405F901

Related product manuals