EasyManua.ls Logo

SawStop CB53230 - Cabinet Saw Dimensions

Default Icon
104 pages
Print Icon
To Next Page IconTo Next Page
To Next Page IconTo Next Page
To Previous Page IconTo Previous Page
To Previous Page IconTo Previous Page
Loading...
SawStop 10” Industrial Cabinet Saw 73
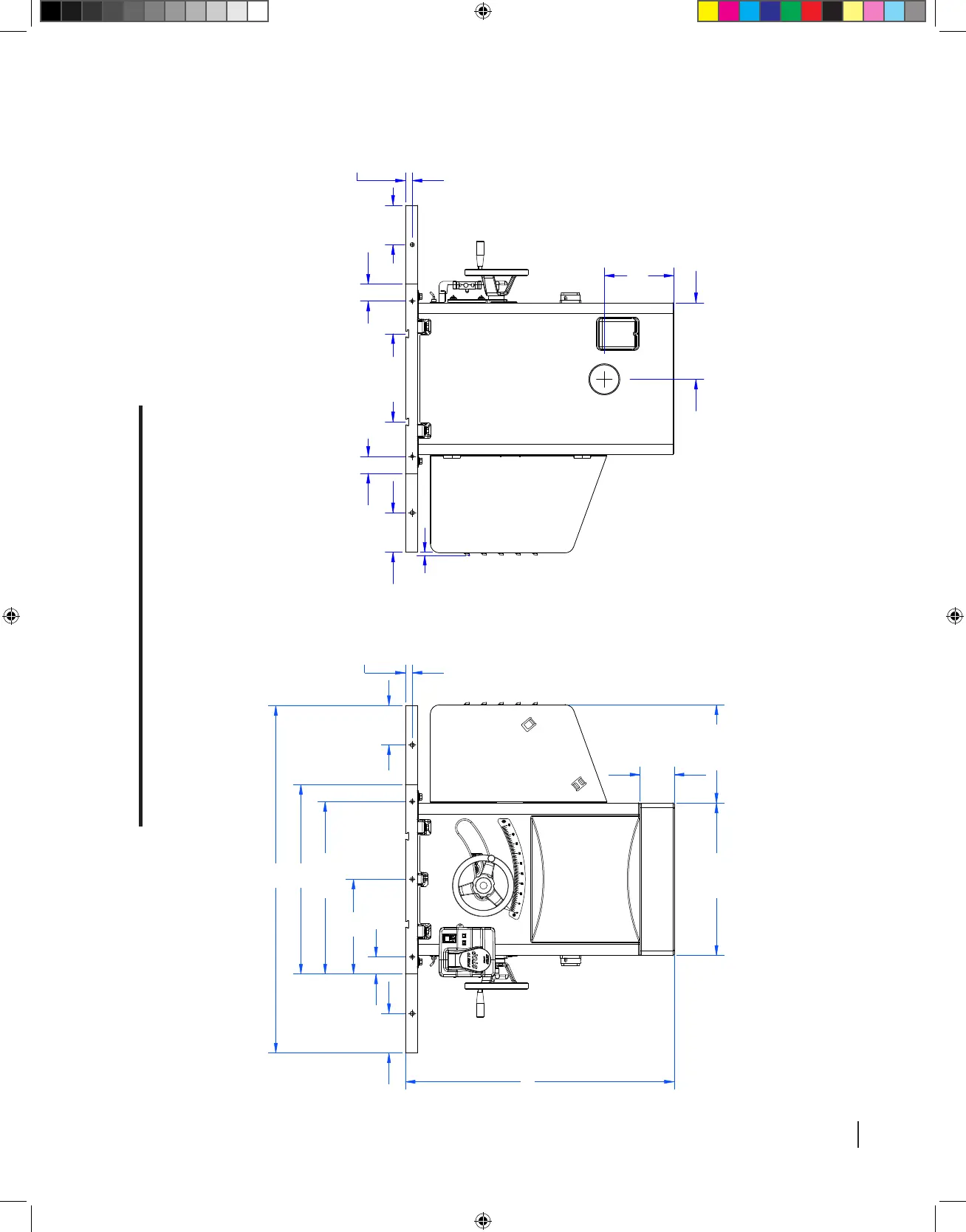
Cabinet Saw Dimensions
Front View Rear View
34"
19 1/4"
4 3/8"
44"
24"
5"
2 1/8"
12"
21 7/8"
5"
7/8"
12 1/2"
11 1/8"
8 7/8"
9 3/4"
5"
5"
2 1/8" 2 1/8"
3/8"
7/8"
Cabinet Saw Manual 1st Reprint.i73 73 3/9/2010 8:33:10 AM

Table of Contents

Related product manuals