EasyManua.ls Logo

SEM 1012/5 - Disintegrator Dimensional Information

SEM 1012/5
30 pages
Print Icon
To Next Page IconTo Next Page
To Next Page IconTo Next Page
To Previous Page IconTo Previous Page
To Previous Page IconTo Previous Page
Loading...
508.366.1488 | www.semshred.com
24
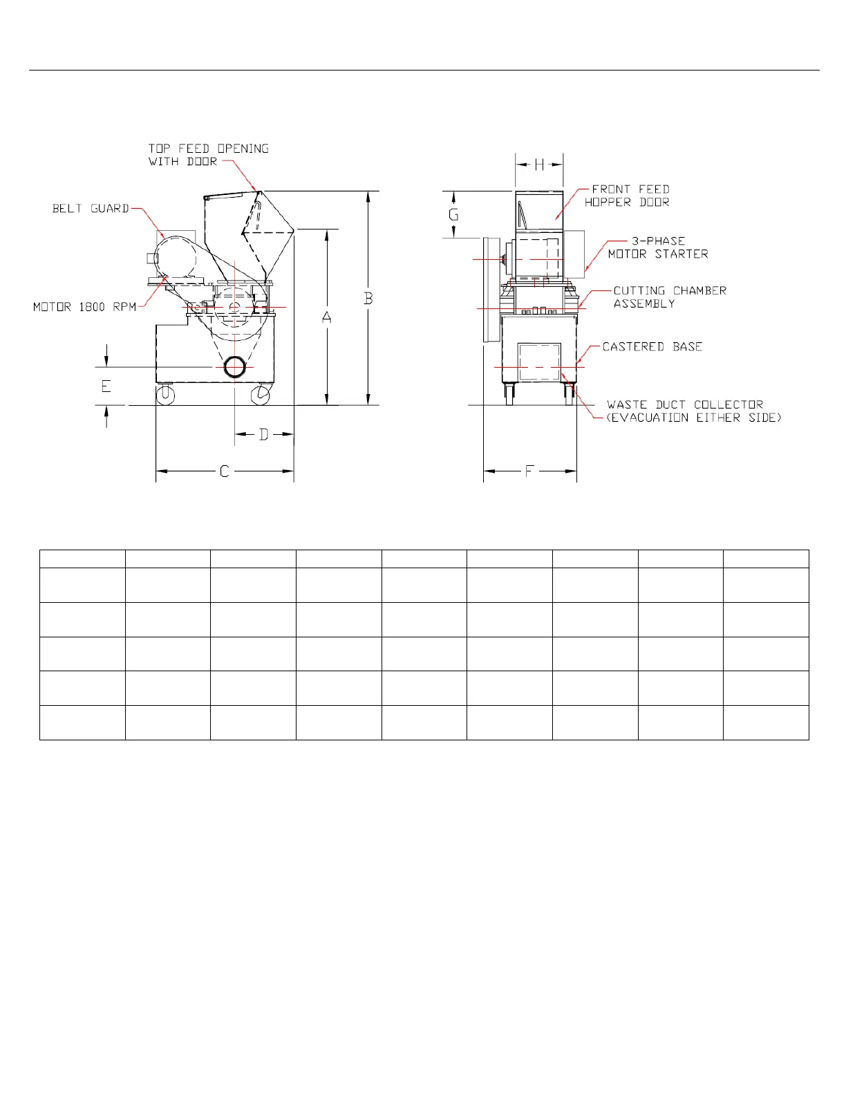
18. Disintegrator Dimensional Information
MODEL
A
B
C
D
E
F
G
H
3
50.50”
(1283mm)
62”
(1575mm)
42”
(1067mm)
16”
(406mm)
7.25”
(184mm)
28.50”
(724mm)
4.25”
(108mm)
12”
(305mm)
1012
50.50”
(1283mm)
62”
(1575mm)
42”
(1067mm)
16”
(406mm)
7.25”
(184mm)
28.50”
(724mm)
10”
(254mm)
12”
(305mm)
1012/5
55.50”
(1410mm)
62”
(1575mm)
48”
(1219mm)
18”
(457mm)
8”
(203mm)
34”
(864mm)
10”
(254mm)
16”
(406mm)
22
55.50”
(1410mm)
69”
(1753mm)
45”
(1143mm)
19.75”
(502mm)
12”
(305mm)
38”
(965mm)
12”
(305mm)
20”
(508mm)
23
55.50”
(1410mm)
69”
(1753mm)
48”
(1219mm)
19.75”
(502mm)
12”
(305mm)
42”
(1067mm)
12”
(305mm)
24”
(610mm)

Related product manuals