EasyManua.ls Logo

Sentex Infinity - Infinity DI Flush Mount System Dimensions

Default Icon
19 pages
Print Icon
To Next Page IconTo Next Page
To Next Page IconTo Next Page
To Previous Page IconTo Previous Page
To Previous Page IconTo Previous Page
Loading...
Rev B Doc 6001564 Page 13 of 19
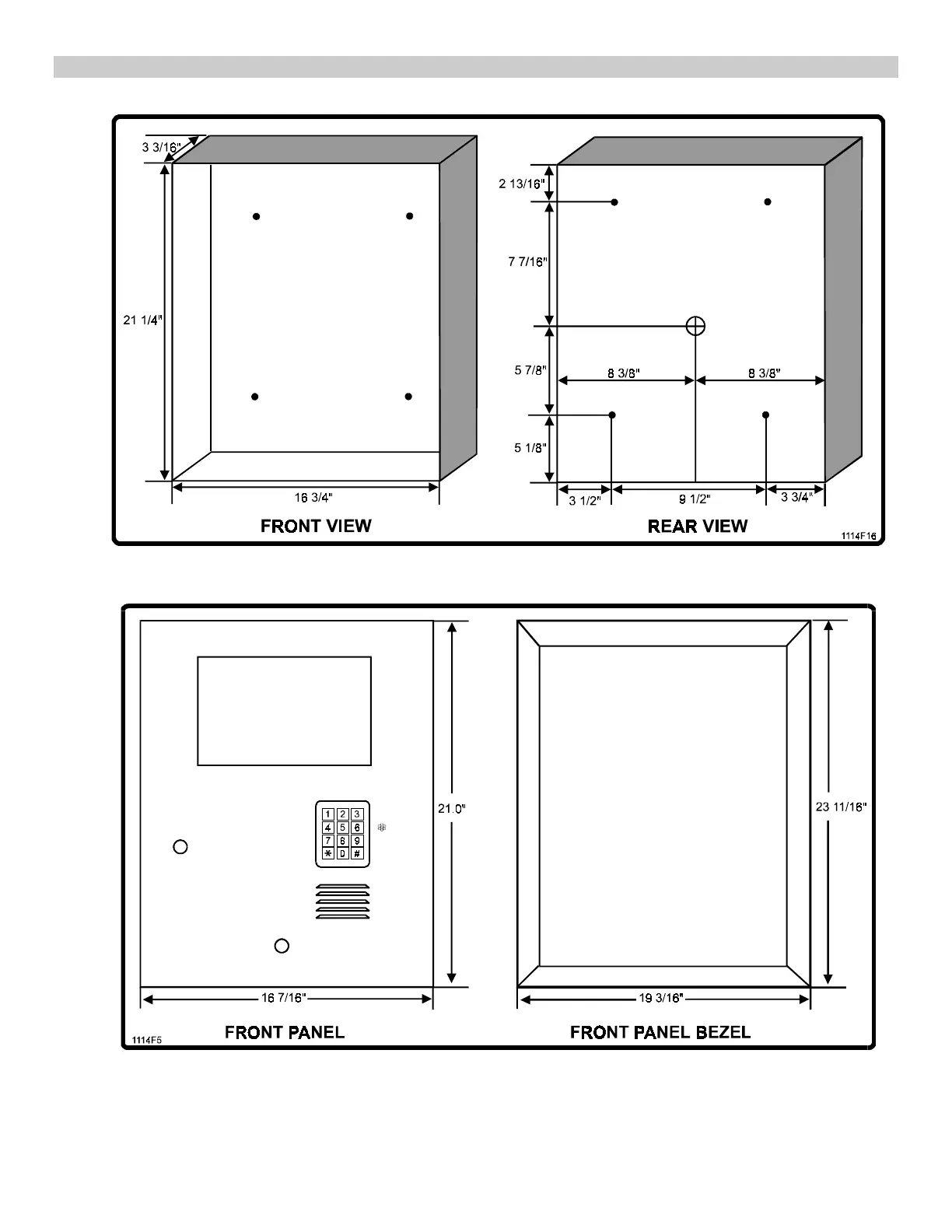
H. INFINITY “DI” FLUSH MOUNT SYSTEM
FLUSH MOUNT BOX
This line drawing is intended for dimensional reference purposes only and is not intended to be an actual
drawing of the Infinity “DI” Flush Mount system itself.