EasyManua.ls Logo

SharkRack 37U - Cabinet with Split Rear Door

SharkRack 37U
46 pages
Print Icon
To Next Page IconTo Next Page
To Next Page IconTo Next Page
To Previous Page IconTo Previous Page
To Previous Page IconTo Previous Page
Loading...
SharkRack Enclosure Installation Guide
ID-00210-000 REV D, ECO2773 Page 8 of 46
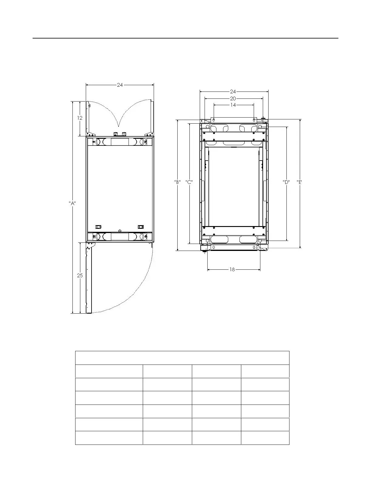
Rack Cabinet Footprint and Mounting Locations for:
Cabinet with Split Rear Door
Figure 4
42U X 37DP (TOP VIEW) and 42U X 42DP (BOTTOM VIEW) Shown
Table 2
Cabinet Dimensions
DIM 37” CABINET 42” CABINET 45” CABINET
A 74” 79” 82”
B 41” 46” 49”
C 37” 42” 45”
D
Leveling Feet
35” 40” 43”
E
Floor mounting brackets
38” or 40” 43” or 45” 46” or 48”
Rear Doors
Front Door