EasyManua.ls Logo

Sharp CD-DVD500 - Power Supply Schematics

Sharp CD-DVD500
100 pages
Print Icon
To Next Page IconTo Next Page
To Next Page IconTo Next Page
To Previous Page IconTo Previous Page
To Previous Page IconTo Previous Page
Loading...
CD-DVD500
– 34 –
A
B
C
D
E
F
G
H
1
23456
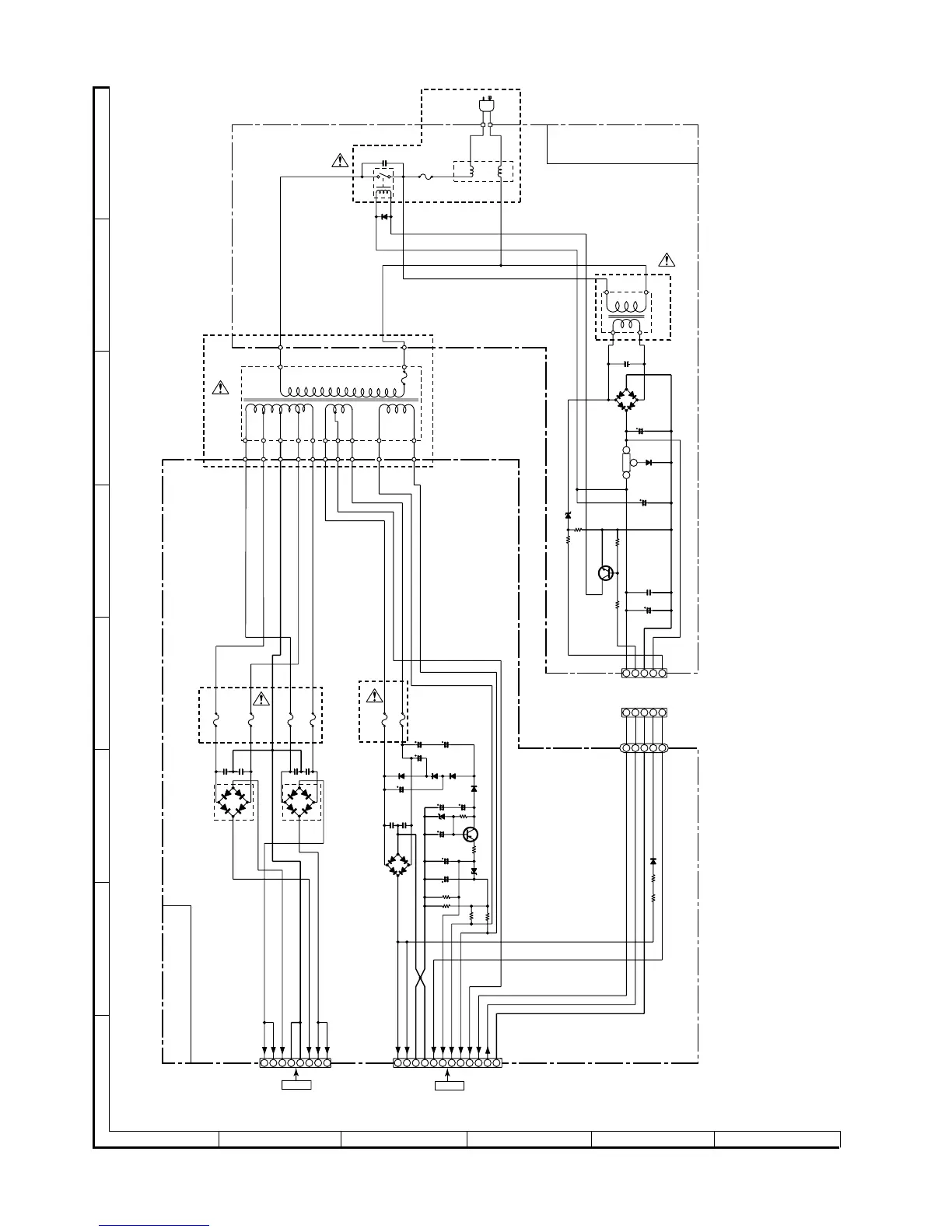
Figure 34 SCHEMATIC DIAGRAM (9/18)
• NOTES ON SCHEMATIC DIAGRAM can be found on page 56.
+B(18V)
5.7 V
0.6 V
11.5 V
0.5 V
0 V
0 V
-36.4 V
-36.9 V
-49 V
R821
56
(1/2W)
R822
56
(1/2W)
3
1
2
P_IN
–B2
GND
+B2
+18V
GND
ASSIST
P_IN
GND
–VF
VF2
VF1
+B(+9V)
D_GND
AT5V
AC_RLY
+B2
–B2
GND
–B1
+B1
P_IN
+18V
GND
–VF
VF2
VF1
+9V
AC_RLY
AT5V
D_GND
5
1
3
24
5
1
3
24
5
1
3
24
1
5
24
38
7
6
4
5
2
7
6
1
38
9
10
11
12
CNS901
FROM AMP. A PWB
P39 12-G
T.F.
TRANSFORMER
PWB-D3
POWER PWB-D1
CNS850
FROM MAIN PWB
P31 12-F
+B
+B
+B
+B
+B
+B
+B
+B
+B
+B
+B
+B
+B
+B
+B
-B
-B
-B
-B
-B
CONSTANT
VOLTAGE REGULATOR
CNP801
CNP807
D811
1N4004S
R816
47K
R817
12K
C814
100/35
DZ804
DZ6.2BSA
R815
10
C812
47/50
C813
47/50
DZ803
DZ360BSC
C811
100/50
C816
100/50
D810
1N4004S
D808
1N4004S
D809
1N4004S
C815
100/50
C808
100/50
D807
1N4004S
D803
D803~D806:
2A02M
D806
D804
D805
C805
0.047
(ML)
C806
0.047
(ML)
C810
100/63
D802
TS6B04GM
C804
0.047
(ML)
C803
0.047
(ML)
C802
0.047
(ML)
C801
0.047
(ML)
D801
TS6B04GM
T801
POWER
TRANSFORMER
C880
0.0047
D880
DS1SS133
AC POWER
SUPPLY CORD
AC 120 V, 60 Hz
LUG801
LUG802
L802
LINE
FILTER
F801
6.3A/125V
C881
0.047(ML)
D884
1N4004S
C882
470/35
D883
1N4004S
D882
1N4004S
D881
1N4004S
IC880
KIA7805AP
D885
DS1SS133
C883
1000/6.3
DZ802
DZ2.4BSB
R812
47K
R813
220K
Q880
KTC3199 GR
R882
47K
C884
0.047(ML)
C885
100/16
BI802
CNS802
CNP802
T802
SUB TANSFORMER
R883
100
Q806
2SB1565 F
R814
2.2K
C809
100/50
F805
6.3A/125V
F806
4A/125V
F807
4A/125V
F803
4A/125V
F804
6.3A/125V
F802
4A/125V
R819
47
R818
47
RY801

Related product manuals