EasyManua.ls Logo

Sharp SM-SX1 - Page 20

Sharp SM-SX1
56 pages
Print Icon
To Next Page IconTo Next Page
To Next Page IconTo Next Page
To Previous Page IconTo Previous Page
To Previous Page IconTo Previous Page
Loading...
SM-SX1/SX1W
– 20 –
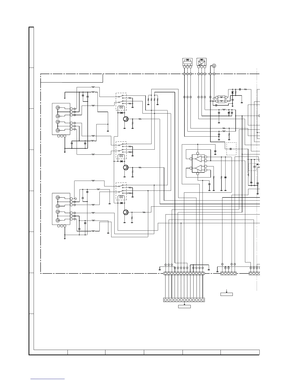
Figure 20 SCHEMATIC DIAGRAM (7/10)
A
B
C
D
E
F
G
H
1
23456
• NOTES ON SCHEMATIC DIAGRAM can be found on page 32.
98
7
6
5
4
3
2
1
NC
NC
NC
NC
NC
NC
chassis ground
chassis ground
R
L
LINE1
(IN)
SACD
(IN)
L
R
10
9
8
7
6
5
4
3
2
1
10
9
8
7
6
5
4
3
2
1
6
5
4
3
2
1
NC
L
R
R
L
LINEOUT
LINE2
(IN)
10
9
8
7
6
5
4
3
2
1
8
7
6
5
4
3
2
1
4
32
1
3
2
1
3
21
VCC
GND
Vin
Vout
GND
VCC
chassis ground
TX101
DIGITAL
OUT
-
-
+
+
NC
NC
NC
chassis ground
A_GND
64fs IN
DGND
SACD DINL
DGND
SACD DINR
+10V
-10V
A_L-CH
A_GND
A_R-CH
PROTECT MID +B
+12V(RLY)
+5VD
DGND
DD IN
PROTECT
+24V
DGND
SP RLY
PROTECT
PROTECT MID
98
7
INPUT SOURCE PWB-A4
13
13
12
12
11
11
10
10
9
9
8
8
7
7
6
6
5
5
4
4
3
3
2
2
1
1
5
4
3
2
1
765
4
CNP800
CNS102
TO DIGITAL PWB
P17 12-G
TO DIGITAL PWB
P17 12-D
L124
C129
0.68
C128
0.0015
C131
0.0015
L123
100µH
TP58
TP59
TP51
TP50
TP49
TP48
TP47
TP46
TP45
TP44
BI102
TO
DIGITAL PWB
TP52
TP53
TP54
TP55
TP56
TP57
TP60
TP61
TP62
TP63
TP20
TP19
TP18
TP17
TP16
TP15
TP14
TP13
TP12
TP11
TP10
TP7
TP9
TP8
TP6
TP5
TP4
TP3
TP2
TP1
C103
0.001
C126
0.0015
C101
0.001
C124
0.0015
L110
L113
L127
J102
J102
LINE OUT/
LINE1
J101
LINE2/
SACD
L109
L126
D103
DAN202K
R111
4.7K
R110
4.7K
R106
4.7K
R105
4.7K
R104
4.7K
R103
4.7K
R102
4.7K
R101
4.7K
L118
10µH
C113
0.1
C132
0.0015
C116
0.1
L119
10µH
CNP102
R109
100K
L
D101
DAN202K
R107
100K
C115
0.1
R127
22
IC101
NJM4558M
MOTOR DRIVER
Q101
2SC2412KR
Q103
2SC2412KR
L117
R112
4.7K
L101
RLY103
C119
47/35
C118
0.01
R125
10K
R119
47K
R116
560K
R113
560K
R114
3.3K
RX101
DIGITAL2
IN
C112
0.01
R117
75
D102
DAN202K
L106
L105
L125
R118
3.3K
SM-SX1
ONLY
R115
3.3K
L102
L114
R108
100K
Q102
2SC2412KR
RLY102
C117
0.01
C130
0.0015
R126
330
C104
0.001
C127
0.0015
C122
0.022
C114
1/50
ZD101
MTZJ5.1B
C102
0.001
C125
0.0015
RLY101
J103
DIGITAL1
IN
CNS800

Related product manuals