EasyManua.ls Logo

Sharp SM-SX1 - Page 21

Sharp SM-SX1
56 pages
Print Icon
To Next Page IconTo Next Page
To Next Page IconTo Next Page
To Previous Page IconTo Previous Page
To Previous Page IconTo Previous Page
Loading...
SM-SX1/SX1W
– 21 –
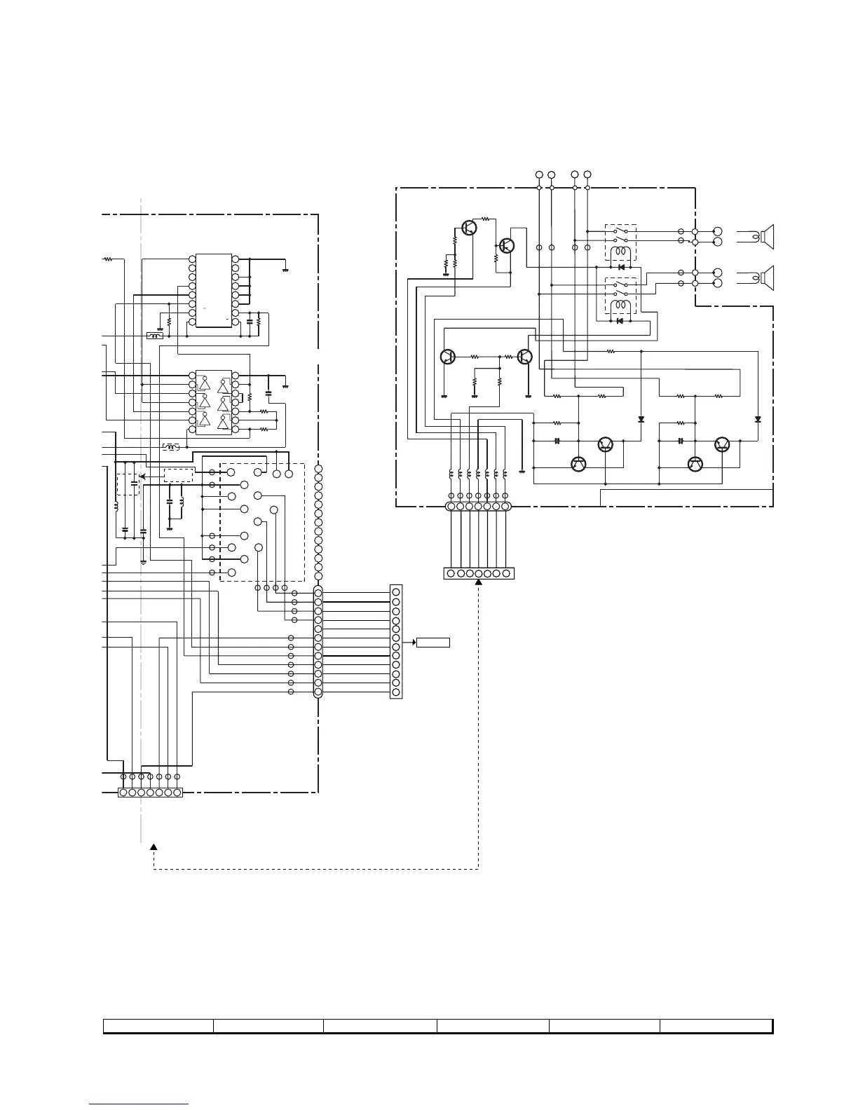
Figure 21 SCHEMATIC DIAGRAM (8/10)
7
8 9 10 11 12
9
10
11
12
13
14
15
16
8
7
6
5
4
3
2
1
10
11
12
13
14
9
87
6
5
4
3
2
1
R120
22K
12
4
8
3
11
7
13
14 15
10
9
6
2
10
11
12
13
9
8
7
6
5
4
3
2
1
5V(µ-COM)
B
A
µ-COM GND
µ-COM STB
µ-COM CLK
µ-COM DATA_OUT
µ-COM DATA_IN
µ-COM DATA_IN
µ-COM GND
µ-COM STB
µ-COM DATA_OUT
µ-COM CLK
GND(for 64fs)
GND(for DINL)
GND(for DINR)
64fs IN
GND
GND
SACD DINL
SACD DINR
NC
NC
NC
1G
B
1C3
1C2
1C1
1CO
1Y
GND
VDD
2G
A
2C3
2C2
2C1
2CO
2Y
10
10
11
11
12
12
9
9
8
8
77
6
6
5
5
NC
AUX RLY1(SACD)
AUX RLY3(LINE2)
AUX RLY2(LINE1)
5
SP RLY
4
4
3
3
2
2
1
1
+5V(µ-COM)
+24V
+12V(RLY)
DGND
SP RLY
PROTECT
PROTECT MID
NC
NC
NC
NC
FROM
1BIT AMP. PWB
P19 12-F
SP OUT R-CH
SP OUT L-CH
L+
L-
R+
R+
R-
L+
L-
R-
5
4
3
2
1
5
4
3
2
PROTECT MID
PROTECT
SP RLY
DGND
+5V(u-COM)
+12V(RLY)
+24V
7
65
4321
76543
21
76543
2
1
CNP904
TO
MICROCOMPUTER
PWB
P22 5-E
A
B
C
D
6
1
6
SPEAKER RELAY PWB-A3
L201
L202
L203
L204
L205
L206
L207
BI201
TO
INPUT SOURCE PWB
TP82
TP81
TP80
TP79
TP78
TP77
TP76
C122
0.022
C129
0.68
C128
0.0015
C131
0.0015
L123
100µH
L122
100µH
TP72
TP73
TP74
TP75
TP71
TP70
TP69
TP68
SPEAKER
TERMINAL
TP61
TP62
TP63
TP64
TP65
TP66
TP67
TP43
TP42
TP41
TP40
TP39
TP38
TP37
TP35
TP34
TP33
TP32
TP30
TP29
TP28
TP27
TP26
TP25
TP24
TP23
TP22
TP21
IC102
74HC153AF
INVERTER
BI101
SOC101
CNP103
L120
R124
220K
C121
0.1
R123
2.7K
R121
22K
C120
0.1
L121
SM-SX1
ONLY
R122
56K
R
126
330
R208
1K
Q203
2SC2412KR
Q204
2SC2412KR
R209
2.7K
R202
10K
R216
10K
C203
33/35
Q206
2SC2412KR
R212
15K
R214
15K
R211
10K
Q205
2SC2412KR
C202
33/35
R210
15K
D201
DAN202K
RLY202
D204
DAN202K
RLY201
D203
DN202K
Q201
2SC2412KR
R204
2.2K
R203
10K
R205
100K
Q202
2SA1037KR
R215
15K
Q207
2SC2412KR
Q208
2SC2412KR
R213
4.7K
R201
4.7K
D202
DAN202K
R206
1K
R207
100K
1
IC103
TC74HCU04F
AMP.
CNS704
CNS103
+B
+B
+B
+B
+B
+B
SOC101
1BIT TERMINAL

Related product manuals