EasyManua.ls Logo

SICK CLV615 - Page 82

SICK CLV615
114 pages
Print Icon
To Next Page IconTo Next Page
To Next Page IconTo Next Page
To Previous Page IconTo Previous Page
To Previous Page IconTo Previous Page
Loading...
CDB620-001
PNP sensor 3
V
S
GND
12 SGND
6 Shield
11
U
IN
*
A
Out
U
IN
*
GND
S3
Trigger sensor 1
ON
OFF
S3 : SGND-GND
V
S ext
Shield
U
IN
*
CDB620-001
12 SGND
6 Shield
11
U
IN
*
A
GND
S3
ON
OFF
S3 : SGND-GND
Shield
1
V
S ext
GND
A
12
2
Sens B
Sens B
2
2
4
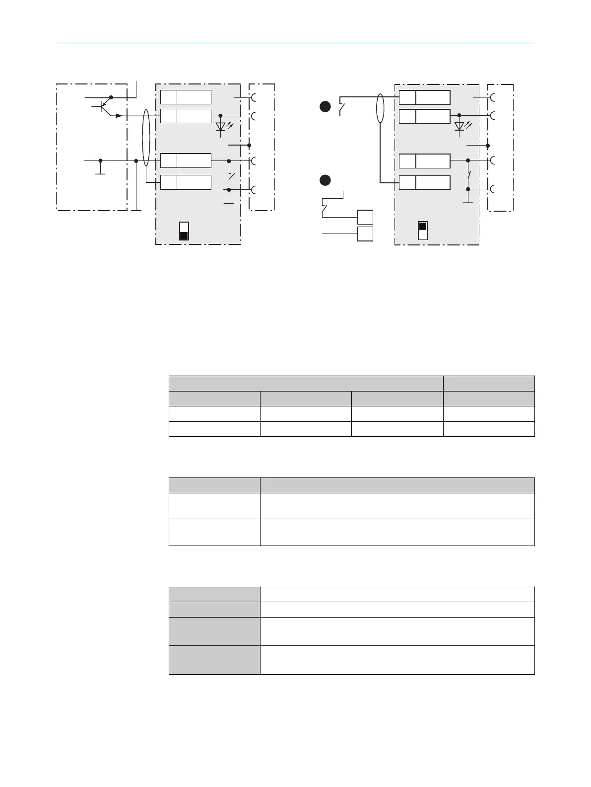
Figure 46: Left: Trigger sensor connected potential-free and supplied with power externally. Right: alternative switch,
!
supplied with power by connection module CDB620-001 or
"
connected volt-free and supplied with power externally. Now
select switch setting S3 as shown in the left figure.
1
Trigger sensor, e.g. for read cycle generation
2
External supply voltage V
S ext
3
PNP sensor
4
Supply voltage V
S
Table 24: Assignment of placeholders to the digital inputs
CDB620-001 Device
Terminal A Signal B Pin C Sensor D
10 Sens 1 14 1
13 Sens 2 4 2
Function of switch S3
Table 25: Switch S3: SGND - GND
Switch setting Function
ON GND of the trigger sensor is connected with GND of CDB620-001 and
GND of the device
OFF Trigger sensor is connected volt-free at CDB620-001 and the device.
Common, isolated reference potential of all digital inputs is SGND.
Characteristic data of the digital inputs
Table 26: Characteristic data of the digital inputs “Sensor 1” and “Sensor 2”
Type Switching
Switching behavior Power to the input starts the assigned function, e.g. start read cycle.
Properties
Opto-decoupled, reverse polarity protected
Can be wired with PNP output of a trigger sensor
Electrical values Low: V
in
1)
≤ 2 V; I
in
2)
≤ 0.3 mA
High: 6 V ≤ V
in
≤ 30 V; 0.7 mA ≤ I
in
≤ 5 mA
1)
Input Voltage
2)
Input current
14 ANNEX
82
O P E R A T I N G I N S T R U C T I O N S | CLV61x 8017840/19OF/2021-10-28 | SICK
Subject to change without notice

Table of Contents

Related product manuals