EasyManua.ls Logo

SICK S3000 Expert - Dimensional Drawing

SICK S3000 Expert
12 pages
Print Icon
To Next Page IconTo Next Page
To Next Page IconTo Next Page
To Previous Page IconTo Previous Page
To Previous Page IconTo Previous Page
Loading...
A
B
C
D
E
F
H
I
J
K
L
M
N
O
P
Q
R
S
T

Subject to change without notice
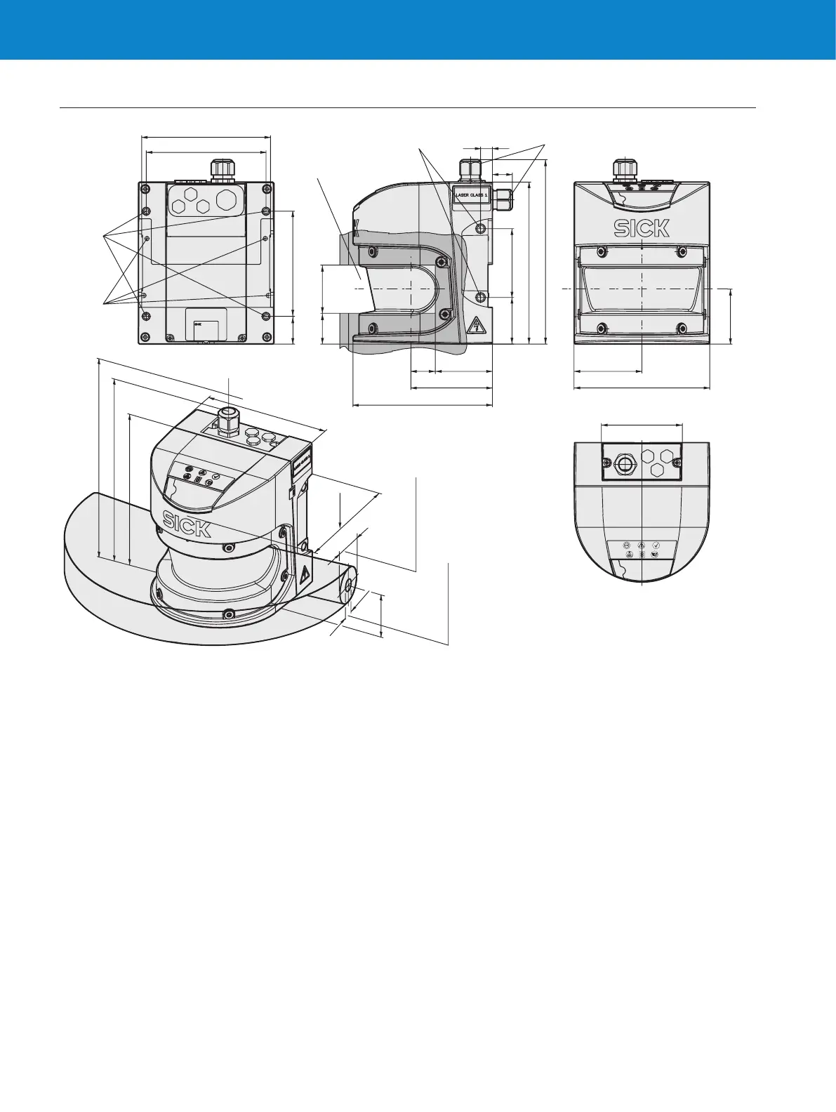
Safety laser scanners


147
M8x9
Area to be kept
clear during
installation of
the scanner
M13.5
23
77.5
92.5
155
65.227.8
93
160
Axis of rotation of motor
136.8
55
211
185
78.553.2
63
120
M6x8
Connector range
approx. 270
211
185
155
Reference
points for
mounting
31.7
63
Beam diameter
Sender = 15
Beam diameter
Receiver = 44
35
31.7
All dimensions in mm

Related product manuals