EasyManua.ls Logo

Siemens LMV52.200A2 - Connection Terminals of the Lmv51.200 X1

Siemens LMV52.200A2
299 pages
To Next Page IconTo Next Page
To Next Page IconTo Next Page
To Previous Page IconTo Previous Page
To Previous Page IconTo Previous Page
Loading...
174/301
Siemens Building Technologies Basic Documentation LMV5... CC1P7550en
HVAC Products 9 Connection terminals / coding of connectors 13.08.2004
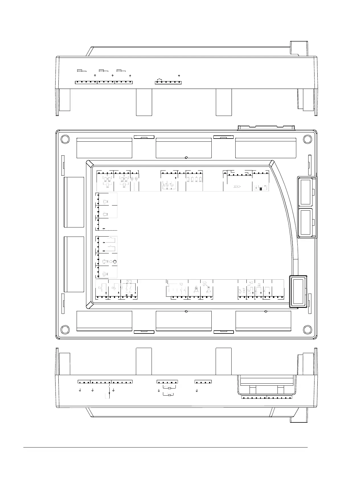
9.5 Connection terminals of the LMV51.200x1
LOAD
OUTPUT
FE
0
4...20 mA
0...10V
Power Supply
Sensor
FE
0
4...20 mA
FE
0
4...20 mA
0...10V
X63
1
X62
X61
11
X60
1
Pt100
Pt / Ni 1000
FE
X52
1
FE
12VAC2
M
12VAC1
BUS
GND
CANL
CANH
12VAC2
12VAC1
Shield
BUS
GND
CANL
CANH
Shield
12VAC2
12VAC1
X51
1
X50
1
SET POINT
INPUT
TEMP./PRES.
INPUT
TEMP. TRAFO
MOTOR SPEED INPUT
FE
OIL
GAS
Usensor
1
X70
Pulse-I N
Reserve
Usensor
1
X71
Pulse-IN
FE
Usensor
Pulse-IN
FE
FUE L METER INPUT
1
X72
2 wire
3 wire - PNP
0
0
0
2 wire
3 wire - PNP
2 wire
3 wire - PNP
X73
1
Start OUT
DC 12-24 V alarm IN
0/4-20 mA setpoint OUT
FE
VARIABLE SPEED DRIVE
0
X8-03
PE
N
L
V1
OIL
111
OIL
GAS
PE
N
L
L
L
V1
X8-02 X8-01
GAS
X9-03
X9-02
X9-01
1
min.
max.
LT
(CPI)
P
L
11
L
L
L
L
N
PE
V1
V2
PV
SV
X10-03
GAS + OIL
1
ION
FSV / QRI
PE
N
X10-02.1
L
POWER QRI
QRB
FLAME
N
L
X10-01
G0
G
LINE
12 VAC
1
GMD-4A
GMD- 4A
T6,3
IEC 60127-2/ V
X7-01
L
N
PE
V2
OIL
X7-02
1
V3
X7-03
11
PE
N
L
PE
X6-01
1
Start
L
HO-Start
L
X6-02
PE
N
M
X6-03
SV
OIL
11
N
L
PE
L
OIL
L
L
P
P
PE
min.
X5-01
111
PE
L
max.
ON/OFF
3
2
X5-02
X5-03
GAS + OIL
L
INT
GAS
OIL
RESET
X4-01 X4-02 X4-03
L
L
PE
PE
N
N
IGNITION
(START)
1
1
1
MO T OR
ALARM
L
1
X3-01
L
111
L
L
L
L
P
X3-02 X3-03 X3-04
PE
N
FLANGE
SAFETY
LOOP
LINE
VOLTAGE
7550z16/0404
P
1
PP
L
X10-02.2

Table of Contents

Related product manuals