EasyManua.ls Logo

Siemens Scalance X204-2LD Single Mode - Connecting to VNT-FCC (Fire Command Center)

Siemens Scalance X204-2LD Single Mode
32 pages
To Next Page IconTo Next Page
To Next Page IconTo Next Page
To Previous Page IconTo Previous Page
To Previous Page IconTo Previous Page
Loading...
Siemens Industry, Inc.
Building Technologies Division
P/N 315-050537-34
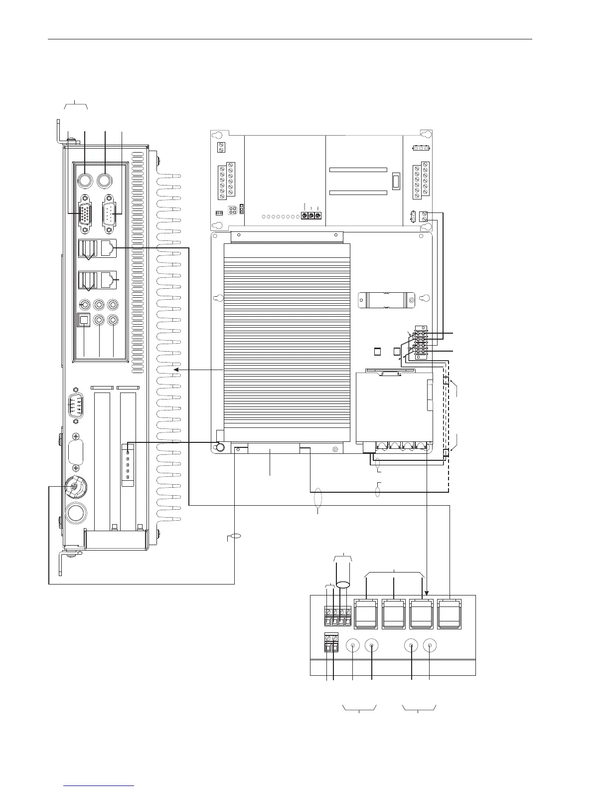
Figure 7
Fiber Switch Connection Diagram for VNT-FCC (Fire Command Center)
P1
P2
P3
P4
P5
P6
IN
OUT
IN
OUT
FAULT
F1
F2
L1+
M1
L2+
M2
GND FAULT
24V 12A FAIL
24V 4A FAIL
MODULE FAIL
HNET FAIL
CAN FAIL
RESET
POWER
PSC-12
P5
1
1
19
1
1
+
+
+
_
_
_
2
2
H
N
GND
6
24
12
18
7
13
12
34
TB1
TB2
BATTERY
P9
P12
TB3
TB4
P4
OFF
O
ON
P10
HNET/CAN
NEXT
SWITCH
NEXT
SWITCH
TO P5 IN
TO P5 IN
TO P5 OUT
TO P5 OUT
FIBER
FIBER
FROM P6 IN
FROM P6 IN
FROM P6 OUT
FROM P6 OUT
FIBER
OPTIONAL CONNECTIONS
TO ONE OR MORE:
1. ADDITIONAL VNT
2. NCC
3. SMOKE CONTROL
CATEGORY 5 RJ45 CABLE
LESS THAN 20 FT. IN CONDUIT
OPTIONAL CONNECTIONS
TO
ONE OR MORE:
1. ADDITIONAL VNT
2.
NCC
3.
SMOKE CONTROL
CATEGORY 5
RJ45 CABLE
LESS THAN
20 FT. IN CONDUIT
PREVIOUS
SWITCH
PREVIOUS
SWITCH
RJ45
VIDEO
DO NOT USE
DO NOT USE
DIAGNOSTIC
ONLY
DIAGNOSTIC
ONLY
DO NOT USE
DO NOT USE
DO NOT USE
DO NOT USE
DO NOT USE
DO NOT USE
DO NOT USE
DO NOT USE
DO NOT USE
DO NOT USE
KEYBOARD
KEYBOARD
DO
NOT
USE
DO
NOT
USE
SUPERVISED,
NON-POWER
LIMITED
SUPERVISED,
NON-POWER
LIMITED
+
_
L1+
M1
BLK
RED
BLK
RED
1
2
3
4
5
NCC-2F
(HNET)
CATEGORY 5 RJ45 CABLE
LESS THAN 20 FT. IN CONDUIT
CATEGORY 5 RJ45 CABLE
LESS THAN
20 FT. IN CONDUIT
SIEMENS
BLK
RED
DO NOT USE
DO NOT USE
EARTH GROUND
NON-POWER
LIMITED
NON-POWER
LIMITED
VNT-PS
VNT
DO
NOT
USE
DO
NOT
USE
DO NOT USE
DO NOT USE
+
_
ADDITIONAL 24V
NON-POWER LIMITED
ADDITIONAL 24V
NON-POWER
LIMITED
BACK OF VNT
BACK OF VNT
DO NOT USE
DO NOT USE
DO NOT USE
DO NOT USE
DO NOT USE
DO NOT USE
*WIRING SHOWN IS
STYLE 7 (CLASS A).
CAN ALSO BE WIRED
STYLE 4 (CLASS B).
*WIRING SHOWN IS
STYLE
7 (CLASS A).
CAN ALSO
BE WIRED
STYLE
4 (CLASS B).
SECURE WITH TIE WRAP
TO LANCES INSIDE
THE ENCLOSURE
SECURE WITH TIE WRAP
TO
LANCES INSIDE
THE
ENCLOSURE
SUPERVISED,
NON-POWER LIMITED
SUPERVISED,
NON-POWER
LIMITED
NOTE:
POWER LIMITED
AND NON-POWER
LIMITED WIRING
MUST BE
SEPARATED
BY A MINIMUM
OF 1/4” SPACING.
NOTE:
POWER
LIMITED
AND
NON-POWER
LIMITED
WIRING
MUST BE
SEPARATED
BY A MINIMUM
OF
1/4” SPACING.
CONNECTING TO VNT-FCC (FIRE COMMAND CENTER)

Related product manuals