EasyManua.ls Logo

Siemens Simatic series - Dimensional Drawing for the Use of Telescopic Rails

Siemens Simatic series
46 pages
To Next Page IconTo Next Page
To Next Page IconTo Next Page
To Previous Page IconTo Previous Page
To Previous Page IconTo Previous Page
Loading...
Dimension drawings
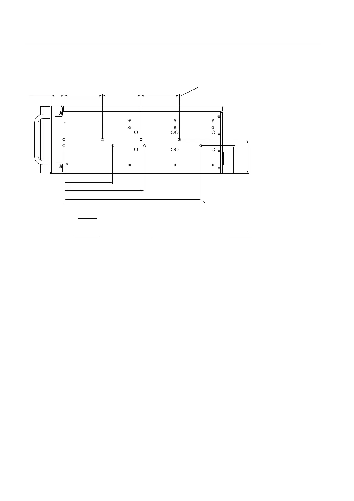
8.2 Dimensional drawing for the use of telescopic rails
SIMATIC IPC847C
40 Getting Started, 12/2010, A5E02669190-02
8.2 Dimensional drawing for the use of telescopic rails
8QLWVRIPHDVXUHPHQW
PP
LQFKHV
7 WROHUDQFHRIs
PP
LQFKHV
7 WROHUDQFHRIs
PP
LQFKHV
7 WROHUDQFHRIs
PP
LQFKHV
'LPHQVLRQVIRUWKH5LWWDOWHOHVFRSLFUDLOV
7\SH53IRUPPFDELQHW
7\SH53IRUPPFDELQHW
'LPHQVLRQVIRU6FKURII
WHOHVFRSLFUDLOW\SH
s7
s7
s7
s7
s7
s7
s7
s7
s7
s7
s7
s7
s7
s7
s7
s7
s7
s7
Figure 8-2 Dimensional drawing for the use of telescopic rails

Other manuals for Siemens Simatic series

Related product manuals