EasyManua.ls Logo

Sinoboom AB520EJ - Gtzz14 Ej; Decals;Nameplates (CSA)

Default Icon
118 pages
Print Icon
To Next Page IconTo Next Page
To Next Page IconTo Next Page
To Previous Page IconTo Previous Page
To Previous Page IconTo Previous Page
Loading...
© Dec 2021 10-20 GTZZ14EJ&16EJ Operation Manual
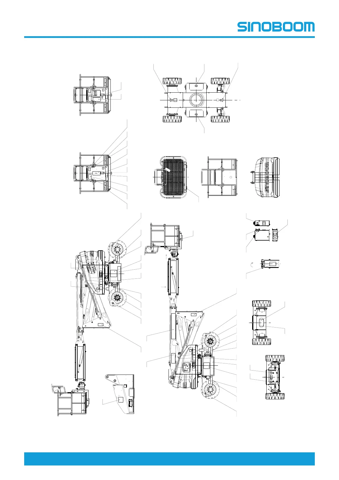
DECALS/NAMEPLATES INSPECTION
DECALS/NAMEPLATES (CSA)-GTZZ14EJ
K
B
Q
K
Q
(14)
(6)(7) (9)(6) (7)
(34)
(6)(7) (4)
2 6 7 9
24
13 14 2015 16 17 19 21
8
(2)
302927
38
3736
34
(4) (4)
4
(11)
28
1110
26
23
17
25
5
39
35
22
31
32
1 3
33
12
18
(18)

Table of Contents

Other manuals for Sinoboom AB520EJ

Related product manuals