EasyManua.ls Logo

Sirona C8+ - C8 + solo Side Delivery 1:20

Sirona C8+
56 pages
Print Icon
To Next Page IconTo Next Page
To Next Page IconTo Next Page
To Previous Page IconTo Previous Page
To Previous Page IconTo Previous Page
Loading...
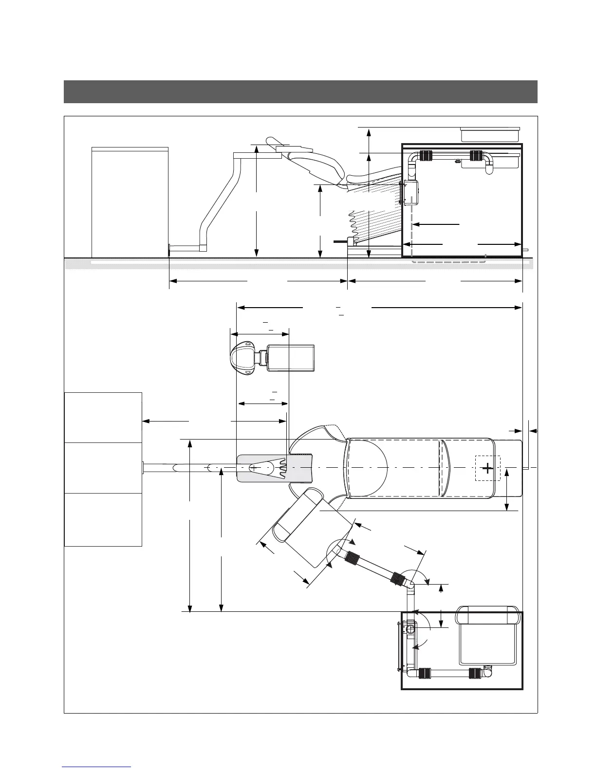
Sirona Dental Systems GmbH 2 Dimensions, technical data C8
+
1:20
Installation Requirements C8
+
2.13 C8
+
Solo Side delivery 1:20
60 28 000 D3417
D3417.021.04.09.02
43
2.13 C8
+
Solo Side delivery 1:20
1266
49 7/8”
max. 380 +15
15“ +5/8”
2070 +50***
81 1/2” +2“ ***
45
1 3/4”
*** according to chair height
310
12 1/4”
535
21”
755 - 940
29 3/4” - 37“
Supply cable
2900
114 1/8”
1050
43 1/4”
180°
1260
49 1/2”
870
34 1/4”
320
12 1/2”
563
22 1/8”
450
17 3/4”
1300
51 1/4”
810
31 7/8”
1050
41 3/8”
430 +15
17“ +
5/8”

Other manuals for Sirona C8+

Related product manuals