EasyManua.ls Logo

Sirona C8+ - C8 + Rear Delivery Stand-Alone (Only for USA) 1:20

Sirona C8+
56 pages
Print Icon
To Next Page IconTo Next Page
To Next Page IconTo Next Page
To Previous Page IconTo Previous Page
To Previous Page IconTo Previous Page
Loading...
Sirona Dental Systems GmbH 2 Dimensions, technical data C8
+
1:20
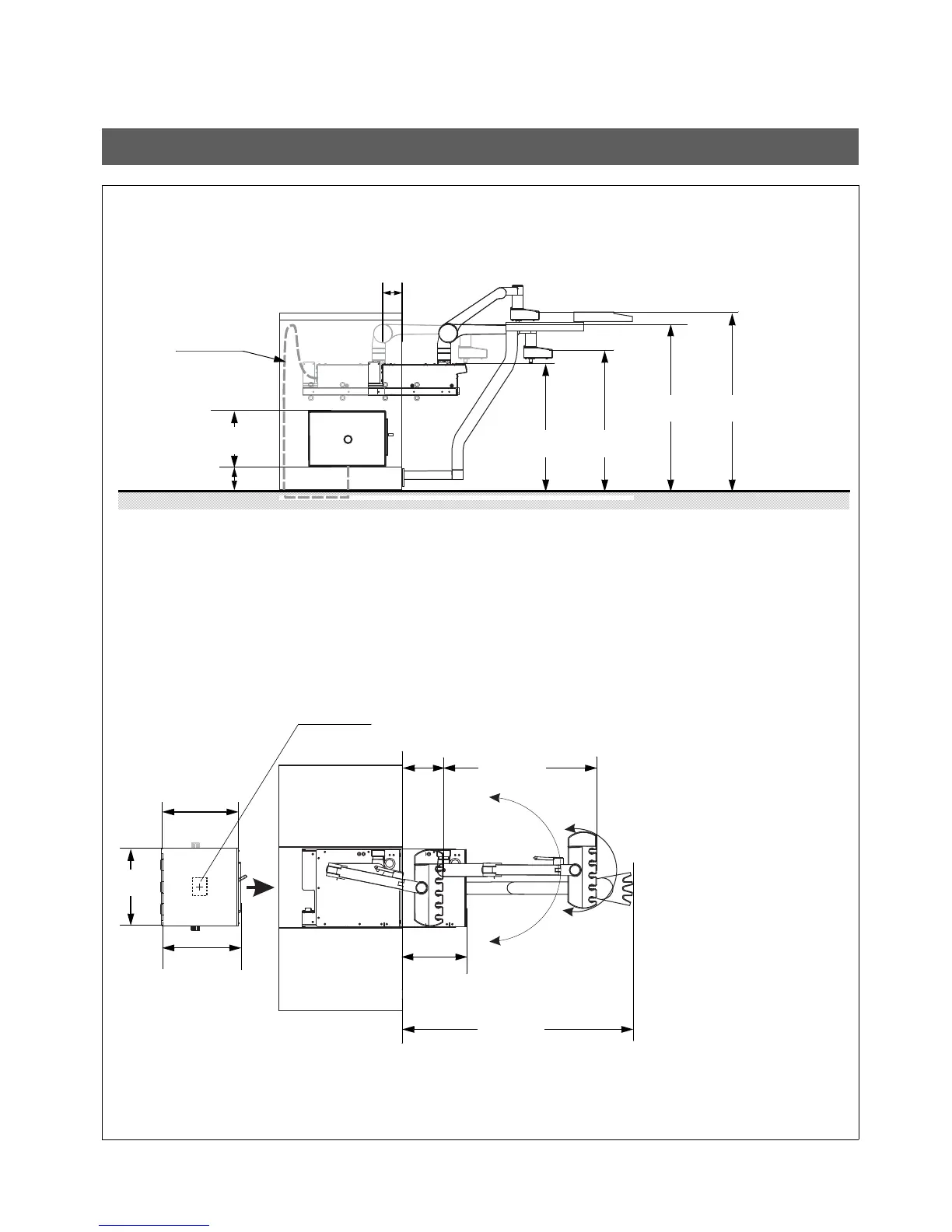
Installation Requirements C8
+
2.15 C8
+
Rear delivery Stand-Alone (only for USA) 1:20
60 28 000 D3417
D3417.021.04.09.02
45
2.15 C8
+
Rear delivery Stand-Alone (only for USA) 1:20
Connection panel
248
9 3/4”
346
13 5/8”
358,5
14 1/8”
353
13 7/8”
760
30”
580
22 7/8”
640
25 1/4”
810
31 7/8”
80
3 1/8”
100
4”
300
11 7/8”
700
27 1/2”
190
7 1/2”
1050
41 3/8”
Supply cable
1700
67”

Other manuals for Sirona C8+

Related product manuals