EasyManua.ls Logo

Sirona C8+ - C8 + Turn 1:20

Sirona C8+
56 pages
Print Icon
To Next Page IconTo Next Page
To Next Page IconTo Next Page
To Previous Page IconTo Previous Page
To Previous Page IconTo Previous Page
Loading...
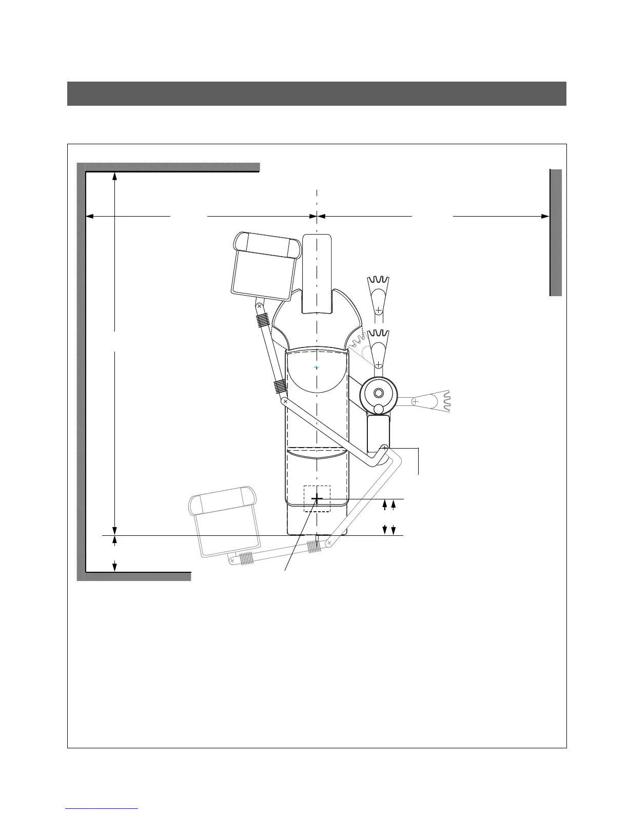
2 Dimensions, technical data Sirona Dental Systems GmbH
2.6 C8
+
Tu r n 1 : 2 0 Installation Requirements C8
+
60 28 000 D3417
28 D3417.021.04.09.02
Recommended distances from cabinet or wall.
2.6 C8
+
Turn 1:20
Hazard warning:
The here mounted lamp and the den-
tist element have a wider swivelling
range than the distances indicated!
Center floor opening
1600
63”
1600
63”
2500
98 7/16”
250
9 7/8”
250
9 7/8”

Other manuals for Sirona C8+

Related product manuals