EasyManua.ls Logo

sitrex MX 8 - Central Wheels Kit: Instructions for Installation

Default Icon
61 pages
Print Icon
To Next Page IconTo Next Page
To Next Page IconTo Next Page
To Previous Page IconTo Previous Page
To Previous Page IconTo Previous Page
Loading...
CENTRAL WHEELS KIT
49
9. Central wheels kit: instructions for installation
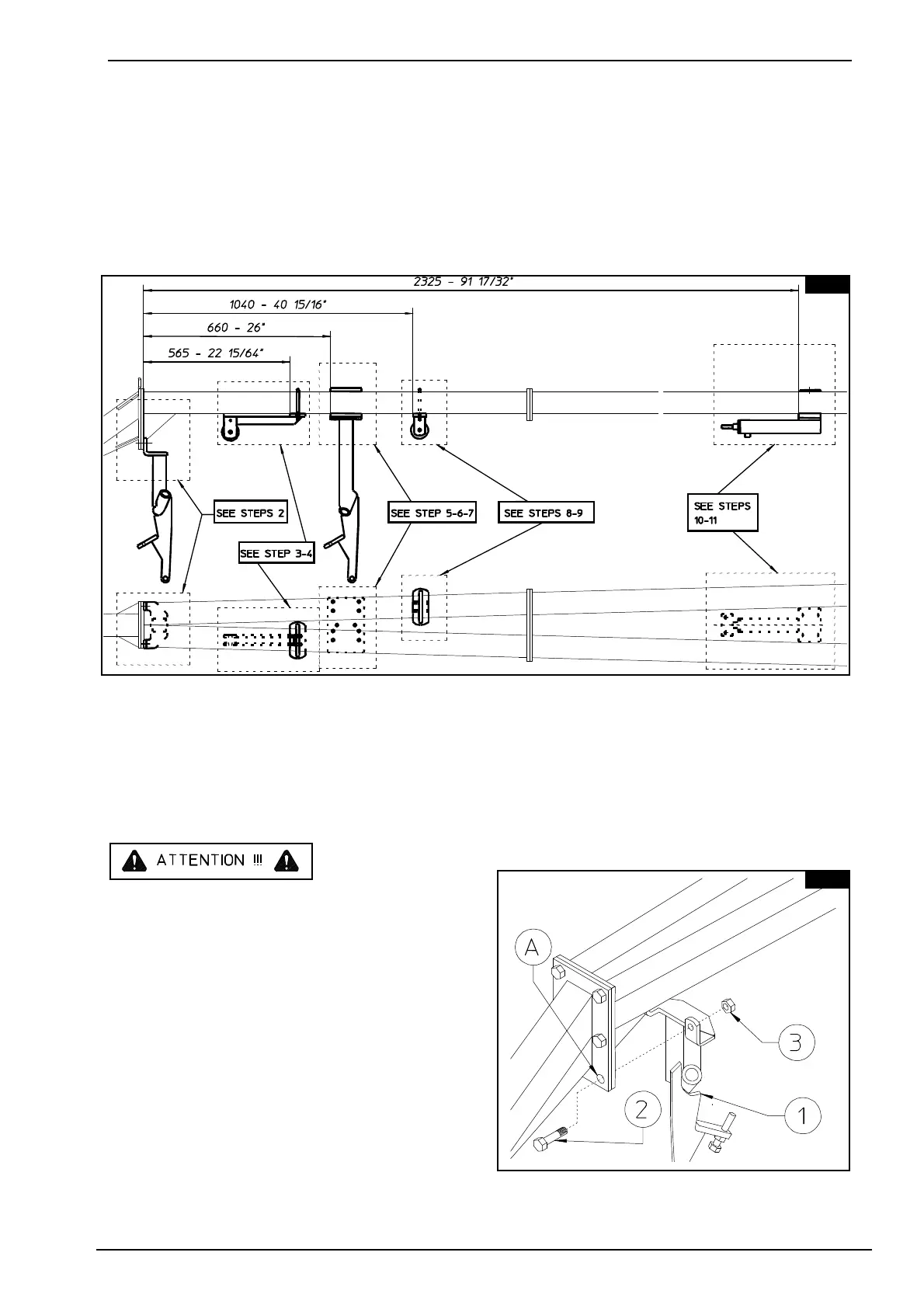
9.1
This is the diagram for positioning the various components of the central rake wheel kit.
9.2
First of all remove the two screws of position
"A" Attach support 1 to plate front drawbar
using screws 2 and nuts 3.
In this step, you will use:
Item 2: 2 screws M16 x 60
(5/8" x 2 3/8")
Item 3: 2 nuts m16 (5/8")
.
.

Related product manuals