EasyManua.ls Logo

Smeg A2PYID-81 - Page 40

Smeg A2PYID-81
42 pages
Print Icon
To Next Page IconTo Next Page
To Next Page IconTo Next Page
To Previous Page IconTo Previous Page
To Previous Page IconTo Previous Page
Loading...
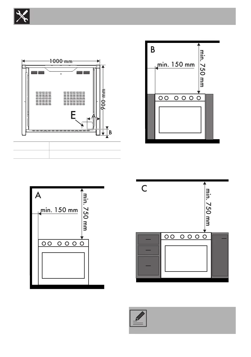
Installation
84
Dimensions
Position of gas and electrical connections
(measurements given in mm).
E = Electrical connection
Depending on the type of installation, this
appliance belongs to classes:
A - Class 1
(Free-standing appliance)
B - Class 2 subclass 1
(Built-in appliance)
C - Class 2 subclass 1
(Built-in appliance)
A 150 mm
B 81 mm
The appliance must be installed by
a qualified technician and according
to the regulations in force.

Related product manuals