EasyManua.ls Logo

Sony BDP-S301 - Page 57

Sony BDP-S301
88 pages
Print Icon
To Next Page IconTo Next Page
To Next Page IconTo Next Page
To Previous Page IconTo Previous Page
To Previous Page IconTo Previous Page
Loading...
BDP-S300/S301
C107
XX
0.01
C123
XX
C110
0.01
C124
C106
XX
C102
0.1
XX
C109
C101
16V
100
C104
XX
47
R107
47
R108
47
R106
1.8k
R121
2.2k
R122
8.2k
R118
8.2k
R123
10k
R120
10k
R117
12k
R124
12k
R119
27k
R112
R102
0
0
R109
0
R100
R103
22k
12345678
91011
12
13
14
15
16
17
18
19
20
21
22
232425
2627282930313233
34
35
36
37
38
39
40
41
42
43
44
IC100
PT6315
LED1
LED2
LED3
LED4
CSC
DOUT
DIN
CLK
STB
KEY1
KEY2
VSS
VDD
SEG1
SEG2
SEG3
SEG4
SEG5
SEG6
SEG7
SEG8
SEG9
SEG10
SEG11
SEG12
SEG13
SEG14
SEG15
SEG16
VEE
GRID12
GRID11
GRID10
GRID9
GRID8
GRID7
GRID6
GRID5
GRID4
GRID3
GRID2
GRID1
VDD
VSS
D102
1SS355TE-17
D101
1SS355TE-17
D104
1SS355TE-17
D103
1SS355TE-17
JL102
JL106
JL108
JL104
JL105
JL103
JL107
JL101
16V
100
C108
XX
L101
R104
22k
R105
22k
0.1
C115
0.1
C118
0.1
C120
0.1
C119
XX
C112
XX
C100
C111
XX
8765
4321
RSS040P03FD5TB
Q103
1.8k
R110
JL100
XX
C114
D100
DAN202UT106
Q102
DTC124EKA-T146
Q101
DTC124EKA-T146
Q100
10k
R101
Q104
2SC2411K-T-146-CR
Q105
2SC2411K-T-146-CR
32V
0.5A
F100
0.022
C105
10k
R113
XX
R114
XX
R115
XX
R116
12k
R125
33k
R126
S100
1
2
3
4
5
6
7
8
9
10
11
11PCN101
GND
IR
KEY0
KEY1
LED_FL_OFF
LED_HDMI
LED_HD
V+5E
LED_Blue
GND
GND
17891011 1256 14 19181713 16 2015 23 24 2721 28262522 31 33 3530 32 363429 42 444037 3938 41 4524
ND100
1
2
3
4
5
6
7
8
9
10
11
12
13
14
15
16
17
18
19
20
21
22
23
24
25
26
27
28
29
30
30PCN100
GND
FLCLK
GND
FLDATA
FLSTB
GND
LED_DDHD
KYE1
LED_LAN
LED_FL OFF
LED_HDMI
LED_HD
GND
GND
V+5FL
GND
FL-29V
GND
FLDC-
GND
FLDC+
LED_ICE
GND
LED_P ON
V+13SW
LED_Blue
MODEL1
KEY0
GND
IR
MM3Z5V6ST1
D105
JL109
2
3
5
6
8
7
1
10
4
9
T100
0.01
C113
47uH
L102
100k
R111
22
C117
XX
C116
COM[9]
COM[10]
S[15]
S[14]
S[13]
S[12]
S[11]
S[10]
COM[8]
COM[7]
COM[6]
COM[5]
COM[4]
COM[3]
S[1]
S[2]
S[3]
S[4]
S[5]
S[6]
S[7]
S[8]
S[9]
COM[8]
COM[11]
COM[9]
S[16]
COM[10]
COM[7]
COM[6]
COM[5]
COM[4]
COM[3]
COM[2]
COM[1]
COM[11]
S[1]
S[2]
S[3]
S[4]
S[5]
S[6]
S[7]
S[8]
S[9]
S[10]
S[11]
S[12]
S[13]
S[14]
S[15]
S[16]
COM[1]
COM[2]
F1
F1
1G
2G
3G
4G
5G
6G
7G
8G
9G
10G
11G
NC
NC
NC
NC
NC
NC
NC
NC
NC
NC
NC
NC
P16
P15
P14
P13
P12
P11
P10
P9
P8
P7
P6
P5
P4
P3
P2
P1
F2
F2
IC100
FL DRIVE
FLUORESCENT INDICATOR TUBE
SWITCH
SWITCHING
SWITCHING
DC-DC CONVERTER
DC-DC CONVERTER
DC-DC CONVERTER
TRANSFORMER
MAIN BOARD
(DB-BMB102)
CN3501
FR-271 BOARD
CN600
(SEE PAGE 4-17)
/
A INDICATOR DRIVE
1012
J
H
FL-176 BOARD
B
1311
C
78
I
-REF.NO.:2,000 SERIES-
14
F
96
K
4
05
XX MARK:NO MOUNT
15 163
G
D
5 17
E
12
B+ SWITCH
DTC114YKA-T146
FB004
FB003
FB002
FB001
B+
B+
B+
B+
B+
B+ B+ B+
B+
B+
B+B+
NO MARK:REC/PB MODE
0
2.4
2.7
0
0
2.7
4.8
-0.4
-0.4
0
2.8
5
5
5
-21.4
-21.4
-21.4
-23.6
-23.1
-19.3
-17.3
-23.1
-23.1
-23.1
-13.4
4.9 4.9
-21.2
-21.2
-23.1
-23.1
-15.4
-17.2
-15.4
-17.4
-15.4
-21.4
-21.4
-21.4
-21.4
-21.4
-21.4
-21.4
-21.4
0
4.9
4.9
4.9
4.9
4.9
4.9
4.9
FL/LED
FL-176
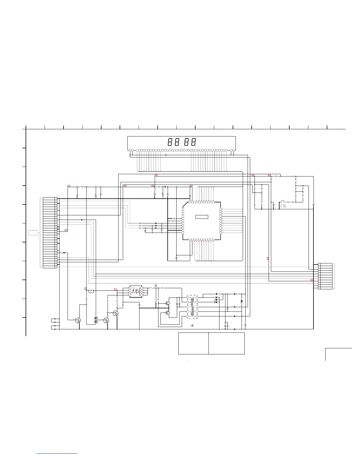
FL-176 (FL/LED) SCHEMATIC DIAGRAM • See page 4-11 for printed wiring board.
– Ref. No. : FL-176 board; 2,000 series –
4-13 4-14
Note:
The components identi-
fied by mark 0 or dotted
line with mark 0 are criti-
cal for safety.
Replace only with part
number specified.
Note:
Les composants identifiés par
une marque 0 sont critiques
pour la sécurité.
Ne les remplacer que par une
pièce portant le numéro
spécifié.

Related product manuals